查看完整案例


收藏

下载
构想生活的模样
构造内心的世界
构想生活
优享
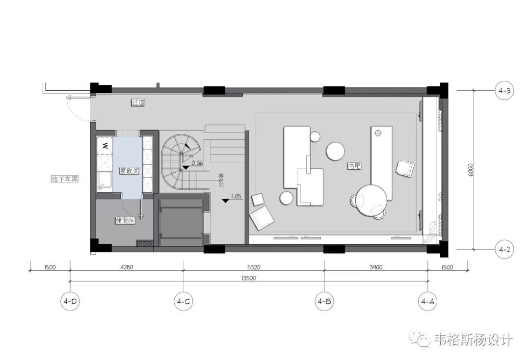
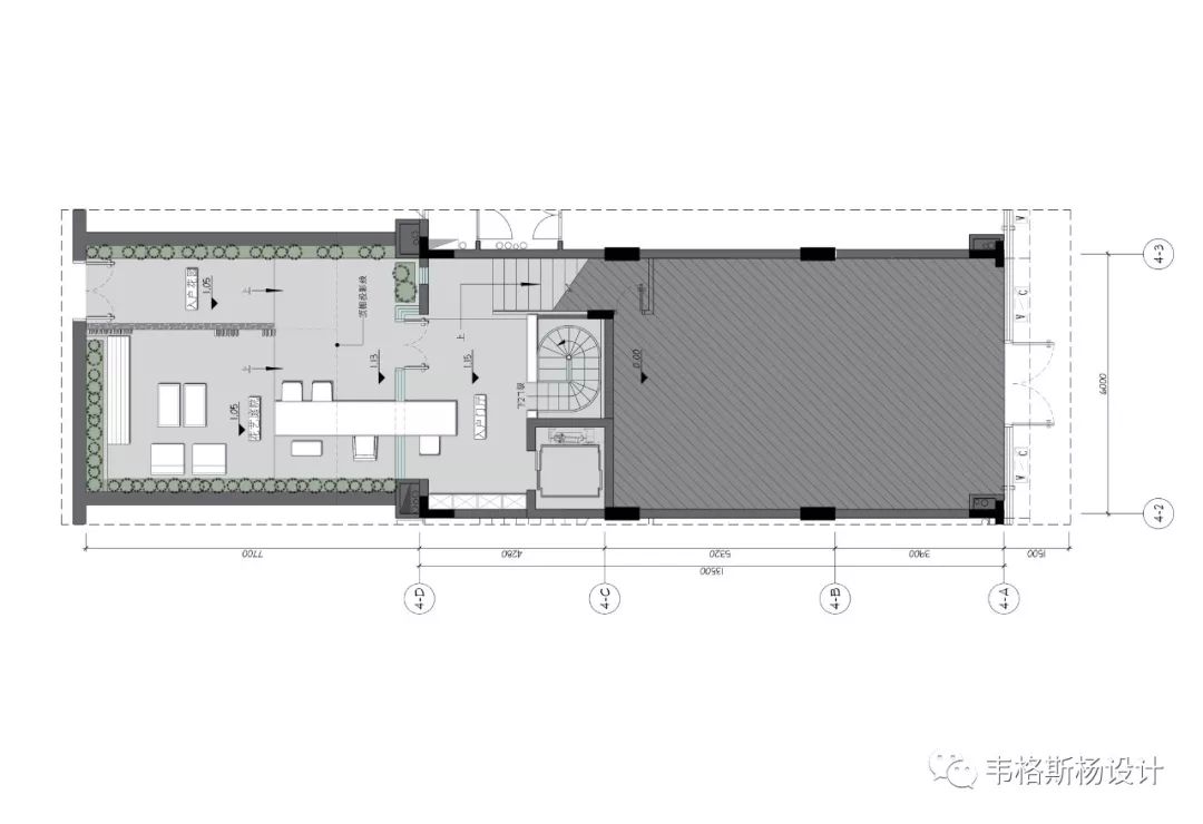
一层入户区则兼具女主人园艺花圃,而
负一层为男主人书房阅读区兼休闲区。别墅依据主人不同的兴趣爱好和气质赋予各自的空间特质,以古典艺术的精髓沉淀其中,与当代简练的装饰碰撞营造独特的氛围格调。
构想生活
童活
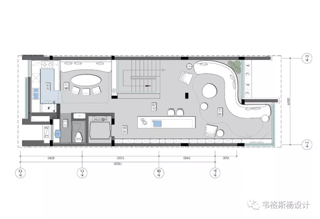
“所有大人都曾是小孩,虽然只有少数人记得。”——《小王子》。
行至二层,我们重拾一份童心,构想了一室充满童真的生活空间,传达出生活本真的愉悦。
儿童房利用建筑层高优势加建夹层形成小小的“空中城堡”,对空间进行最充分的利用与规划更能体现户型价值。
构想生活
闲雅
三层建为主人房和长辈房,在设计中大色块组合手法引入大自然元素,形成质朴干练的个性空间;低饱和度的大面色调和不同质感的材质碰撞构想闲雅的生活调性。
依据年龄阶层与居住者的内涵气质,贴身构建与之符合的风格空间,赋予入住者更多的惊喜以及更多元化的体验。
构想生活
悦憬
四层为商墅的顶楼,利用开放式的空间设计,将客厅、水吧、餐厅、厨房互通互联。敞亮的空间规划,典雅和现代气息并重的艺术陈设,在空间中完美融合。
顶楼局部天花做成天窗,充分利用自然光,丰富室内的光感形式。在日光照射下的客餐厅,洒满了诗意,这是一种让人安静的生活气息,更是一种回归自然、追求卓越的生活格调。
对生活的不同理解以及对生活的不同追求,形成各个家庭成员有属于自己的生活方式。用现代的设计手法去提炼与追寻各个个体都能拥有的独特情感体验,构建各自独特专属而和谐的生活空间。
负一层平面图
首层平面图
二层平面图
三层平面图
四层平面图
△右滑图片查看更多!
项目资讯:
宜春.金悦湾商墅
开发商 :宜春江南置业
设计团队:刘惠杰、吴乐年、廖越
项目地点:江西宜春
设计面积:373.7平方米
摄影师 :陈嘉献
主要材料:大理石、墙纸、
氟碳漆
、仿古铜金属、木饰面等
广州市韦格斯杨设计有限公司
地址:
广州市海珠区新滘中路88号唯品同创汇园区艾特利薇大街3号
传真:020-83781466
网站:
客服
消息
收藏
下载
最近





























