查看完整案例


收藏

下载
除了艺术之外,没有更妥善的逃世之方;而要与世界联系,也没有一种方法比艺术更好。
——歌德
越秀·国际金融汇
越秀·国际金融汇是由中国地产竞争力品牌-越秀地产开发建设的综合体项目。该
项目位于解放大道与新华路交汇处金融十字街,坐拥汉口黄金十字轴,武广、江汉路两大城市级顶级商圈辐射,形成汉口最成熟的金融区。
项目凝聚众多世界大师心血,从规划到业态均以高级标准打造,更甄选全球轻奢顶尖品牌,囊括进口食品超市,轻奢品牌,设计师潮牌,儿童主题乐园,星级影院等众多业态,只为居住者每时每刻同步全球,享受世界中心城市潮流风向,领峯中心生活。
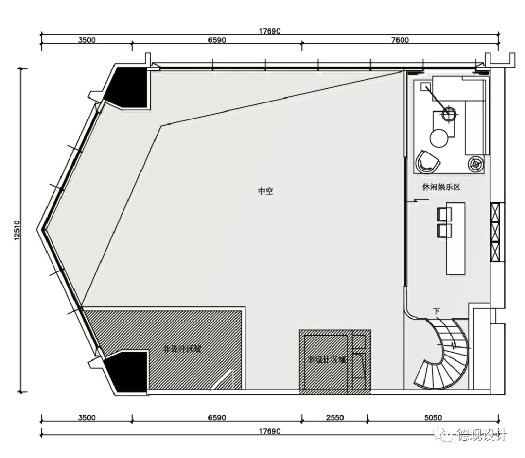
A户型
▲大厅接待处
本案致力于打造一个高端美容会所,给都市女性提供身心舒展,唤醒自身魅力,将生活中的压力通通释放,享受如世外桃源般的心灵旅程。
▲休闲接待区
设计师从入行伊始就已经开始对玻璃材料应用的进行探索,
材质的
透明特性与光线折射,使得坚硬的材质感与光影缥缈效果相得益彰,
整体
作品层次分明,在光线下的变化丰富自然。
▲美容间
此空间承载着女士们对美的期望,利用JO MALONE LONDON的香薰与蜡烛等装点着空间,塑造这温馨、舒适的空间,变成女士的伊甸园与记忆盒子。打破了以往传统大众对美容室的固化审美观念,使空间散发出优雅自若的品味。
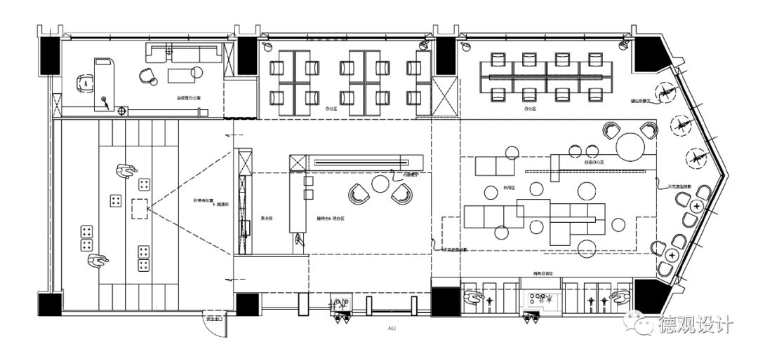
B户型
▲接待/吧台区
本案高档的室内环境,现代、创新、绿色、科技、开放的设计理念,使得空间
充满积极能量、拥有诱导员工健康的思绪、陶冶高尚的情操感染力。
▲自由办公区
灵动开敞的空间使用方式满足了员工对工位的自由选择,精心考量布置的沟
通交流区域将室内弱化成一个环境背景,人作为空间的核心释放自己的能量。
▲阶梯会议室&阅读间
让工作与生活的界限在一个空间里消融,使共事的人与
人之间回归简单朴实的交流。
改善“容易被忽视却能真正的生活......”
▲总经理办公室
超越我们自己,感知到别人的感知,感知到别人的社会经
验,通过艺术在这个空间里面“见面”。以现代简约的手法,融入绿色、科技、智能、高效的理念,打造出新生态办公空间。
▲商务洽谈区
提取自然、简单、色彩、童趣等关键词,构建了一个具多功能和情感联结的办公生态。将洽谈区的景观面最大化,让色彩与阳光相遇,将童趣注入其中。员工
在紧张的工作之余,适当休憩放松。
END
客服
消息
收藏
下载
最近























