查看完整案例


收藏

下载
本项目为一个为连锁商务精品酒店,占地面积4565平米。从甲方拿地开始,犹如将一张白纸,交由KD设计团队绘画打造。由室内设计公司指导前期建筑规划,可以减少甲方后期资本的投入,大大的缩小成本,更加符合当代人对酒店居住空间的需求。
总概况
General overview
总用地面积
4850㎡
占地面积
4565㎡
地上总建筑面积
38831㎡
负一楼娱乐会所
2086㎡
一楼大堂
352㎡
宴会厅
2230㎡
主体客房层
29678㎡
屋顶娱乐会所及餐饮
2135㎡
办公室
2350㎡
客房数量
386间(按全标间计算)
根据甲方需求和项目实际情况,为原本空置的建筑具体规划设计为酒店。每个功能空间的位置,面积大小等,都是需要经过严谨的考量与设置。
建筑分析
Building analysis
建 筑 体 量
建 筑 体 块
考虑到占地面积有限,KD设计团队将酒店规划为单体建筑。一则体现气势磅礴之感,二则也方便客人出入。
KD设计团队为屋顶空间设置了垂直动线,早餐厅、健身房、无边际游泳池和Sky Bar都设置于屋顶,让客人可以随时感受自然慵懒的环境氛围与享受城市的天际线。
酒店大堂吧13层的挑空中庭,空间节奏感大气磅礴。酒店大堂与地面是架空的,挑空底层与旁边的住宅和商业空间之间自由相通,通风、人流自由流动,从架空底层坐扶梯、电梯、楼梯直达负一楼娱乐空间及酒店的精品商店。
酒店宴会厅与酒店大堂独立,又可以互通,宴会厅4层屋顶绿色园林处理,户外草坪婚礼在这样的开放空间,浪漫而甜蜜。
通过挑空,让位于地下室的
KTV空间并未显得拘谨狭小。合理的规划,让客人可以聚集于KTV
娱乐
消费。
外立面
Facial display
星瑞皇家国际大酒店的建筑形态,展现出因地制宜的美,地域文化的美,更是建筑与当地自然环境嫁接的美,这些细节都体现在KD设计团队的规划设计中。
房型设计
Room design
豪 华 套 房
精 品 标 间
舒 适 单 间
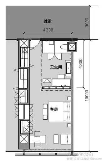
KD设计团队为酒店规划了三种主力户型:豪华型的套房,精品型的标间,舒适性的单间。
方案意向
Conceptual intent
为了带给客人更多的差异的旅行居住感,KD设计团队大力打造酒店室内与室外的外部庭院环境的融合,以自然绿色生态的酒店形式,吸引顾客,呈现出一个灵动的精品酒店。
项目信息
Project information
—
The project name
成都星瑞皇家国际大酒店
The project address
四川成都金牛区
The project area
38000平米
The design of time
2017.5
Design agency
KD室内设计事务所
恺邸装饰
THE END
客服
消息
收藏
下载
最近


















