查看完整案例


收藏

下载
秋木
PROJECT TYPE|LIVING SPACE
DESIGN OFFICE|AO × DESIGN
这是一套高标准交付的精装住宅,但也有着精装房难以逃脱的痛点。精装改造,也是对生活方式的再定义,屋主喜欢舒缓柔和的简约风,我们以局部改动与软装陈设重构出焕然一新的空间,使空间局部和调性得以释放和升华。
秋重重落叶红
客厅,是诸多关系的空间交集,亦是精神的内在归属。
对原有的护墙板和门进行拆除,使客餐厅整个空间统一,注入精神的力量,正如朱光潜在《谈美》一书中所说的,“艺术的任务是在创造意象,但是这种意象必定是受情感饱和的。”
统一而又变化的格栅,衔接上隐形门,皮质深秋色沙发围合与绿植的形态,丰富了空间场景内在蕴含。
地面搭配了大面积灰色的亚麻地毯,减弱了大理石地面带来的冷硬感。秋风清,秋月明,秋风吹渭水,落叶满金陵。
木 | 初晴山里
我们以视觉上易于感受的方式,把客餐厅的空间融合在一体,餐边柜将餐厅富余的空间梳理整合,增加了储物空间。
通过有秩序的块面、绿植、自然光,打造流动的空间。客餐厅一致的色调,让人保持一种更加平和的状态。流动木质的装饰画,为纯净空间注入温暖的质感。
一切艺术品、家具、灯光的布局,都是为了在循序渐进的归家秩序之中,注入生活意趣。
润|静默如初
卧室过度的装饰会疲倦,暗藏在床头中的暖色灯带,尽显空间宁静而稳重的气韵,阳光照进,空气流通,一切都和谐温润。
卧室的吊灯和灯光都进行了调整,增加了一排衣柜,空间布局的进退得宜和细节要恰到好处。
次卧我们调整了插座位置,重新布置空间,动线通畅而又宽敞,符合儿童房的功能布局。
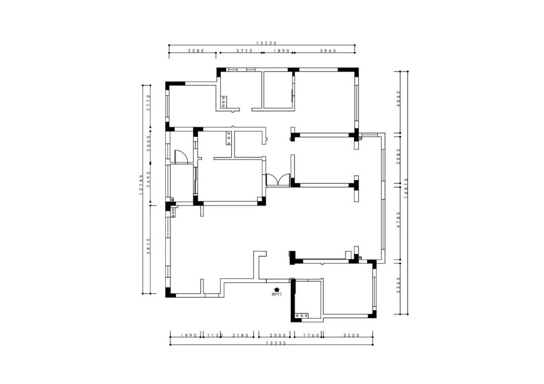
原始平面图
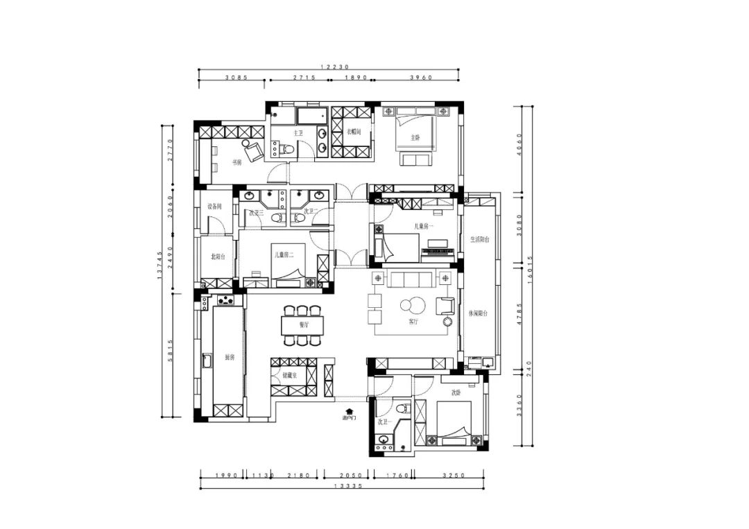
平面布局图
项目名称:秋木
项目地点:仙林|南京
建筑面积:220㎡
设计团队:凹·设计事务所
项目摄影:郑昊
文案策划:凹·设计事务所
END
REVIEW
AO × DESIGN │谧
流光逐影林间赏,沪上听书琴瑟常。
AO × DESIGN │一间想在喧嚣里仰视你,在静谧中亲近你。
AO × DES 热爱潮牌、手表和汽车改装的他的上海婚房
AO × DESIGN │ 轻·侘
延伸品牌对舒适质感的注解
AO × DESIGN │ 六七
城市日常且考究的独特风景
AO × DESIGN │ 知一个见微知著的公寓式住宅婚房设计
AO × DESIGN │ 构筑
打造具有浓郁生活气息的使用场景
设计咨询 | 项目预约| 商业合作 | 交流分享
158-5183-3550
Add:南京市雨花台区证大喜马拉雅中心 C 座 206
客服
消息
收藏
下载
最近





































