查看完整案例


收藏

下载
谧
PROJECT TYPE|BUSINESSSPACE
DESIGN OFFICE|AO×DESIGN
作为一套沪上老房改造项目,我们把“有限空间内的无限释放”作为本次项目思考的出发点。在满足业主需求功能的同时,将设计重点放在动线和空间的优化上。通过一系列动线的调整,让独立的空间形成关联。通过不同空间的对话,回溯空间的本质。以此为基础,每个功能空间也拥有独立的自然采光。
訴
光
|流光逐影林间赏
原建筑结构中的楼梯被拆除,客餐厅及阳台被新打开的空间所联通。光线从玄关入户便可一览无余,弥补了原本结构采光晦暗的最大缺点。也是对“有限空间无限释放”的诠释。
我们用经典的白、灰和原木色,来作为开放空间中家具的陈列配色。协调统一的搭配让空间明朗开阔却不单调乏味,自然静谧的居住氛围也随之而来。
豁然 | 围炉一席对灯坐
客厅作为家庭成员间共享交流的活动区域,在功能和美学上都达到了统一。阳台特意定制的整扇玻璃窗,大大提升了自然采光的效率,让光线在空间中肆意流淌,生活便随着时间缓步前行。
拓展后的阳台,与客厅空间组合成不同情景下的使用模式。在瑜伽、聚餐、娱乐、阅读等多种功能空间中的随意转换,让业主在有限的空间体量里得到了更多使用形式上的满足。
阳台加宽后的抬高部分,充当了楼梯的第一个踏步。不同结构间的穿插,进一步让公共区域形成视觉上的通透统一。同时,我们将楼梯的开口增大,提高了使用上的舒适度,也加强了垂直空间的结构关系。
整个空间用材统一,通过材质的掌握运用使元素在空间中彼此呼应,呈现出连贯的整体感,并搭配符合空间调性的陈列配饰,烘托出空间自然静谧的气质。
楼梯下方的柜体空间,我们设计成折叠餐桌,满足业主两人在家简单就餐时的需求。最大支持 8 人位的折叠餐桌,让多人聚餐也变为了可能,空间也因此变得巧妙灵动。
客厅打破传统去掉电视机位,采用暗藏投影幕布的形式。在细腻柔和的灯光氛围下增加了更多舒适柔和的体验,让一楼整体空间不失温馨浪漫。
怀谷 | 月明潺潺已相逢
卧室空间的打造则更倾向于氛围感的营造。客厅相同元素的延伸,保证了整体调性的统一。木色边框的布艺床,一盏中古的台灯和一幅简洁的装饰画,将空间的温馨氛围表达的恰到好处。
秘境 |沪上听书琴瑟常
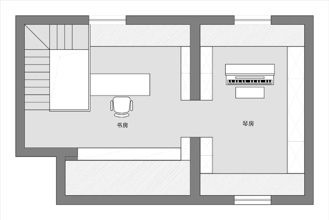
去掉矫揉造作的装饰,让思绪在琴房里更好地沉浸。我们给业主打造了书房和一个仪式感极强的钢琴空间。窗洞的三角结构和琴键的黑白之间,是对生活和艺术一致的追求。
一层原始平面图
一层平面布局图
二层原始平面图
二层
平面布局图
项目名称:谧
项目地点:虹口|上海
建筑面积:70㎡
设计团队:凹·设计事务所
项目摄影:EMMA 摄影
文案策划:凹·设计事务所
END
REVIEW
AO × DESIGN │一间
想在喧嚣里仰视你,在静谧中亲近你。
AO × DES
热爱潮牌、手表和汽车改装的他的上海婚房
AO × DESIGN │ 轻·侘
延伸品牌对舒适质感的注解
AO × DESIGN │ 六七
城市日常且考究的独特风景
AO × DESIGN │ 知 一个见微知著的公寓式住宅婚房设计
AO × DESIGN │ 构筑
打造具有浓郁生活气息的使用场景
设计咨询 | 项目预约| 商业合作 | 交流分享
158-5183-3550
Add:南京市雨花台区证大喜马拉雅中心 C 座 206
客服
消息
收藏
下载
最近






































