查看完整案例


收藏

下载
该项目为设计师在北京卫视暖暖的新家改造节目中为双胞胎大小九家设计,北京东北园胡同蜿蜒匍匐于琉璃厂古文化街区,毗邻人民大会堂,国家大剧院,大栅栏等地标建筑及核心景区。
犹如京城内大多破败简陋的胡同生活一样,“大小九之家”(Twins’house)急需更好的家庭体验和生活情趣注入。
This project is designer designed for a family with twins for Beijing TV Renovation Program. Beijing Dongbeiyuan Hutong where Twins’house is located in is meandering through the Liulichang Ancient Culture Street, adjacent to the landmark buildings like the Great Hall of the People, the National Theater, Dashilan and other core scenic spots. Just as most of Hutong life in Beijing is falling into decay, Twins’house is in desperate need of a better family experience and a taste for life.
“大小九之家”( Twins' house)原本为四合院中的正房,面阔五间,占地80平米,涵盖一家五口的起居生活,工作学习和休闲娱乐。
看似宽裕的空间还需满足双胞胎姐妹的儿童游乐房及跑道,独立卫浴,小型摄影棚和衣帽储物间,室内庭院及天台休憩等功能,如何改善基本功能,组织调和各空间动线的需求凸显出来。
The "Twins' House" originally was the main house in the Courtyard, five-roomed, with an area of 80 square meters. It covers the function needed for the family of five to live, work, study and entertain. In the seemingly ample space, playroom with runways for the twin sisters, independent bathrooms, small studio, cloakroom, indoor yard and balcony are supposed to be designed to satisfy the family's needs. Therefore, how to improve basic functions, and demand for organizing and reconciling the traces of space users become highlighted.
▼改造前的室外立面 Outdoor facade before reconstruction
原本加建的简易柱廊整体改造为隐框玻璃幕墙,厨房和餐厅改用天窗采光,一家人三餐欢聚在阳光星辰下。
分享每日一点一滴。
面朝甬道灰色粗野砖瓦的的玻璃幕墙,夜晚透出朦胧的暖意,变得分外剔透和温馨。
幕墙上增加可开启扇,亦改善客厅通风。
The originally added simple colonnade is transformed into a hidden framing glass curtain wall, and the kitchen and dining room refitted into skylights. In the sunshine, under the stars, the family have meals sharing everyday together. Facing the corridor stood the glass curtain wall clad in grey rough bricks, a warmth even at night has become clear and sweet. The installation of an openable fan onto the curtain wall makes a ventilative improvement in the living room.
▼改造后的廊道外观 The appearance of the renovated gallery
▼入口玄关 The entrance
▼户内功能布局 Function Layout
改造对各空间进行了动静划分和功能整合,夫妻,儿童和老人都有各自的工作学习和休憩娱乐区域。
正房中间用客厅作为分隔和集散,两侧尽端配备独立卫浴。
南侧玻璃柱廊依次排列着厨房餐厅,玄关,室外庭院和书房。
袅袅炊烟和庭院信步透过玄关的窗洞相映成趣。
北侧交通空间提供大小九嬉闹的跑道,跑道两端是暗藏橱柜的楼梯,通往主人卧房和儿童卧房。
The transformation is based on the activity and rest of users to divide each space, and integrates it with function. The parents, the twins and the grandma all have their own areas of working, studying and leisure. The living room sits in the middle of the house, used as a partition and hub, and on the opposite sides of the house are separately equipped with an independent bathroom. On its south is the glass colonnade, lined with the kitchen, the dining-room, the entrance, the outdoor yard and the study. The cooking joy is in harmony with the strolling in the yard through the window of entrance. On its north is the traffic space, providing the twins with a fun runway to both of its ends found stairs with hidden cabinets beneath, leading to the master bedroom and the children's bedroom respectively.
▼位于玻璃柱廊一侧的厨房 Kitchen on the side of the glass colonnade
▼采光充盈的餐厅 Light-filled dining-room
▼正中间的客厅 Living room
▼独立卫浴 Private bathroom
▼书房 Reading room
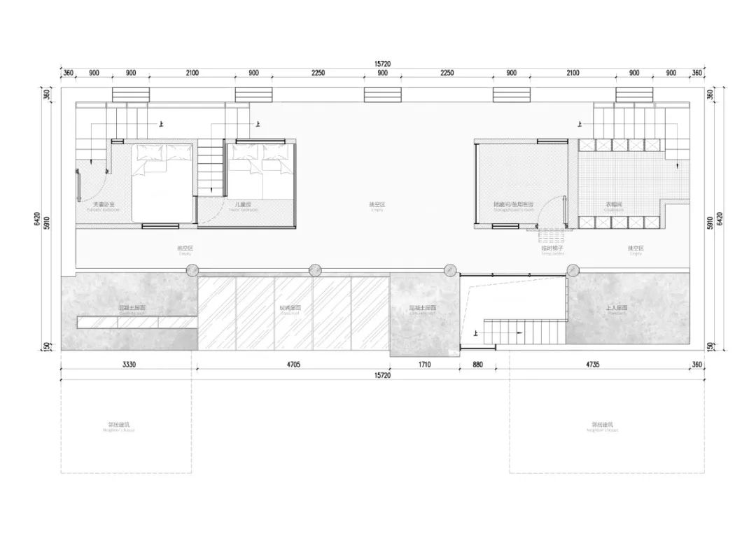
设计利用的坡屋顶屋脊高度,在客厅两侧挑空放置夹层。
解放底层空间,用于儿童游乐及摄影。
架空所有休憩空间,父母卧房和儿童卧房居西侧,方便看护。
姥姥卧房和客房居东侧,互不干扰。
Taking advantage of a sloping roof height, mezzanines are designed hanging over the both sides of the living room, opening up the ground floor for children's play and photo studio. The mezzanines designed for rest overlook the open space — the bedrooms of parents' and children's are situated on the west side, which would be a convenient arrangement for looking after the children. Meanwhile, on the east side are grandma's bedroom and guest room, which would avoid disturbing each other.
▼儿童卧房 Children's bedroom
▼姥姥卧房 Grandma's bedroom
加建的“大小九”卧房在屋顶开了天窗,早上伴着晨曦的微光苏醒,晚上数着点点星河入眠。
The newly built twins' bedroom has a skylight on the roof. They wake up in the morning with the glimmer of dawn, and look at the glow of the Milky Way going to sleep in the evening.
业主拥有一家衣帽服饰网店,却一直苦于没有方便使用的摄影展示区和仓储空间。
架空的客房的一侧及下侧很好的解决了这点。
The owner owns an online shop selling clothes, but has been suffering from the lack of space for photography, display and storage. One side and underside of the overhead guest room deliver a good solution to this problem.
▼联系父母卧房和儿童卧房的“猫洞”及屋顶天窗" Cat door" combining parents' and children's bedrooms and Roof skylights
▼位于客房一侧衣帽储物间及下侧的摄影棚 Cloakroom on the side of guest room and a downstairs studio
▼集成储物橱柜的楼梯 Staircase with integrated storage cabinets
▼储物阁楼 Storage loft
不加盖的“庭院”带来了喧闹都市中不多得的“听雨”去处,屋顶的防腐木台阶也能 “远瞻”。
The uncovered "courtyard" brings a rare place to "listen to the rain" in the noisy city, and the steps made from preservative treated wood on the roof can also be seated to "look far away".
▼ “庭院信步” "The courtyard walk"
▼ 夜晚鸟瞰 Night View
▼首层平面图 F1 Plan
▼二层平面图 F2 Plan
▼剖面图 Section
项目信息
项目名称:
双胞胎大小九家
设计公司:
DAGA Architec大观建筑设计
设计团队:
申江海、任晓伟、黄达、许云飞、刘宇哲、陈阳、刘昂、侯哲文、杨小玲、张怡璇、王临
施工图团队:
DAGA JAZZI大观匠子
施工图
设计团队:
王一涵、王双平
项目类型:
室内设计与改造
建筑面积:
80㎡
设计时间:
2018年1月
摄影师:
五透
Project Information
Project name:
Twins' house
Design company: DAGA Architects
Design team: Shen jianghai,Ren xiaowei, Huangda. Xu yunfei.Liu Yuzhe.Chen Yang.Liu Ang. Hou Zhewen. Yang Xiaoling. Zhang Yixuan.Wang Lin.
Construction Drawings:
DAGA JAZZI
Design team:Wang Yihan. Wang Shuangping
Project type: Interior design & renovation
Construction area: 80㎡
Designed Year: January 2018
Photographer: Wu tou
【北京】北京市东城区东四九条88号共享际
【上海】
上海徐汇区新乐路134弄2号新乐优客工场
【成都】成都市锦江区月季街268号1011室
010-86093604
客服
消息
收藏
下载
最近
































