查看完整案例


收藏

下载
【幕后团队】 About our team
项目名称:宁海长实展厅
项目面积:200㎡
设计总监:倪董波
主创设计:郭传阳
效果表现:土豆
设计理念
整体的设计结合了空间的动线,梳理空间之间的秩序。利用光线引导人们深入空间,利用石材、木头、金属等材质不同的形态展现组合,空间张弛有度,形成多种自由空间展陈形式。
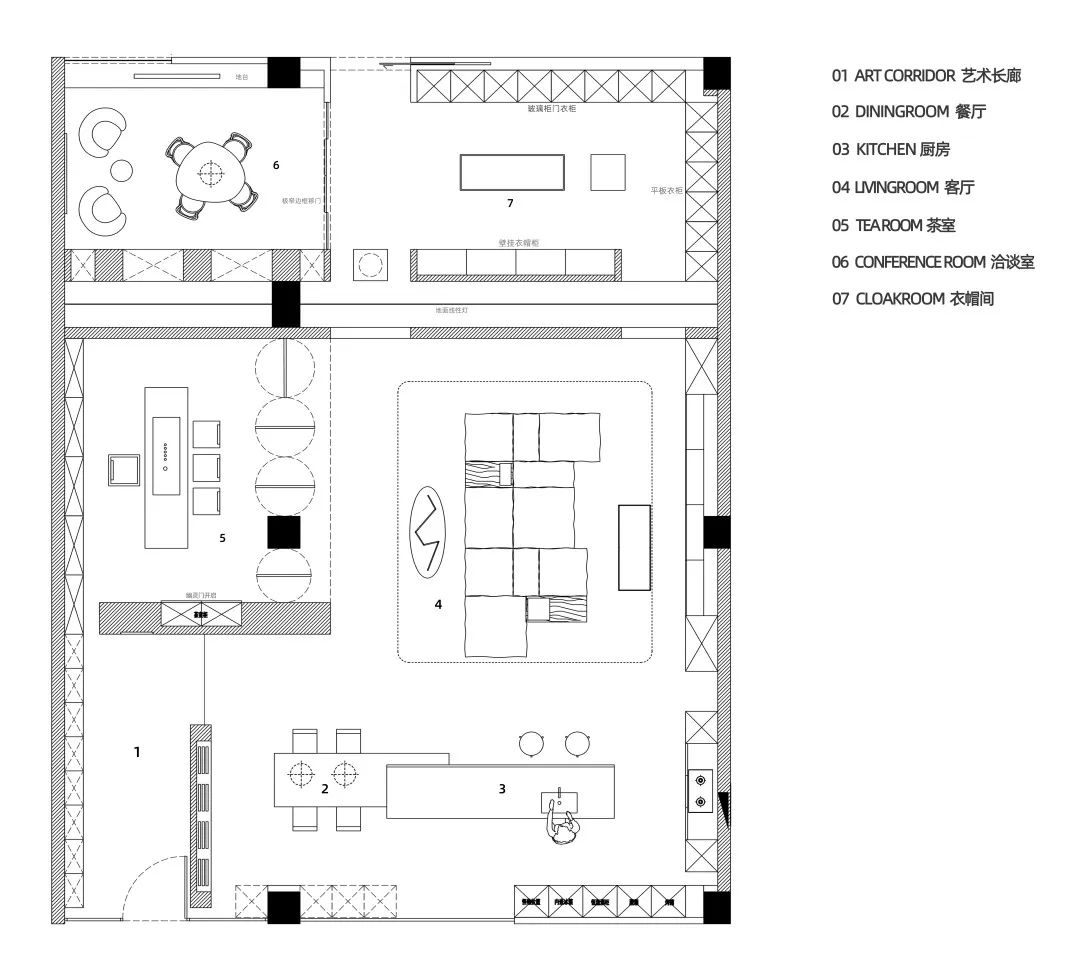
设计平面
分析图
≡
空间随光线动线顺延,灰色地面与木质柜体产生碰撞,柜体的木制纹理体现极致的质感,也让这个中性色调的空间增添了美感。
≡
用低饱和红洞石作为空间的跳色,在展厅中空间不止步于单一的物品展示,整体空间中包含视觉体验、理念输出、空间演绎都是设计中不能忽略的重要维度。
≡
通过不同材质来变换空间块面关系,创造出充满情绪的层次感。用绿色作为空间跳色,使空间变得更加鲜活。
≡
餐厨展示区位于同一空间中,保证了空间的通透性。带有精致花纹的白色大理石台面搭配黑色原木中岛台柜体,展现出极简主义的别样美感。
≡
中性色调的全屋定制展厅设计揉合了产品与空间环境的共同属性。不同材质的碰撞,利用纯粹的线条来串联空间的旋律。
≡
用旋转木门隔离开茶室展示区与客厅展示区,保证空间私密性的同时,又增加空间的互动与通透性。不同深浅的色彩运用使得空间结构更加清晰分明。
≡
衣
帽
展示区,划分了
多个功能区域,灯带的设计保证了空间充足的光线,玻璃移门的设计,增加空间
的互通性。
客服
消息
收藏
下载
最近































