查看完整案例


收藏

下载
成境·致远
Achieve the great goal
人类有多少关于世界的文思绮梦,建筑就有多少种表达方式,将天马行空的构图与轮廓,落地成可以感知的实体,每一个棱角都带有温度。
一层 会客厅
让艺术从空间的变换关系中跳脱出来
整个会客空间宽敞明亮,光线洒入室内,让空间仿佛朦上一层柔美的滤镜。富有自然肌理感和温润质感的大理石,搭配简约素雅的木质与面料,勾勒出空间低调优雅而不失温馨的高级气质。
一层 茶室
一览无遗的白韵之境,也能凸显东方美学中的空间层次感,简朴优美,典雅大气,深色线条与浅色基调形成强烈的对比,增强了空间的视觉张力。
一层 卧室
融汇·贯通
Integration
将意象按照美的规律,组成有机的、有空间距离的、有层次的画面,使其连贯、对比、烘托或共振,便可展示场景,传达感情。
二层 卧室
在设计上为了追求大空间所带来得尺度感,没有过多的隔断与装饰,让空间格局从材质的构成中自然地延伸。
三层 卧室
三层 更衣室
三层 书房
三层 健身房
怡然·自得
Contented
摒弃多余的繁复,浮光掠影之下传达一份温柔的艺术感。将渴望宁静的本心与包容的人生哲思灌注于一物一器。静味人生,缔造优雅、惬意的生活方式。
四层 起居室
以不同的艺术形态表现美学空间,让设计与想象真实而纯粹地相遇,呈现出极简的雅致之美,散发出精致舒适而又惬意从容的气息。
四层 主卧
负一层 娱乐区
负一层 影音室
负一层的空间与休闲娱乐区保持独立
的同时又增加了互动性,这样的布局让空间充满层次感,也创造出更多的可能性。
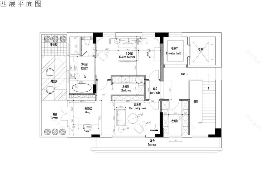
平面图纸
Plane drawing
左右滑动查看更多图片
项目名称
| 江阴私人府邸
项目地址
| 福清
设计风格
| 新中式
主创设计
| 贺达
设计团队
| 设计八所
项目类型
| 住宅
项目面积
| 室内1100㎡、景观1300㎡
创作时间
| 2020年
阅读推荐
客服
消息
收藏
下载
最近








































