查看完整案例


收藏

下载
泊寓—— 一个美好的年轻人之“家”
PORT APARTMENT
人生最惬意的事,莫过于三五知己,谈笑风生。通过交友、聚餐、电竞、音乐、脱口秀等多样化青年社群活动,释放年轻人的生活态度。于他们而言,长租公寓不仅是居住空间,还是一个共享的大家庭。在设计中,会更多考虑到租房者的情感需求,让使用者和空间产生共鸣。运用时尚个性的设计元素进行串联,强调社交属性,打造多元化共享空间。让居住在这里的人,可以切实体会到“家”的感觉。
万科东莞泊寓---万汇云谷店
前台区|接待、咖啡吧。整个墙面大面积的莫兰迪绿和白色,软装通过红黄蓝色彩的碰撞,水磨石块面的结合,解构了个性时尚的百变生活“秀场”。前台处以“泊寓咖啡馆”为主题,融入商业业态,打造满足客户接待,休闲,娱乐,下午茶等多重需求的共享公寓大堂。
大堂区|等候、休闲
单个与多人座位的组合,将不同人群的空间使用模式收拢聚合。现代风格穿插摩登色彩,铺陈出艺术与生 活的磁场连接,圆球状吊灯从金属环处垂悬而下,深化人与空间的关系。
雅座区|洽谈、娱乐
左右两边皆分割出私人化的模块,在繁杂与简约的平衡点下开辟了社交的多元模式。无论是一群伙伴坐在沙发上打一局游戏,或是两人喝一杯咖啡,读一本书,闲聊一整个下午。每一个人,在这里都能找到舒适的状态。
书吧|开放式办公区
既是大家闲暇周末看书的场所,又是一个开放式的移动办公区。大面积的木饰面弱化了装饰感,从材质本身出发,让工作成为一种享受。
墙面 IP:吹泡泡的人 缤纷飞舞的泡泡,就像扬帆起航的梦想,代表泊寓对家人的祝愿,从这里起航,飞得更高更远。
观影区|轰趴区
整个空间的蓝色调给人静谧感觉。下班后安静看一场电影,周末办一场狂欢派对,在这里都可以实现。放松自我、邂逅伙伴,既让自身的精彩得以释放,也为收获美好友情爱情助力。
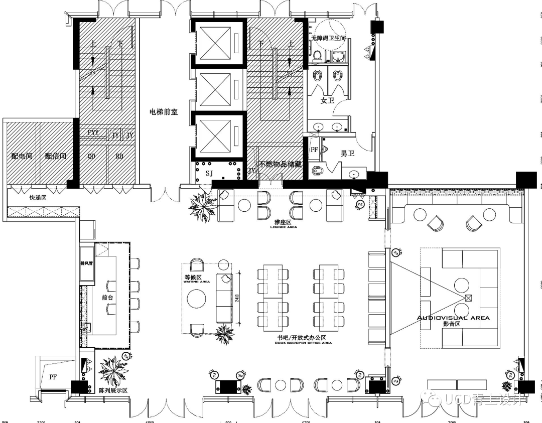
平面图
项目名称:东莞泊寓万汇云谷项目
项目地址:广东 东莞
业主名称:东莞万科地产
软装设计:UCD 青上设计
设计团队:叶铭、张宁、贾艳琦、李敏
完工时间:2022 年 8 月
客服
消息
收藏
下载
最近














