查看完整案例


收藏

下载
房屋位置:北京,丰台
使用面积:107㎡
风格元素:意式、简约
装修花费:55w
说在前面:屋主是一对 90 后的新婚夫妻,作为开启人生新阶段的第一套住房,家里的每一处都是两人用心去选择、去经营。
设计师想说:这是一对宝藏夫妻,审美同频的基础上还能带给我无限的灵感,整个设计和落地过程内心一直很激动,业主对我们高度的信任感,让我们整个合作过程很顺利。
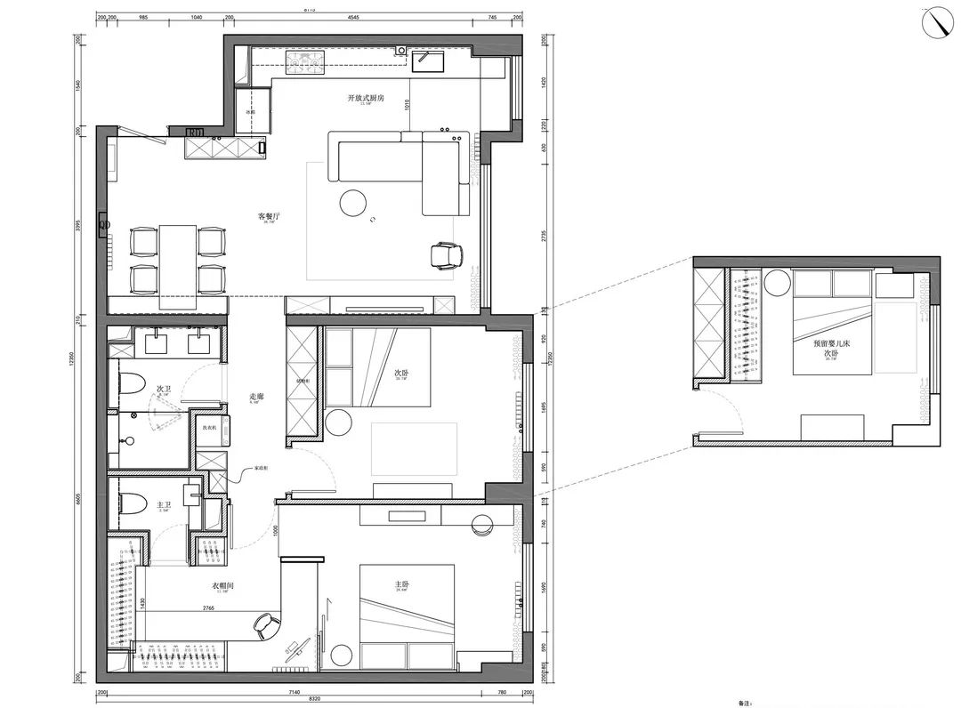
平面图:— 改造前—
▼业主的改造需求:
保留两个卧室,次卧作为多功能房可以做客房、婴儿房、健身房,同时希望有相对独立的办公空间;
保留两个卫生间,避免早晨上班同时抢用卫生间的尴尬;
业主家庭观念比较强,需要一个餐厅可以容纳 4-6 位家人聚餐;
饮食偏西式,接受开放厨房;
男业主酷爱手办,需要有手办展示区;
两人身高较高,家具尺寸需要定制;
▼原户型最大的问题:
缺少玄关功能,入户门后尺寸过小,分水器处理方式不仅占地而且不美观;
客厅超大落地窗采光和视野非常好,客厅空间尺寸过于局促,没有将大落地窗的优势展现出来;
厨房空间过于狭长,导致离窗远的地方采光不足,厨房落地窗采光和台面的问题没有得到很好解决;
两个卫生间造成过多空间浪费;
通往卧室走廊狭长,两侧白墙单调;
主卫占用面积过多,导致卧室空间分布极其不合理;
次卧入口与卫生间正对,而且紧邻客厅,卧室隐私性不好而且没有做到很好动静分区。
— 改造后—
将厨房与客厅打通,改为开放式厨房,将客、餐、厨三空间形成一个大空间,世界更开阔,原客厅和厨房落地窗引入空间更多光线;
原厨房落地窗位置为保证采光所以减少了橱柜的长度,重新设计后,将落地窗位置增加一个 U 形吧台,不仅与橱柜成一体,而且不减弱大落地窗的优势;
客厅和餐厅南侧墙面过长,所以将其作为一个整体来考虑,不仅具有储物还兼具美观性;
次卧靠近过道墙面内缩,留出尺寸给过道做家政储物;
将原主卧+主卫做一个空间考虑,同时原次卫面积过大,修改后平面,次卫内缩,将一部分空间给主卧做一个单人卫生间,同时主卧容纳了 U 形开放式衣帽间、书房、睡眠区三个空间;
走廊向原次卫和次卧外扩,两侧增加了超大储物柜和家政柜;
实景图片
—
玄关
—
入户左侧是超大玄关柜,中间空出的位置可以放一些随手小物件,配合暖光灯带让我们进门感受家的“温度”。
拐角大容量通顶储物柜,可以容纳近百双鞋子,外观更整体。
右侧墙上安装幻影超高穿衣镜,极简无边框+黑白阴影效果,凸显设计高级感;宜家黑色叙勒凳放置在玄关,与穿衣镜搭配更加和谐,具有多功能用途,既可以作为穿鞋凳,又可以是餐凳,又可作为一个小边几,百搭;
—
客厅
—
进门便可看到整个客餐厨区全貌,将客厅和厨房原超大落地窗的优势放到最大,空间打开后,采光也得到了极大的缓解,白天不开灯也完全没有问题。
客餐厅是家庭时光最美好的陪伴,开阔敞亮的设计也会让我们感觉更加的轻松舒适。在做饭的时候,夫妻二人也可以相互陪伴,聊聊当天发生的趣事,增加夫妻间的互动和乐趣。
整个客餐厨空间做了无主灯设计,顶面采用了磁吸内嵌条灯和内嵌射灯,灯光的布置可以根据空间功能的变化而变化,同时完整的顶面让空间更方正、更开阔,更简约。
天气好时,可以将窗帘全部打开,光线过于强烈时,可以将纱帘拉上,阻挡部分光线,让屋内光线更柔和;
厨房采用半遮光柔纱帘,光穿过,带给你不一样的视觉感受;
客厅电视墙和餐厅墙面做整体考虑,功能和美观性共存,即使是走廊的垭口也完美的融入到整个墙面的设计中,成为墙面不可缺少的一部分;
因为业主两人身高都比较高,所以在客厅的家具布置上抛弃了传统的方式,用灵活性强的小角几代替厚重的茶几,尽量不占用空间的地面面积,让动线更简单;沙发 1.1 的进深,即使是 1.9 高的男业主也完全可以盘腿在沙发上,看电影、玩游戏两不耽误,使用感受更舒适;考虑到沙发与电视墙之间的距离,放置传统的茶几不仅沉闷死板,还减少了客厅的可活动的区域,因此选择可移动的沙发小茶几以及在沙发角落加了一组边柜来代替传统的茶几;
沙发靠背也是实木小书架,是为了项目而定制的人性化的设计。书架翻盖后是一个收纳线盒,预留了插座,方便业主坐在沙发上时充电。同时,收纳盒的盖子做了特别设计,便于隐藏电线,保持空间的整洁。
在沙发靠窗 L 形的一边还有一个小长书架,可以放水杯、可以放笔记本,即使没有常规茶几,也能满足日常生活需求;
—
厨房
—
开放式厨房的设计,
让空间利用率达到最大化,让整个客餐厨区更加通透,视觉上更宽敞;超长厨房高低台面,满足男主人和女主人的使用需求;
为了避免做饭过程中产生的油烟让客厅留下油烟饭菜的气味,我们选用了有大吸力油烟机功能的集成灶。
厨房落地窗位置,安装柜子会阻挡部分光线,不做柜子又造成空间浪费,因此我们设计了一个 U 形吧台,让厨房拐角的位置也可以被充分利用,让这个空间既不浪费,也不会遮挡光线,面向窗外视野宽阔,风景很“不错”;业主闲暇之余可以坐在这里,读书、学习,或是小酌一杯,好不惬意。
—
餐厅
—
▼玄关视角的餐厅
餐厅家具在墙面杉本博司的黑白海景摄影作品的映衬下,灰色烤漆餐桌加棕色马鞍皮的餐椅以及黄铜的吊灯,精致又高级,像在诉说一个优美的故事;
墙上置物架可以放置一些花草树木,给屋内带来更多的生机,也可以摆放书籍、喜爱的小饰品等,既有收纳空间又具有美观性;层板灯带上下打出暖黄色的灯光,让餐厅的氛围更加温暖,更有家的感觉;滑轨插座,可以根据实际的使用需求任意的移动,随意地进行 DIY。
—
走廊
—
长长的走廊左侧向次卧外扩,留出一个超大、进深 600 的储物柜,外边为顶天立地平板门,既能储物又完全不突兀;
右侧向客卫外扩,增加一大组家政柜,洗衣机、烘干机内嵌与柜门齐平,美观又实用;
—
主卧
—
卧室作为一个对光非常有要求的空间,既要有合适的亮度,又要避免灯光刺眼,还要有好的光氛围,因此我们在卧室灯光上做出了很多考虑。睡眠区采用了无主灯设计,采用了更多的辅助光源来帮助我们形成不同的功能需求。
对多种光源的运用,在功能与美感之间取得平衡。主卧屋顶运用磁吸轨道灯,可以在轨道上灵活移动,根据个人的习惯调整灯光的位置;窗帘盒灯带的灯光打在窗帘上,形成渐变的光瀑,将线光转化为“面光”,氛围感十足,并且增强光的厚重感;床头灯带、柜底灯以及床头灯提供柔和的氛围光,同时又能提升卧室的精致感。
多种光源的综合运用,营造温馨、柔和的光氛围,让我们躺在床上时能感受到灯光,却又不会直面光源,从而能够更好地放松。
床头灯选择黑色调配以黄铜点缀,与卧室的色调和谐统一,不显突兀,具有设计感的吊灯提升整个卧室的质感。
床头的柜子既可以做女主人的梳妆台又可以作为临时的办公桌;— 工作台 —
书房的设计巧思融于全敞推拉门中,玻璃移门的通透设计,同时兼顾家里的衣帽间空间,视觉上和空间上都很开阔。平时推拉门可以打开,保证自然光源透进卧室每个角落同时保证空间透气;工作或者娱乐时,关闭推拉门,简单地将卧室和书房进行分割,形成一个独立的小空间,既保证两个空间的关联,相互又不会打扰。
书房除了推拉门还安装了蜂巢帘,遮光性能非常好,即便晚上工作也不用担心会影响到卧室中的人。根据自己的需求可以将风琴帘落到任何位置,又是卧室中一道美丽的风景线。
L 型书桌,拐角处的圆弧形设计让桌子不会太尖锐,提升办公的舒适度,同时也让这个空间更方正,增大桌面使用面积;
书桌靠墙的位置安装了洞洞板,可以用于整理收纳耳机、鼠标、充电线、数据线等,保持工作台桌面的干净整洁。
—
衣帽间
—
衣帽间分割有长款衣物区、短款衣物区以及叠放区,衣柜的嵌入式灯带,暖色的灯光照亮整个空间,对放置的物品一目了然,开放式的格柜设计,也让使用变得更简单和方便;
大容量的储存空间,足够放下夫妻二人的所有衣物;
隐藏在衣帽间中的是主卧卫生间的隐形门,空间整齐又完整;
—
次卧
鉴于目前房子的常住人口只有夫妻二人,次卧仅进行了简单的装修,方便家中有客人时暂住,未来有宝宝后也方便进行调整;前面插座也根据不同功能做了相应预留;
洗衣机及烘干机内嵌在走廊定制柜中。
—
卫生间
—
主卫
主卧卫生间放置一个单人台盆和马桶,空间虽小,但完全能满足一个人的洗漱需求。
次卫
棕色木质的储物柜,灰色系的地砖以及穿插其中黑色的线条,塑造简约、艺术的视觉感受,传递现代时髦的生活氛围。
卫生间双台盆,满足夫妻二人同时洗漱的需求。
大量的收纳储物柜满足储物需求。
壁挂洗衣机在装修前,事先确认壁挂洗衣机安装的高度,将进水、排水、电源三根管线从机器下方引出,通过管道固定,埋在墙里,确保在外面看不到电线,整体看起来清爽整洁。
# 偶然记录下的美好瞬间
—END —
硬装设计丨软装设计丨全案托管/咨询设计 TEL 13207606213
客服
消息
收藏
下载
最近






























































