查看完整案例


收藏

下载
新中式是一种传承,
亦是一种创新。
它扎根于中国传统文化的土壤之中,
取其精华、舍其繁琐,
以现代人的审美眼光
来弘扬中国古典文化。
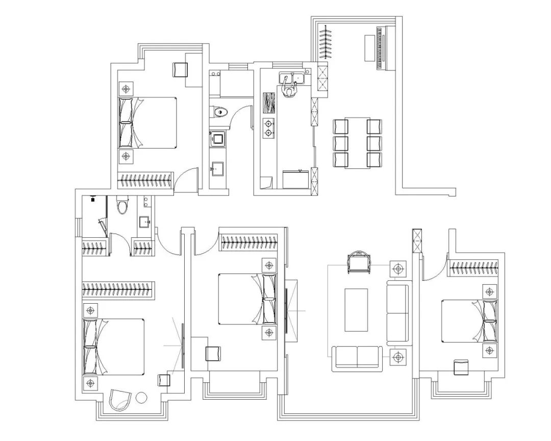
原始结构图
改造前:
入户侧面鞋柜位置太小,影响动线。
厨房空间利用率比较低;北阳台无法合理利用整体空间。
主卧比较狭长,需要合理规划卧室卫生间和储物间。
平面布置图
改造后:
入户处沙发背景墙的一部分拆掉,做成了鞋柜。保证了入户鞋柜的收纳空间需求。
原始厨房东侧的墙拆除后改成了柜子,增加了储物空间的同时又给空间增添了美感。
女主人爱美,我们的设计师将狭长的主卧一部分改成了衣帽间,于是主卧就变成了卧室、卫生间、衣帽间的搭配,互不干扰,保证私密性和舒适性。
入户
客厅
客厅沙发区与阳台结合,
连动整体客厅空间,
令担当社交属性的客厅围合感更显饱满。
餐厅
中式,讲究对称之美。
对称是一种稳固、朴素的设计,
餐厅装饰柜根据中式对称手法,
也是一种对生活圆满的美好向往与愿景。
主卧
简单的木线条体现出中式的韵味,
素雅的配色给卧室空间带来静谧的氛围。
地址 / Address:君合园
风格 / Style:新中式
面积 / Area:200㎡
户型 / Apartment:四室两厅二卫
设计 / Design:晟元装修创意
设计师 / Designer:杜佳
施工 / Construction:晟宁装饰
晟元装修创意
洛阳晟元装修创意中心隶属于洛阳市晟宁装饰工程有限公司
是一家以集室内设计、软装设计、工程施工等一体化综合性专业装饰公司,
团队组建于2009年,立足本土,扎根百姓, 主要从事商业空间、
高端楼盘样板间、售楼部、高档别墅、私人订制、医疗保健等项目装饰设计工程。
公司拥有资深的服务团队,团队协作能力强,对空间、材料、
软装搭配等各个环节为客户细致入微的服务。
公司从成立至今始终坚持“客户的满意度就是我们的服务标准,
金杯银杯不如客户口碑”。
我们将品牌声誉视同生命
,
以质量为本,设计为先的服务理念,以客户为中心,
想客户之所想,勤勤恳恳,全心全意做好服务,几年来服务了泉舜、
银隆、天基、仁爱医院、贝瑞佳、普惠体检等房地产商、
商业空间和医疗机构,并打造出了系列精品工程项目,
获得了多个国内奖项和合作企业的一致好评。
近期荣誉:
2019年度WYDF大中华区100大杰出设计青年
2019德国高仪中国住宅设计精英榜中国河南优秀奖
2019年度WYDF青年设计师论坛大中华区四十二青年设计名士
2019年日本东京IDPA国际先锋设计--top100国际影响力创新设计师
建筑装饰设计支持机构
2018年度WYDF世界青年设计师中国区100大杰出设计青年
2018年40UNDER40中国河南杰出设计青年
2018年青岛国际设计周“宏图奖”
2017年邓州市仁爱医院优秀施工单位
2017年邓州市贝瑞佳母婴服务有限公司优秀施工单位
2017年度WYDF世界青年设计师中国区100大杰出设计青年
地址/Add.:洛阳新区通济街与关林路交叉口北100米
END
客服
消息
收藏
下载
最近












