查看完整案例


收藏

下载
你眼中倒映的星河烂漫,
是我不曾见过的世外桃源,
山野万里微风浮动,
你是我月光里藏不住的欢喜……
项目地址:
淄博市周村区普利艾伦庄园别墅
户型:
双拼别墅,地上2层+负一
面积:
370平
设计师:
孟丽君
助理:
任志华
开工时间:2019年8月
设计说明:本套别墅为韩总与王小姐的婚房,未来几年内老人、宝宝、保姆等人员较多,即要考虑整套别墅的实用性,又要尽性享受二人的甜蜜时光,一层轻奢风格的公用空间,房间的多功能性,二层主卧套房的豪华感觉,负一的休闲功能等。王小姐眼光时尚品味高,与设计师很快达成了方案一致,现在改造完成,设备安装阶段……
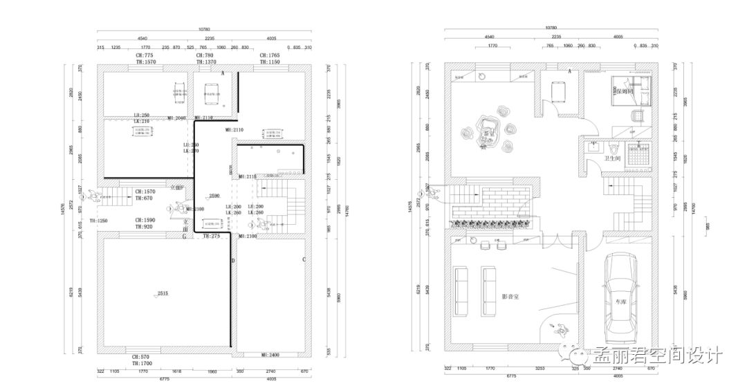
一层结构:
原建筑西侧为下沉式采光井,卫生间无窗,卧室做为双方老人预留房间较小。
做方案时,将西侧下沉式部分扩建拉平,改为干湿分离的卫生间,原卫生间改为北向卧室的衣帽间,实用性及收纳性更强;
南侧老人房门口原改为北向,即保留了卧室的私密感,客厅更完整;
餐厅厨房位置较小,做为开放式空间,吧台预留直饮水;
整幢房屋成为方正结构;
二层结构:
主卧室设计为套房,卧室+衣帽间+大卫生间,卧室部分飘窗低柜,衣帽间半开放式,即可储物,也可展示包包,整墙镜面,主卫圆形浴缸,尽情享受甜密的二人世界;因为是婚房,软装配色使用了酒红色做为主色;
北侧预留两个宝宝房;
南侧露台做为玻璃花房,浪漫的下午茶时光;
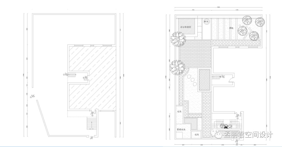
负一
结构
:
本套别墅的负一其实为半地下,采光很好,
原下沉式
采光井
封闭做为洗衣房;
北侧保留一个保姆间,另两个小房间打通做为茶室,直饮水到此;南侧大空间做为影音娱乐空间;
室外空间:
南院:原院门冲入户门,将原房楼梯做了改造,玄关造景;
西院:水景叠层,休闲花园,秋千美人;
北院:凉亭可品茶休息;菜园+果树种植区;
你也想要一份独一无二的
设计
感觉吗,
客服
消息
收藏
下载
最近














