查看完整案例


收藏

下载
相遇,在最美时刻
THE MOST BEAUTIFUL MEETING
项目名称:
万泾花园
项目面积:
120
㎡
设计风格:现代简约
主创设计:
许京
设计机构:青藜设计
文案策划:修合文化
烟火人间
最美邂逅
- 设计师说 -
本案业主是一对即将迈入婚姻殿堂的年轻小夫妻,他们从相遇、相知、相爱走向相伴一生,这一路充满了甜蜜与浪漫。婚房的设计理念以简约而甜蜜为核心,整体色调以淡奶咖为主,软装配饰上点缀一些喜庆的红色和橙色,清婉恬静,脉脉含情。
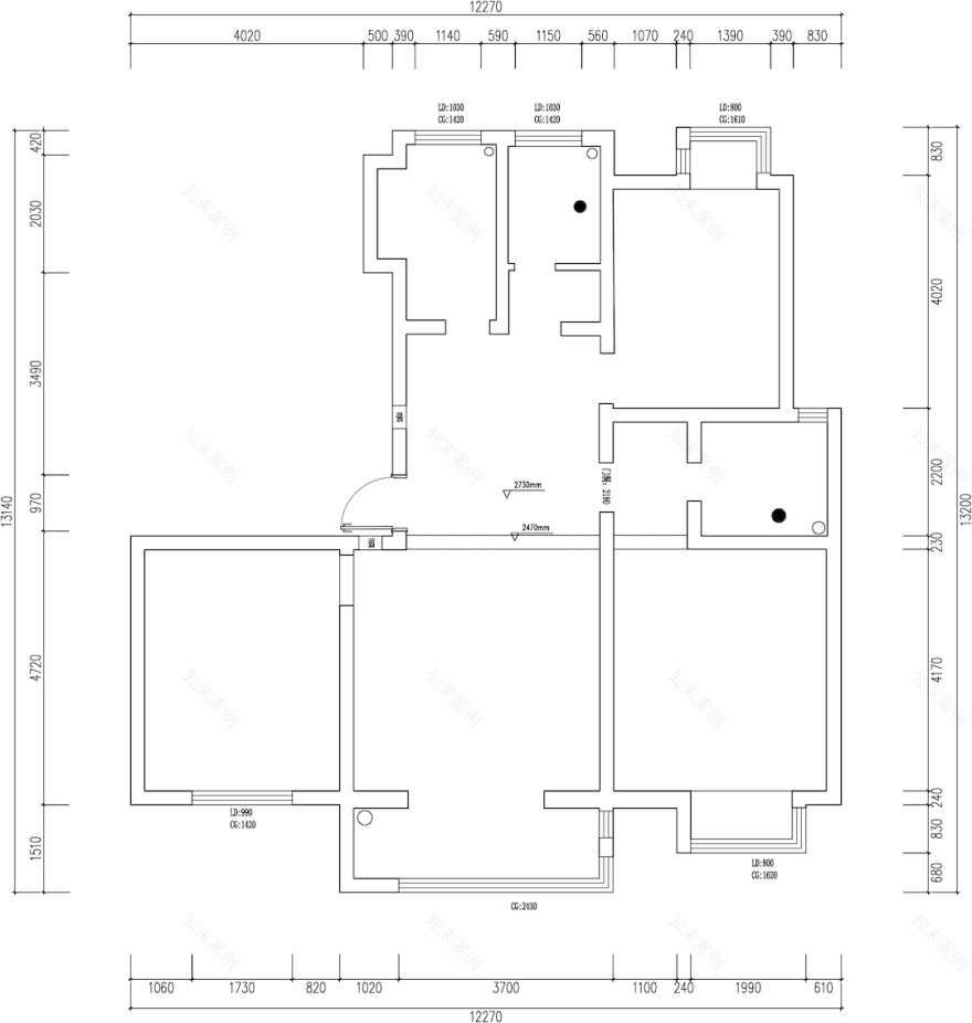
原始图
平面图
- 户型分析 -
根据实际情况,对房屋进行改造:
1、考虑风水与私密性,移动房门作统一化处理;
2、更换厨房门的形式与材质,优化采光与通风;
3、构建多道隐形门,增添整体空间的开阔感;
4、设计主题内外呼应,塑造和谐之美。
淡香软意 可爱瞬间
亲密情愫 可期未来
案例解析
以简约基调展开设计脉络,一边化重色为异形语境,一边改变色温注入激情,布艺与采光成为柔和的媒介,与格栅、浅奶咖色、绿植一同刻录小两口之间的幸福故事。
勾勒灯线,强调视觉美感,垂落高低起伏的球状灯,隔空呼应着星点之光的浪漫情愫,描摹疏密有致的饰面,释放美学张力,提升了家居形态的品格。
纹理,赋予浅灰墙壁无穷无尽的探索趣味。橙红落地灯,凭借点睛之笔,呼应着空间情绪与人体感知的共通性,不喧宾夺主,却恰到好处。
跳色元素,隔空呼应,联动了主次场域的关系,亦凸显出统一色调蕴含的从一而终的爱情宣言。弧线,犹如烟花散落的瞬间,绽放明亮。
承续简约风尚,依立面转折的缓急特质,穿插比例适宜的带光格栅,达成内外呼应的趣致。竖线,或长或短,以分区对称的形态,演绎跳色的跃动与和煦的氛围。
灰豆绿“伦敦雾”立邦调色漆,温馨而自然,碰撞木纹与纯色衣柜,促成休闲隅角,羔羊绒懒人沙发,沐浴在暖光之下,创造了卧室与人的亲密感。
铺贴奶咖色微水泥砖,把控整体色调,保持洁净美感,置入长虹玻璃,以对开比例区分淋浴区域,运用雅黑色调和几何造型,由线到面,由轻到重,串联起设计亮点。
往期
案例
回顾
青藜设计×欧洲城:清梦予你
青藜设计×苏州佑简科技:共生理想
青藜设计×仁恒四季和鸣雅园:木织光影
青藜设计×雅居乐:春风予你
青藜设计×合景峰汇:素笺
青
藜设计
QING LI DESIGN
ADD:苏州市相城区峰汇商务广场1-103
13814819413
客服
消息
收藏
下载
最近





























