查看完整案例


收藏

下载
共生理想
SYMBIOTIC IDEAL
项目名称:共生理想
项目地址:苏州益创科技园 5 幢
项目类型:办公空间
项目面积:320㎡
项目完工时间:2022.08
设计机构:青藜设计
主创设计:许京、叶新宇
文案策划:修合文化
摄影机构:晟苏建筑空间摄影
“我将 21 世纪的新世界秩序称之为‘共生秩序’,或是‘共生的时代’。”——黑川纪章
-设计师说-
本案为办公空间,既要考量现场的架构特征、采光情况、分区比例,也要将甲方公司的产品内核、设计主旨、发展价值观糅合进来,相辅相成,实现理想与现实合而为一的设计效果。
甲方公司致力于创新型穿戴医疗电子行业,穿戴医疗电子产品具有可持续性、可移动性及可交互性等特性,推行人机合一、以人为本的价值理念。
基于对甲方公司业务特性的分析和研究,我们认为其实质也是对人与自然、科技共生的探索,因此在本案设计中,确立了以“共生”为核心的设计理念。
原始图
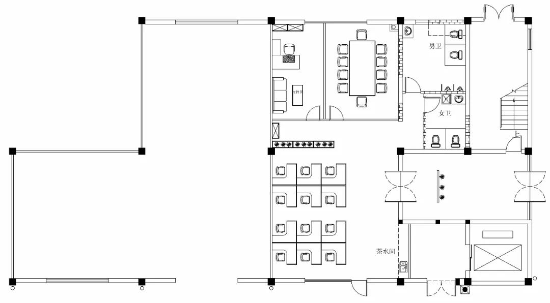
平面图
-户型分析-
根据需求与理念,对空间进行塑造:
1、以共生理念为核心,构建多维融合的形态;
2、联结自然元素,为空间注入鲜活力量;
3、重塑内外关系,创造强烈的吸引力;
4、善用新型科技材料,凸显美学与品质;
5、点缀艺术品,升华空间格调。
内部与外部的共生
人类与自然的共生
传统与科技的共生
案例解析
将原先位于外立面的大门内退,预留出尺度合宜的“灰空间”,以开放的姿态模糊空间界限,展露出内部与外部融合共生的和谐意义。檐下左侧的黑色装饰立柱由一根废弃路灯杆演变而来,深刻体现着可持续理念,同时以型、色、势平衡了空间重心,稳定且别致。
门厅处的雕塑《RAIN》源自于乌克兰雕塑家 Nazar Bilyk,雕塑本身即是在探讨人与自然的关系,正如 Bilyk 所说“雨滴代表他自己和他与整个世界的对话,这是他收到的答案”。
仿照传统建筑中的天井结构,通过吊顶内凹和软膜天花的方式,于入口“灰空间”和室内景观区引入"自然光",进一步拉近人与自然的距离,创造人与自然共生的美好叙事。选用天然的绿植景观作为隔断,兼具分聚人流和玄关功能。
接待区采用新型装饰材料杜邦纸,承续于“灰空间”的形象墙,而后传递给综合办公区的员工位隔断,其以独特的纹理、触感及美感,可回收再利用的环保特性,完美融合了传统与科技,再次点明了“共生”的主题。
步移景异,从门厅开始,共生所表达的情态与内涵便顺流至空间深处,并向四周蔓延,让置身其中的人、物、景、光自在地交流。在绿植景观区布置高低错落的天然石块,将自然之作与人亲密串联。
门厅与主次过道之内包含了三个重要节点,是人流必经的枢纽站,枝繁叶茂、绿意葱葱的植物,正散发着来自旷野、溪流、土壤的灵气,无声无息,却又精准无误地消解了沉闷枯燥的办公气氛,唤醒了空间活力。
地面铺装以水泥抛光地坪和 spc 地板的组合,演绎传统与科技的共生。粗矿原始的混凝土立柱和纵横穿插的顶面木梁,在不同材质区域融合互补,充分展现“你中有我、我中有你”的太极融合之道,同时强化了空间的纵深气韵。
综合办公区与独立办公室一分为二,穿插镂空铁艺装饰柜、无框玻璃隔断、通顶玻璃门与极窄边框玻璃中轴门,力求弱化场域之间的边界感,强化空间的极致通透和自然衔接。
深谙玻璃蕴含的特质,将之作为隔断和背景,注入开合功能,为综合办公区与综合会议室建立起沟通“桥梁”,又携一定的私密性,搭配禅意盆景,升华了综合会议室的庄重感与仪式感。
黑与白,是世界的本质,透过人的观察与感知,才让色彩与动态形成了“灰”的部分,室内甄选的家具、装饰画、落地灯无一例外都是这一深层奥义的体现。合围场域,消弭声响,以木为主导,酝酿出沉静的气氛,益于集中精神,高效办公。
以点、线、面塑造空间的简约风格,凭借与美学有关的意趣,舒缓工作的压力。利用科学的几何分割手法,创造出丰富的空间层次,集办公功能与天井景观于一体,紧而不怠,松而不散,惬然有致。
以现代简约为基调,黑色的洁具在浅色背景的衬托下,激活了视觉张力,呈现出更细腻入微的质感。通过温润木色与生机勃勃的绿植,对空间进行精致刻画,在一定程度上强化了空间的连续性,营造出一份自然与安然。
往期案例回顾
青藜设计×仁恒四季和鸣雅园:木织光影
青藜设计×雅居乐:春风予你
青藜设计×合景峰汇:素笺
青藜设计×美的云筑花园:暖·云
青藜设计×华润橡树湾花园:律动·现代诗的美学人居
青藜设计 QING LI DESIGN ADD:苏州市相城区峰汇商务广场 1-103 13814819413
客服
消息
收藏
下载
最近










































