查看完整案例


收藏

下载
轻
奢
作品信息
面积:120㎡
户型:二室二厅一卫
风格:现代轻奢
设计师:郑江
项目地点:合肥.尚水湖畔森园
施工单位:合肥川豪装饰公司
合肥这套120㎡房是一家三口居住,初次沟通的时候了解到了夫妻俩的居住需求,虽是两居的户型,但是想要有个书房空间。另外,女儿房空间独立,能够满足学习、娱乐、休息的需求。根据屋主的要求,设计师最终呈现了如下的实景作品:
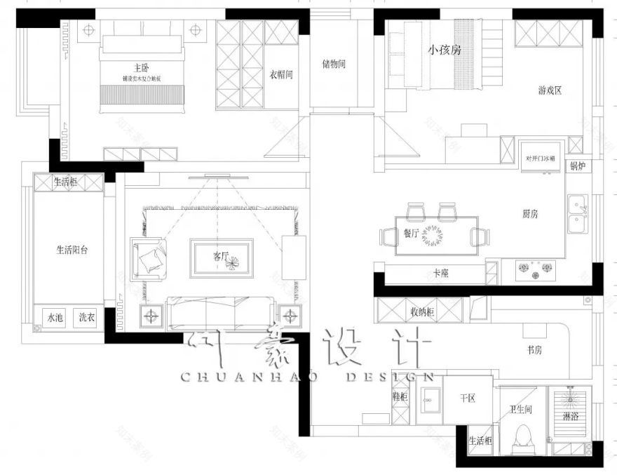
◣平面布置图
玄关
|满足储物需求
进门右侧定制鞋柜,满足储物需求,左边增加全身镜,让局促的入户空间更显宽敞。
客厅
|增加投影幕布设计
筒灯、射灯、线性灯等无主灯设计,打造更有层次感的灯光效果。将电视嵌入墙体,保持了电视背景墙的完整性,更显美观,同时考虑到家有孩子,增加投影幕布设计,可以减少电子产品对孩子眼睛的伤害。
餐厅
|餐厨一体化
墙面装饰性钟,在灯光的映衬下更显灵动有趣。
餐厨一体化设计,开放式空间,增进了家人之间的互动和感情的交流。餐厅卡座+壁龛设计,充分利用空间,美观且实用。
书房
|L型设计
二居的空间,怎么满足想要拥有独立书房的愿望呢?设计师在进门的转角设计了L型书房,临窗的采光环境,搭配定制柜,日常无论是办公还是看书都是个不错的地方!
走廊
|储物室
走廊的尽头是个储物空间,将杂物进行收纳,让空间更显干净整洁。黑色隐形门设计搭配灯具,反倒多了些神秘感。
主卧
|营造舒适的睡眠环境
卧室浅灰色、米色的搭配,温馨静谧,再配以暖色吊灯,营造了让人快速入眠的休息氛围。每天下班回到卧室,卸下一身疲惫,躺在舒适柔软的床上,做个甜美的梦是件再幸福不过的事情了!
儿童房
|休息、学习、娱乐
儿童房满足休息、学习、娱乐的需求,墙面卡通图案的墙纸和地毯,再搭配玩具,充满着童真童趣。床的对面是书桌,劳逸结合,学习、娱乐两不耽误!
点击文末“
阅读原文
”10秒获取装修预算报价!
往期推荐
实景|120㎡极简,做好未来3-5年的规划~
实景|140㎡简约舒适三居,开敞明亮,柔和温馨~
实景|130㎡美式,空间色彩的丰富,让平淡的生活过得生机活力~
客服
消息
收藏
下载
最近




























