查看完整案例


收藏

下载
APEX DesignAward 2022 获奖作品展
年度新锐
建筑室内设计师
获奖者:陈伯春
设计机构:HOUPAL 厚派建构
陈伯春:厚派建构设计师
设计不需要解释,需要的是解决问题的逻辑和思路;需要的是看待事物的方式和方法;需要的是设计师的真实感受和态度。
机构地址:湖南长沙雨花区香樟路 469 号融创前海中心 NH1 栋 1601-1606
咨询热线:86-0731 8413 4998
潮玩 ON-LINE
柳玥臺样板间
“z 时代”是最具个性的一代,他们热衷潮流,喜欢隐私空间,喜欢线上社交,想法千奇百怪……他们追随着城市的繁华,在这物质丰富的世界里,寻求着精神的富饶与自由的畅快。
光影穿过蓝色渐变玻璃层架,朦胧与清晰的共存,通透的光学美感,凸显纯净的视觉感官。用热爱灌注生活,让潮流单品以生活化艺术视角打开年轻潮玩体验。
霓虹灯挂画营造时尚餐厅的即视感,蓝色与低饱和的橙色的对撞营造空间故事化表达,塑造具有仪式感的生活场域。
玩具外观和趣味性形状是未来家具的创新成型,空间的每一处细节都源自兴趣打造,充满活力与艺术反叛,展示生活的多向思维,构建出时尚的居住空间形态。浅灰白大体块设计手法与原色不锈钢的搭配奠定了空间现代简约的基调。极富趣味感的家居混搭,以艺术作为承载生活状态的容器,呈现空间场景化互动。
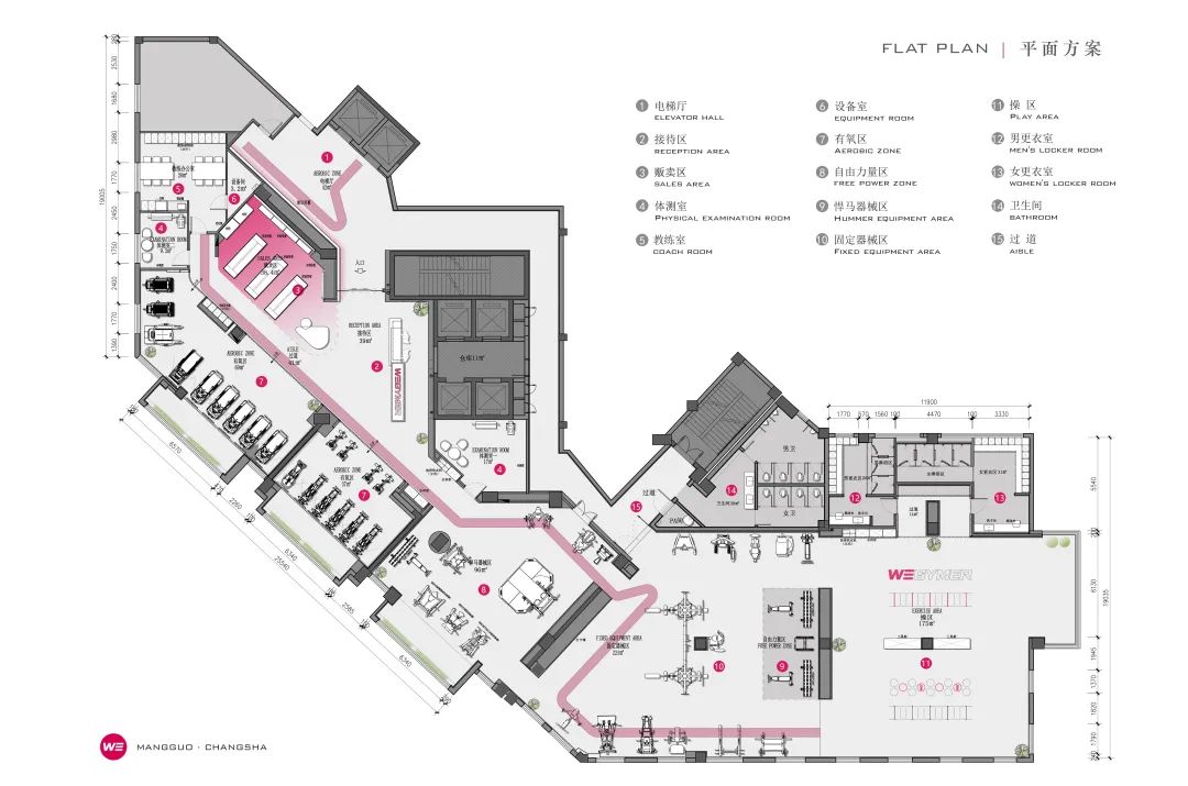
WEGYMER 芒果馆
印刻 WEGYMER 的红色金属 U 型材,打开空间场景,引导外部流入,跳脱周围场景,醒目且具有冲击性,将专属于健萌的视觉体验构筑于会员的深层记忆里。
以天花造型为线索由外至内串联整体空间,营造视觉语言,在刻意削弱内部区域划分的同时却能延伸空间感受,形成有序互通的空间整体。
长沙,一座潮流不断更迭的网红城市,健身房作为城市活力潮人的集散地,通过设计语言将网红打卡模式融入运动,在保留清晰的辨识度和品牌形象同时让健康运动成为这座城市新的共鸣与互动的载体。
灰白色的空间点缀健萌红,让松弛与自由坠入其中,每一处的视觉感受,都让你卸下防备,给予“自在”“平静”的状态。
云 Park 生活馆
宇宙的游离,未知的探索,内外空间的衔接,视野永久性定格传播,打造「新青年」新潮生活打卡地。
亚克力的不断叠加营造空间导口,x 仔以反重力的姿态沟通内外引导多维沉浸的环境,将角色变成可感知品牌内涵导入,触发视觉记忆点,引导出空间探索动线。
以金属栅格设定出半围合的休息区,蒹葭苍苍,湖水茫茫,通过舒适的光影以及自然肌理的碰撞去寻回喧嚣后那段静止的时光,重新考虑城市、自然和人之间的关系,传递另一种高级又不失趣味的理想化生活观念。
在核心区融合「新生代」人群的生活场景审美,打造理想化的乌托邦场景,形成自然与科技未来感的冲突断层,回归真实生活的原本色彩,静静感受快节奏工作生活后的逐渐松弛的神经。
END
顶峰设计奖组委会
邮件 E-mail:湖南省建筑室内设计学会
:HIID13055171717
:HIID13055171717
客服
消息
收藏
下载
最近











































