查看完整案例


收藏

下载
△ 江雅园办公楼东南角外景
项目地点
湖南 长沙
设计单位
湖南省建筑设计院有限公司
主创建筑师
杨瑛
建设时间
2014年4月至2016年5月
建筑面积
38421平方米
湖南省建筑设计院·江雅园办公楼位于长沙市洋湖湿地公园以北,东临雅河与湘江,西面与北面为城市街道,交通便捷,拥有良好的自然环境与景观资源。设计意图使建筑成为连接街道与自然湿地的媒介,以一座开放、共生、愉悦、绿色、高效的写字楼,作为对场地最积极的回应。
△ 临街界面
△ 航拍鸟瞰
△ 亲水界面
顺应狭长用地,建筑采用“日”字型布局,以两个互通的“光庭”为核心,建立以光庭水院、玻璃廊桥和楼梯、景观电梯、开敞巷道、内庭景观平台等水平与垂直连接系统于一体的开放流动公共空间,并围绕它展开布置设计人员使用的办公、绘图工作区,以及模型制作、学术研讨、展览会议、商务接待等功能空间。在满足快速高效解决交通疏散的同时,取得空间的纽结与传递作用,相互联动,相互渗透,共同构成漫步式开放的立体“街巷”情境空间。
△ 导引区
△ 大堂交通
△ 光庭
△ 光之廊道
△ 走廊空间
△ 玻璃楼梯
△ 玻璃廊桥
△ 大堂入口
△ 创作中心·杨瑛工作室入口
在这个“街巷”空间里,阳光与空气被玻璃材料构成的空间重新分配成为空间营造的积极参与者与组织者,人与光共舞。办公工作、交流互动、研究讨论、休闲放松、独处静思等行为都可以在这个立体的“街巷”空间平台里得到解放。人与工作、人与空间的紧张关系得到软化,一种轻松和谐的共处成为可能,这也提高了空间的效能和工作效率。
△ 创作展示廊
△ 大堂展示空间
△ 开敞办公空间
△ 开敞阅读空间
由内及外,将“街巷”空间的丰富性以及玻璃材料构成的光、亮、洁、透的空间特质,透过办公工作区等空间延展至外部立面空间,建筑得以用一种轻松、多维的状态介入场地。通过U形玻璃、LOW-E玻璃以及超白玻璃的组合运用,解放内部功能与环境地形的约束,形成和城市街道与自然环境相融合,散漫而开放的边界。U形玻璃和LE玻璃组合成的不规则凹凸界面,让阳光呈不同状况透入室内,形成丰富的光环境,最终生成有活性、有表情、有情趣的城市环境共生体。
△ 湿地一瞥
△ 北向外景
△ 临街界面
△ 河畔透视
设计图纸 ▽
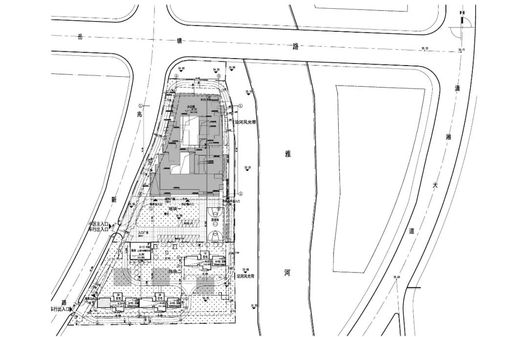
△ 总平面图 ©湖南省建筑设计院有限公司
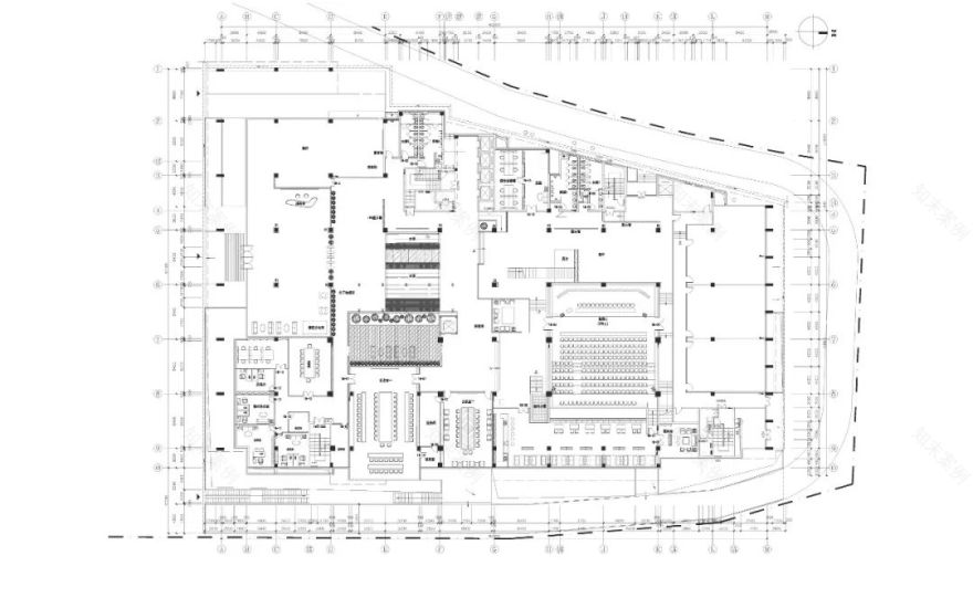
△ 一层平面图 ©湖南省建筑设计院有限公司
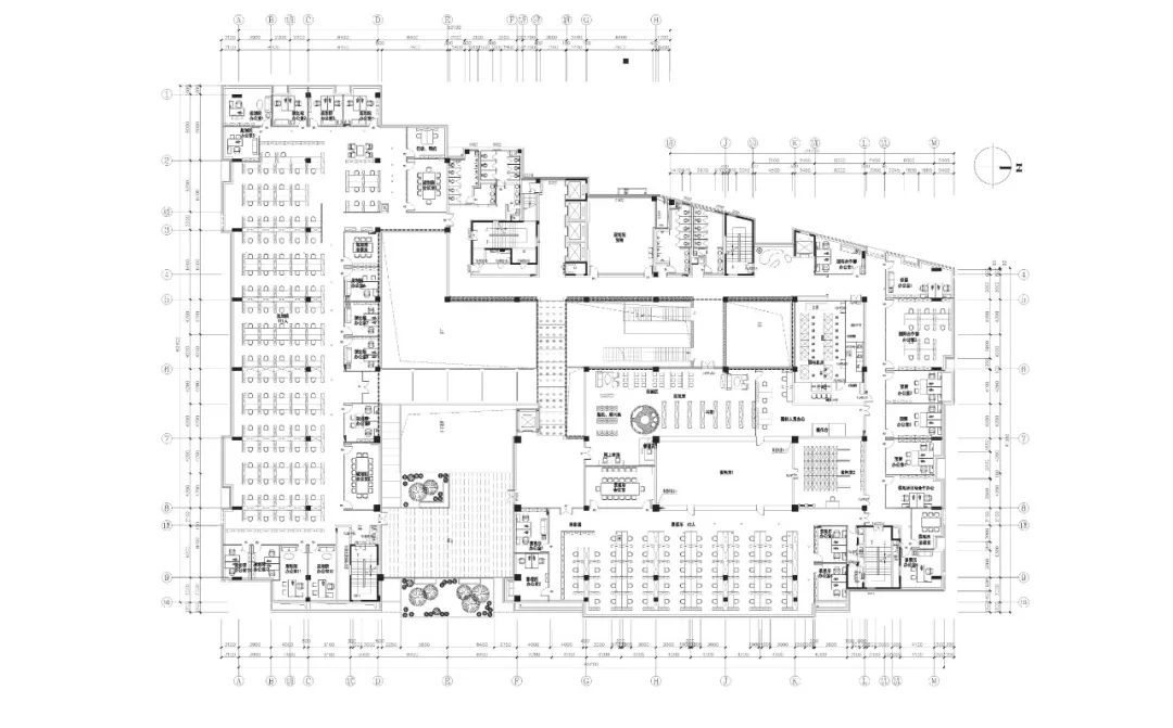
△ 二层平面图 ©湖南省建筑设计院有限公司
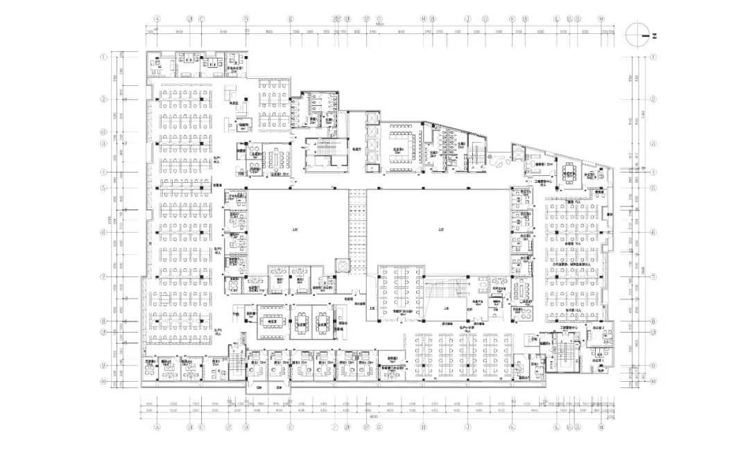
△ 三层平面图 ©湖南省建筑设计院有限公司
△ 四层平面图 ©湖南省建筑设计院有限公司
△ 五层平面图 ©湖南省建筑设计院有限公司
△ 六层平面图 ©湖南省建筑设计院有限公司
△ 东立面图 ©湖南省建筑设计院有限公司
△ 西立面图 ©湖南省建筑设计院有限公司
△ 南立面图 ©湖南省建筑设计院有限公司
△ 北立面图 ©湖南省建筑设计院有限公司
△ 剖面图 ©湖南省建筑设计院有限公司
完整项目信息
项目名称:湖南省建筑设计院有限公司·江雅园办公楼
项目地点:湖南 长沙
设计单位:湖南省建筑设计院有限公司
主创建筑师:杨瑛
设计时间:2013年5月
建设时间(起迄年月):2014年4月至2016年5月
建筑面积(平方米):38421平方米
摄影师:杨瑛、龙合辉
视觉
/ 李茜雅
校对
/ 鲍思琪
客服
消息
收藏
下载
最近






































