查看完整案例


收藏

下载
项目地址:昆明·华夏御棠
面积:132平米
设计风格:中式
设计师:明朝秀
客户代表:李梦丽
项目经理:周明祥
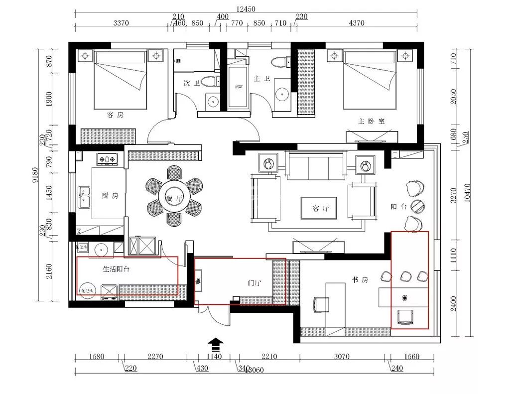
户型改造
房子常住的是房主夫妻二人,孩子在外读书,偶尔回来居住,所以设计师将最小的卧室改造成了储物和洗衣间;男、女主人平时喜欢看书、喝茶,所以另外的小卧室则规划成书房兼茶室。
客 厅
木质的构架和色调看上去亲近自然、端庄稳重,空间上遵守了均衡对称的原则,流畅的线条打造了空间层次感,开阔大气。
客厅的两个背景墙一面是壁纸,一面是砖,沙发背景呈现水墨画的意境,电视背景墙用了蓝色砖,色彩上的跳跃让氛围不那么严肃刻板。
阳台被充分的利用起来,储藏柜摆放展示着主人喜爱的饰品,藤编的桌椅带来放松随意的感受。
餐 厅
餐桌与顶面相互呼应,没有复杂的装饰,简单质朴,地面的材质与客厅区别,满足使用便利。
门 厅
布局改造后门厅更加宽敞,增加了足够的鞋柜,屏风隔断既有装饰效果,也达到了中式里移步换景、幽静深远的意境。
卧 室
以暖色为主,主卧的中式特点相对要突出一些,然而不管是花鸟的壁纸还是石材纹理的背景装饰,都体现着居家古典风韵,温婉和谐
书 房
书房是主人主要的休闲空间,可以看书、可以品茶;书柜,博古架都是内嵌的,款式上与主题风格一致,整体性性比较好。
点击“阅读原文”
或
欢乐佳园装饰 JY4006881111
客服
消息
收藏
下载
最近


























