查看完整案例


收藏

下载
选择设计,亦或是选择一种生活方式。欢乐佳园,源于专业设计,立于精巧工艺,致力于给每一个相信佳园的业主,打造一个舒适幸福的家。
❒ 小区环境
专注家庭装修 23年
1
华润悦府
面积:套内146㎡
朝向:西南向
设计师:杨丽
原始平面图
﹀
﹀
﹀
户型优劣
优点:
1.地理位置优越,位于官渡区环城南路与东郊路交汇处,周边餐饮、银行、超市、学校、医院等一应俱全。
2.户型方正,功能空间齐全,布局舒展,尺度宽松,动静分区。
3.南北通透,即充分采光,又利于室内空气流通。
4.卫生间为降板结构,有利于卫生间的空间规划。
5.客厅与景观阳台相连,使客厅空间感增强,采光效果更好。
6.主卧室带独立卫浴,便捷之中尽显优越与尊崇。
缺点:
1.厨房除去门洞可操作空间偏小。
2.餐厅空间狭长,太浪费空间。
3.入户空间太局促,不够大方。
4.楼梯间太狭长,并且没有直接光源,光线弱,使餐厅到楼梯间区域阴暗狭窄。
5.楼梯踏步离主卧室门太近,存在安全隐患。
若您需要完整的改造方案
效果图及装修报价
可在线咨询
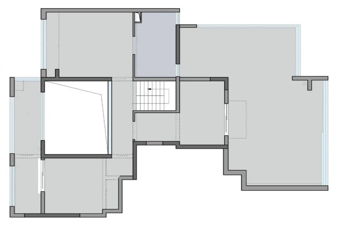
2
华润悦府
项目面积:300㎡
设计师:
展
康震
原始平面图
﹀
﹀
﹀
方案参考
1.拆除客厅玻璃移门,阳台封窗。
2.厨房参照样板房,样板房已有两组冰箱,需要再增加一组冰箱。高柜与岛台互换位置,岛台靠窗,加宽台面到800mm。
3.过道加双开门,将卫生间规划到次卧室使用,做成套房。
4.次卧室外阳台拆除玻璃移门,封窗,合并到室内使用。
5.主卧室拆除玻璃移门,封闭阳台规划到室内使用。主卧室考虑电视功能,并增加衣柜。
6.不喜样板房主卫生间深色砖。现样板房干湿分离区域空间略显浪费,重新规划,并增加壁龛。浴缸做成嵌入式浴缸。
方案参考
1.负一层保留三个卧室,考虑居住人数,卫生间干湿分区,可同时满足多人同时使用。
2.拆除玻璃移门,封窗将阳台规划到室内使用,中间卧室整面玻璃移门,满足楼梯间自然采光。
3.保留应急开关。
4.木质楼梯,拆除楼梯对面墙体,使楼梯间宽敞明亮。
若您需要完整的改造方案
效果图及装修报价
可在线咨询
3
华润悦府
面积:360㎡
设计师:李春森
原始平面图
﹀
﹀
﹀
方案参考
1.保留客厅中空
2.入户对着楼梯需调整楼梯间位置
3.餐厅与门厅连接空间长度太长需考虑使用功能,减少浪费
4.厨房使用空间是否需要加大
5.楼梯间开放与书吧相连
6.增加钢琴房
方案参考
1.修改楼梯间位置
2.增加阳光房作为茶室功能
3.加入影音休闲区与书房连接
4.二楼主卧卫生间考虑双洗手盆浴缸
若您需要完整的改造方案
效果图及装修报价
可在线咨询
4
华润悦府
面积:360㎡
设计师:李春森
原始平面图
﹀
﹀
﹀
方案参考
1.搭建中空
2.入户对着楼梯需调整楼梯间位置
3.餐厅与门厅连接空间长度太长需考虑使用功能,减少浪费
4.厨房使用空间是否需要加大
5.洗衣阳台在一楼
6.楼梯间考虑主卧储物
方案参考
1.修改楼梯间位置
2.需要书房休闲多功能空间
3.主卧室
若您需要完整的改造方案
效果图及装修报价
可在线咨询
END
扫码关注
获取更多
欢乐佳园热线
400-688-1111
18313959817
点击阅读原文
查看更多实景别墅大宅
客服
消息
收藏
下载
最近














