查看完整案例


收藏

下载
©Wen Studio
每一个美好的产品背后,必定带着美学审美的生产过程。生产中的审美规律延伸出的不仅仅是关于产品的美,也是关于生产环境的美以及产品质量的美。而崃州蒸馏厂在致力研究威士忌多元风味的同时,从酒厂迈出,希望呈现品牌的文化与中国威士忌的态度,拉近与所有威士忌爱好者的距离,于上海开设了第一间品牌体验酒吧。
©Wen Studio
Inspiration / 生产美学的空间置换
位于四川省成都市邛崃市的崃州蒸馏厂,以“创造威士忌的更多可能”为愿景,隶属于上海巴克斯酒业有限公司,也是全球少数同时拥有壶式和连续柱式蒸馏器的威士忌烈酒蒸馏厂。
他们始终秉持着 “因自然而生,与自然同行”的绿色理念,目前已成为中国首家践行净零排放绿色理念,将碳中和作为长期实现目标的公司。
这也成为了 Roomoo 对于旗下上海第一间酒吧空间体验的设计出发点。
©Wen Studio
©Wen Studio“崃州吧”Laizhou Bar 整体空间序列的营造通过“引用”“提取”“放大工厂生产过程”的手法,将生产过程中所用材料的细节导入到酒吧空间形态的表达中。链结酒厂和酒吧两个场域的互利共生,相辅相成。藉由酒吧设计的引导,创造出让更多人想要了解品牌及工厂的兴趣。
©Wen Studio
©Wen Studio
Concepts / 处处呼应的是品牌的涵养
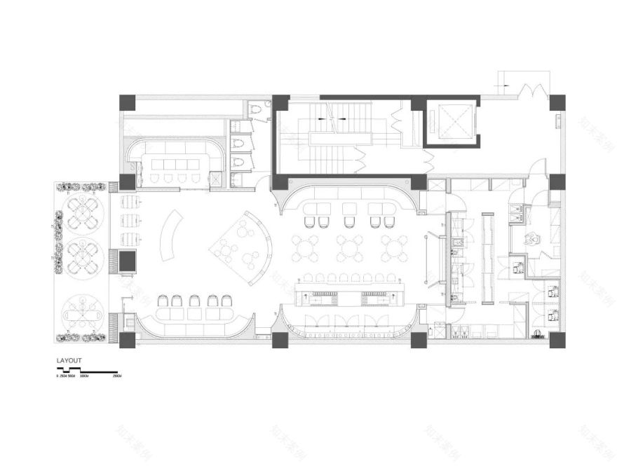
崃州吧整体空间规划由品鉴区、VIP 室、酒吧区、厨房、卫生间及室外外摆区域组成。综合整间酒吧而言,不仅需要顾及实际的使用需求,更要表现出能够与崃州酒厂两相呼应的品牌精神。
©Wen Studio
流动|无穷大∞ 两相呼应
具备绝佳酿酒自然环境的邛崃有着“天府南来第一州”称号,同时也具有亚洲最大萤火虫的最佳观赏地一说。
因而,设计师利用酒厂威士忌橡木桶所拆掉的近 6000 片废弃木桶片,以艺术装置的型态连接了从外到内的长条型空间,将室外和室内,以及室内入口品鉴区和后场的酒吧区连接贯通,形成从内到外流动的空间视觉体验。
©Wen Studio
©Wen Studio
室内品鉴区和酒吧区顶面的双环结构共同形成无穷大(∞)的符号视觉,与酒厂威士忌生产,肥料,蒸汽等的循环利用理念相呼应。
© Wen Studio
顶面由废弃木桶片搭建形成的穹顶结构突出了品鉴区作为空间中心的分量。通过一层层跑马灯的灯光设计在晚上强化了独特的自然时间延展的流动感,也有一种彷佛是萤火虫停留闪烁般的视觉感受。
©Wen Studio
循环|可持续 运用自然
崃州蒸馏厂在建筑建成后荣获中国“绿色建筑”设计标识三星的最高认证,并且持续坚持着对建筑、生产、和副资源回收三个方面的环保落实。
所以,在材料的应用上,Roomoo 秉持酒厂可持续的理念,利用酒厂废弃的橡木桶片和酒桶金属环作为整体最重要的构造材料,形成了崃州吧独一无二的室内顶面结构以及外立面。
© Wen Studio
© Wen Studio
©Wen Studio
每一片被拆掉的木桶片在木片弯曲弧度、宽度、长度和纹路上均不同。通过每片不同的尺寸细节和纹路,把其进行分类应用到外立面和穹顶不同的位置中。
©Wen Studio
©Wen Studio
©Wen Studio
©Wen Studio
设计师很清楚的知道,废弃的橡木桶数量是有限制的,在这个前提之下,评估整体酒吧的形象设计,针对双环结构的双穹顶,Roomoo 决定如同筑巢般,先筑出品鉴区的穹顶,而后伴随着时间的增长而产生的废弃木桶片,再一步步积累朝向酒吧区的穹顶做构筑。
酒吧区的顶面金属结构为下一步木结构的增加做好了现场的结构基础。
© Wen Studio
© Wen Studio
在流动的造型基础上,通过木结构独特的使用痕迹,带给了空间特有的时间循环和岁月冲刷的历史感。另外,在品鉴区和酒吧区的分区隔断上,设计师把废弃的金属环以及裁切的一部分带孔的木片结构组合起来,形成上下连贯的材质表达。
并且运用部分废弃桶金属环制作了 VIP 室中的灯具装置,金属环本色透过环境灯光的辅助,自然表现出一份特殊的艺术面貌。
©Wen Studio
©Wen Studio
©Wen Studio
留痕|拟素材 重塑氛圍
痕迹是威士忌生产过中一直存在的美学特征,比如橡木桶木片的横截面细节、火烤木桶后存留的碳化表面,酒桶的沧桑之感与酒本身圆润的口感之间的对比以及蒸馏过程中铜壶伴随温度的变化等。
© Wen Studio
©Wen Studio
材料说明
组装过程和细节
设计师用无纺布模仿橡木的剖切纹,形成了空间中酒类展示背景墙,以及卡座区的上半区域墙体,伴随着可变色微微发亮的灯光氛围,中和了橡木给人的稳重感,协调顶面的穹顶木结构,将整体的空间氛围引向年轻化。
被烟熏过的金属板和蒸馏的铜板材料形成除发光墙面另外的墙体部分,又将厚重感和酒吧的昏暗特质进行了重塑。
©Wen Studio
©Wen Studio
©Wen Studio
▼项目图纸
©RooMoo
©RooMoo
©RooMoo
©RooMoo
©RooMoo
项目类别:餐饮项目
建成时间:2023
建筑面积:200㎡
室内设计:RooMoo 如莫设计
建设单位:上海邑筑装饰工程有限公司
灯光顾问:欧羊(WOY)照明设计
主要材料:废弃酒桶片,废弃酒桶金属环,灰色地砖,白色半透无纺布,古铜色金属板,烟熏黑金属板,发光亚克力
项目地址:中国,上海
项目业主:巴克斯酒业
项目图片:Wen Studio
过程照片:RooMoo邑筑装饰
DESIGNERS
主创设计
张睿、张韬、Marine Bois
如莫设计空间(上海)创始人
RooMoo Design Studio 由张韬、张睿和 Marine Bois 建立,并由一群热爱设计的多文化背景团队组成,对本土文化的理解和国际化的视野让我们更愿意尝试和探索传统文化与当代生活的临界点。
我们不仅关注材料、空间品质、细节以及整体设计录出,同时也把家具、装置以及插画等相关设计衍生纳入到我们的工作范围内,打破原有空间设计秩序,用我们自己的方式建立与外界的连接。
客服
消息
收藏
下载
最近









































