查看完整案例


收藏

下载
洛阳罗曼罗兰文化传播旗下媒体:洛阳《建筑装饰》杂志、AD 建筑装饰微平台、碧桂园·玖玺台
本案是一套时尚的中式风格,将一些传统风格的中式融入,做成新中式现代装修风格,是中式元素与现代材质的巧妙结合。
客厅
客厅以温润内敛的木饰面与白色的柜门相结合,有虚有实诠释出别样的空间质感。沙发背景墙以简约的隔板书架,彰显浓厚的书香氛围,让国学文化和家族文化不断传承,简约的线条,传统的中式元素,勾勒出不凡的韵味。
餐厅
餐厅大面积的留白,一幅色彩丰富的装饰画恰到好处的点缀,让家更加温馨、充满艺术的气息。
卧室
卧室空间同样整体视觉效果协调统一,避免杂乱感。温润的木色与大面积的留白相结合,床头背景以属于中国人的故宫色配色,才是美到看一眼就忘不了的中国传统色,整个空间更加的舒适安逸。
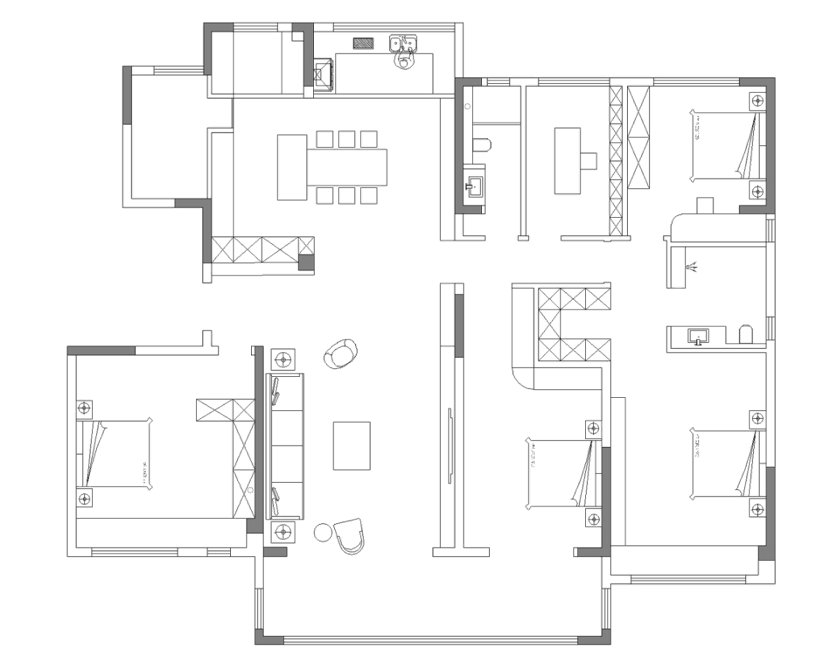
平面布局
∆原始平面
∆ 改造后
设计单位︳晟宁装饰工程有限公司
项目地址︳洛阳碧桂园玖玺台
项目面积︳280㎡
设计时间︳2022-8
项目呈现︳SU -THE END-
SUNNY DECORATION/晟宁装饰
何雪茹、谢宠举/创始人、主理人
洛阳市晟宁装饰工程有限公司是一家以集室内设计、软装设计、工程施工等一体化综合性专业装饰公司,团队组建于 2009 年,主要从事商业空间、高端楼盘样板间、售楼部、高档别墅、医疗保健等项目装饰设计工程。公司拥有资深专业的设计和施工服务团队,团队协作能力强,能为客户提供细致入微的服务。几年来服务了泉舜、寰晟、银隆、天基、仁爱医院、贝瑞佳、普惠体检、欢乐教育等项目,并打造出了系列精品工程项目,获得了多个国内外奖项和合作企业的一致好评。
公司荣誉:
- 中国家装设计百强品牌
- 可持续发展设计优胜奖
- 金堂奖 2022 年度城市十佳
- SDA 石尚设计大奖明星设计师
- CBDA 金铅笔人居空间大赛三等奖
- 洛阳市室内设计大赛铜奖
- WYDF 大中华区 100 大杰出设计青年
- 德国高仪中国住宅设计精英榜优秀奖
- WYDF 青年设计师论坛大中华区四十二青年设计名士
- 日本东京 IDPA 国际先锋设计--top100 国际影响力创新设计师
- 年青岛国际设计周“宏图奖”
- 中国住宅设计效果图大赛优秀奖
公司地址:洛阳市洛龙区金城寨街与关林路交叉口向北 100 米路东(走慢车道)
客服
消息
收藏
下载
最近
















