查看完整案例


收藏

下载
精装交付的房子现在越来越受到很多朋友的青睐,因为买这样的房子比较省事,而且也免去基础上的装修烦恼,同时也可以降低我们的装修成本,
但房子拿到手也会有人觉得开发商的审美与自己完全不搭边,装修根本不是自己想要的风格,这时大家就会选择二次装修。
今天就通过阳光城文澜府的户型解析来介绍一下精装修房子怎么装修?
一、家居饰品的摆放
家居饰品的摆放,也要注意技巧。将一些家居饰品组合在一起,使它成为视觉的一部分,对称平衡感很重要。旁边有大型家具时,排列的顺序应该由高到低陈列,以避免视觉上出现不协调感。
二、色彩搭配
色彩搭配万物都有自己的色彩,软装饰品也不例外,而不同色彩可以营造不同氛围,给人不同的感觉,色彩搭配是精装房软装修的重头戏。软装色彩的搭配法则无外乎三种:对比风格,采用强烈的对比色,冷暖对比色的大胆使用是家装的一种主流。
三、调换风格
每个人的喜好及审美观念往往各不相同,所以精装房软装修风格要以符合个人的喜好为标准,毕竟,面对众多风格,合适自己家庭居住才是的。自然风格,多采用木以及绿等为主色调,配以自然色的淡蓝。
接着我们看看阳光城文澜府各户型解析。
阳光城文澜府位于福宁路与四望路,精装楼盘,平层共3个户型,82户型,99户型以及119户型。
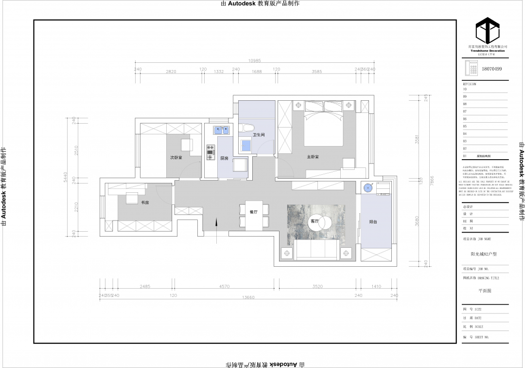
82平原始结构图
82㎡户型为三室两厅一厨一卫,整体得房率约82%。户型整体比较方正,作为小户型得房率高和赠送面积大,符合刚需买房人的买房需求。南北通透,朝南阳台和主卧飘窗,采光、视野都比较好。
82平平面设计图
整体户型比较方正,需要大改的地方基本没有。按照日常需求增加收纳空间布置软装即可。
下面我们再看一下82平底跃的设计图。
一楼
底跃户型与平层户型结构大体一致,只入户左手边的次卧变成楼梯间上下楼。
负一楼
来到负一楼,一楼整个的客餐厅和阳台位置整体划分为一间大的卧室,满足衣帽间、视听和休闲的功能。
北卧室位置作为储物间,保证家庭的整洁度。
一个超大的阳光天井保证了室内的采光,就算是负一层也不会觉得阴暗。
负二楼
负二楼更多的作为休闲娱乐区域来使用。在天井里面摆放户外的桌椅,坐在里面品茶聊天,好不惬意。
划分出一个影音室,在家就可以享受到影院级别的观影体验。
99平原始结构图
99㎡户型为三室两厅一厨两卫,得房率约84%。这个户型三开间朝南,朝南阳台和主、客卧朝南飘窗都具备,户型方正,南北通透,卫生间的门也做了一个有点像隐形处理的形式,整体户型设计上没有什么漏洞,作为刚需户型是很值得推荐的。
99平平面设计图
精装房的好处之一就是结构无需太多调整,如果大的硬装基调还行,不用大工程拆改,通过软装搭配和全屋定制设计一样能实现你心目中的理想家。
119平原始结构图
119㎡户型为四室两厅一厨两卫,得房率约85%,该户型三开间并排朝南,带独立衣帽间、卫浴,南向全明的卧室,飘窗设计,视野更开阔;客厅与景观阳台相连,空间通透;厨房则采用U型设计,功能分区更明确。
119平平面设计图
入户玄关处打到顶鞋柜美观又实用。
餐桌位置移动至沙发旁靠墙做餐边柜,向走廊延伸,完美的解决入户门对卫生间门的弊端。
各区域都增加储物柜,增加家庭收纳空间。
END
关注我们
第一时间查看其它户型效果图
134 0585 9085
秦淮区中华路333号二楼
客服
消息
收藏
下载
最近













