查看完整案例


收藏

下载
专注室内设计装饰领域 17 年,连续获得各大网络用户评出的“装修「口碑王」”称号,大众点评 5 星商户★★★★★。项目信息:项目名称:黑白灰风格设计。项目坐标:广州市天一庄。项目面积:90m²。项目类型:半包。团队信息:本案例出品机构:格梵装饰。门窗合作品牌:亿合门窗。合作品牌全屋定制:意品家居。
主创设计师:肖运文
主创设计师:周永津
前言:本案居住者是一对新婚夫妻,前卫时髦生活小资。夫妻俩原本住在老房子,陈旧的装修和拥挤的空间,束缚了二人对自由生活的美好向往。且他们近几年不打算要小孩,这次装修是希望打造一个属于自己的二人世界,因此不需要考虑太多人居住的需求,为设计师预留了很大的可改造空间。
业主诉求:
1.现代黑白灰风格,以简约为主;
2.开放式厨房。
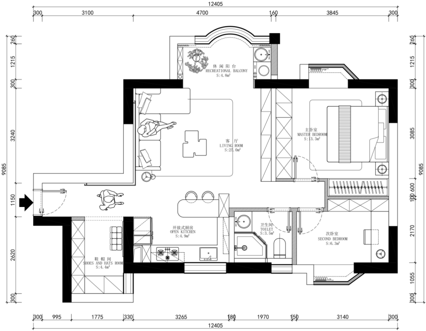
户型图:Apartment layout diagram
·原始结构图·
Before-改造前
① 厨房面积小且拥挤,采光不佳,收纳空间不足
② 客餐厅空间较大,利用不合理
③ 主卧面积不够大,收纳空间不足
·平面方案图·
After-改造后
① 将原始入户处的厨房空间改为一个独立换鞋换衣的玄关库空间;
② 原始餐厅空间改为开放式厨餐厅,节省空间动线,满足设计储物柜、休闲吧+客厅的设计增加家居互动性;
③ 保留原始公卫布局,提升舒适度的同时实现真正意义上的干湿分离;
④ 把生活阳台封窗,家里的视野瞬间变得开阔。
玄关
Porch
◆玄关入户区将原有的厨房区域,根据业主的需求改造成鞋帽间。
Shoes and hats room
◆鞋帽间将白色作为柜面的主色调,整个柜体做的是免拉手设计,极简又高级。而通顶的高柜设计使其具有强大的储物量,解决了业主有很多旅行箱需要放置的需求。此外,中间开放格区域可放置女业主的包包等其他物品。
◆选择有线条感,温柔的波浪形全身镜,方便出门前整理衣物;棋盘格换鞋凳自带吸睛体质,且与房子的风格搭配。
客厅
Living room
◆沙发背景墙利用原始转角墙做了弧形石膏板墙面,内嵌灯带,底部用艺术涂料做撞色,让背景氛围和层次感拉满。
◆规则弧形地毯与沙发背景墙的弧形设计搭配,使空间灵动又慵懒惬意。
◆茶几为组合形式,一高一低,高凸显空间层次感,简约且时尚,大小的圆形相互衬托。
◆电视背景墙直接刷了乳胶漆,因业主不需要电视,要弄投影,白墙面投影也是刚刚好的,悬空电视柜能拥有更多的收纳空间,也不会让整个背景墙太单调。
厨房
Kitchen
◆在原户型上,将餐厅区域改为厨房区域,因为家里只有男女主人,所以选择吧台和橱柜连接起来成 u 型厨房,使空间动线更加显著,既能满足做饭,也可以直接用餐。
◆橱柜设计无拉手,使整体空间更加简洁大气。
◆吧台左侧上方与橱柜一起定制了开放格酒柜,放置红酒与花茶之类,吧台下方设计了储物柜,可以放置小零食之类。
◆将冰箱做嵌入式处理,能够与柜体合为一体,与整体风格相匹配,保证了厨房空间舒适整洁。
(ps: ①冰箱需注意防潮,与厨房中的灶台、水槽保持一定距离;②在冰箱安装时,需根据尺寸提前规划好插座、阀门等位置。)
◆在墙壁上设计置物架,使墙面位置丰富起来,置物架刚好用来放置常用的调料等也是非常直观方便。
餐厅
Restaurant
◆取消传统的餐厅区域,餐厨一体化,设计吧台,放置两张桌椅。
◆吧台占地面积小,既能兼顾餐厅,同时又能让空间敞亮开放,能满足生活所需,是非常不错布局改动。
卧室
Bedroom
◆主卧背景墙做半墙木饰面,再搭配艺术涂料,以其独特的渲染方式,将墙面装饰出别具一格的效果,衔接处做内嵌灯带,突出层次感,简洁温暖而又不失质感。
◆ 飘窗因承重墙无法砸掉,设计师将其设计成休闲区域,其飘窗纱帘透光不投影,保护隐私的同时房间采光不会受到影响。
◆ 木质地板注入了自然气息,更能让人舒适和放松。
◆定制高级的奶白色柜让立面线条干净利落,一柜到顶的设计充分利用了空间。床头侧边一体式床头极简柜,方便这边柜门的打开,耐看又实用。而床尾设计满墙定制柜,收纳无敌,冬天的衣物放进去毫无压力。
◆床头的氛围感是这盏飞碟灯给的!
◆结合衣柜收纳、梳妆台一体化的设计让空间功能更加完善,风格也更加统一。
书房
Study
◆把次卧改造成书房;在全屋靠墙定制柜体,打造一整面黑色的开放柜+悬浮书桌,充分利用每一寸空间。
阳台
Balcony
◆将阳台推拉门打通,空间显得更通透,使用面积也会增大,动线设计合理;将阳台封窗能远离噪音与灰尘。
卫生间
Toilet
◆卫生间整体颜色以黑白灰为主,砖石型淋浴间做干湿分离,浴室柜定制与地砖同色系,颜色统一比较清爽,不会感觉乱糟糟。
- END -
客服
消息
收藏
下载
最近


































