查看完整案例


收藏

下载
本案业主夫妻两人都是在医院工作,并且和老人一起生活,还有两个可爱的女儿,所以对住房环保细节要求很高,要求房子要幽静宽敞一些,同时还要考虑到老人的生活习惯,和孩子的独立空间。因为之前有过装修经验,所以业主夫妻对于本次装修有自己独到的见解,并且对于本次的设计和施工也十分谨慎。在和设计师多次沟通后,最终风格定为
现代轻奢风
。
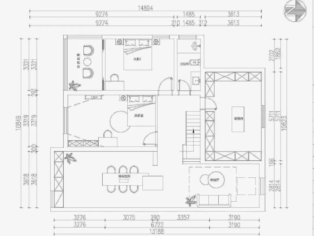
面积户型:258㎡二层复式
项目风格:
现代轻奢
项目出品:上海敬舍国际设计
客厅
现代简约设计的原则也是根据自己的需求来设计的,装修风格以简约为主,给生活带来一丝清新,是忙碌工作中的一片净土。现代的家具摆放,简洁明亮的家居设计,很温暖,合理的布光,合理的做工,合理的布局,非常完美。
客厅是一家人活动、娱乐、休闲、聚会、用餐等活动场所,也是接待客人、与人交流的社交活动空间。所以在装修的过程中,客厅不需要太过繁琐的装饰,简单大气,既突出了装修风格,又避免了喧宾夺主。茶几上方的吊灯,很有设计感,不管是白天还是黑夜,都充满了文化的气息,给人一种华丽、高贵、温暖的感觉,简约现代风格的家具,给人一种极强的视觉冲击感
。
餐厅
客厅与餐厅之间的装饰隔断墙有大面积透光玻璃,将两个空间的装修风格融为一体,让餐厅的装修风格变得更加明亮。餐厅与厨房之间的联动推拉门设计,拉近了厨房与餐厅之间的距离,让一家人可以一边聊天一边做菜,一边在客厅玩耍,其乐融融
。
卧室
卧室简约,通过一些元素的点缀,营造出一种淡淡的情调,让卧室变得更加别致,更有家味道。卧室是白色的,可以让人精神得到放松,睡眠质量也会得到提升。落地窗的设计让卧室变得更加地宽敞明亮,不对称吊灯增加了空间层次感。
儿童房
每个小女孩都会幻想自己是自己世界里的小公主,所以在房间的颜色上加入了一些粉红色的元素,墙壁上的装饰和床品让房间更加温馨,特别的个性玩具更是增添了几分调皮的色彩,让整个房间看起来更加的灵动,也让视觉更加地多元化。
卫生间
卫生间预留的空间很大,干湿分离,轻薄的材料让空间更加轻盈,空间和通透性都得到了极大的提升,以米白色为主,方砖和长方形的瓷砖搭配在一起,充满了现代感,与整个空间的风格融为一体。
书房
书房空间以木色元素为陈设,无论是展示柜还是抽屉,都能最大限度的利用空间,营造出沉稳宁静的氛围,同时也给屋主一个舒适的阅读空间。挂画和植物装饰点缀着空间,让整个空间充满了活力。另一半书房,以空白墙壁为电影幕布增加了空间的功能性,家庭影院让生活休闲空间更大,满足家庭成员的多元化生活需求。
推荐阅读
敬舍新作|澜若办公空间首发-历史的厚重与当代的雅奢
敬舍实景x观澜华府样板间 | 浮云吹作雪,世味煮成茶
敬舍新作 | 石湾山庄580㎡私宅 充满生活感的美式之家
敬舍新作丨城中觅静 500㎡ 绿城玫瑰园
客服
消息
收藏
下载
最近


















