查看完整案例


收藏

下载
然而我正对一本历史书。
西望夕阳里的咸阳古道,
我等到了一匹快马的蹄声。
-----卞之琳
平面图
▼
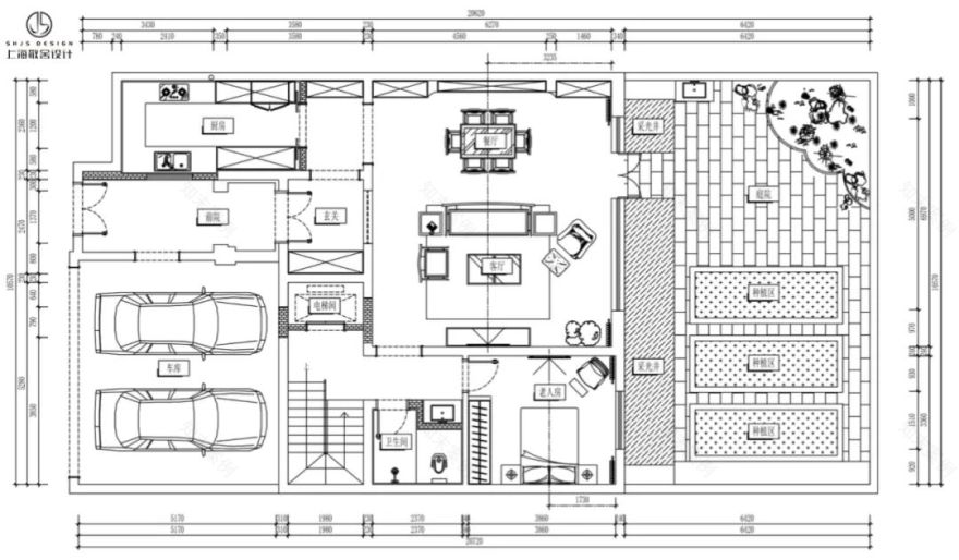
一层平面布置图
▼
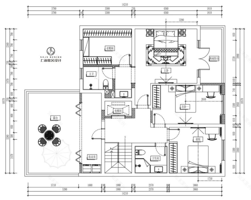
二层平面布置图
▼
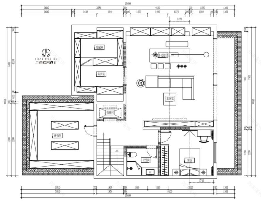
负一层平面布置图
效果图
对于新中式,人们喜欢它的清雅禅意,喜欢它的庄重,喜欢那古色古香,带给人的无穷回味……
笑看风轻云淡,闲听花静鸟喧,走过木质窗格迎接我们的是一个高品质的家居世界。
新中式的客厅就是如此的恢弘大气,随处可见的木色奠定了风雅清婉的基调,让家中多了一份古典气息。水墨沙发背景墙与地毯相映,一同呈现出一个低调、沉稳的待客空间。
玄关及厨房清一色的实木家具
体现了居住者对生活品质的要求
,精致的镂空雕窗打破空间的单调性,增加了设计的通透感。
慢享惬意时光,细品生活意趣。开放式的餐厅空间并不是复古元素的简单堆砌,而是将家具融合进了中式意境里,水墨花鸟之间韵味十足。
简约线条的新中式家具与定制意向墙画,皆为理性雅致的空间增添了几分艺术的从容。
古韵的床头背景、淡雅的墙面,打破了原有的厚重感,让家回归舒适,整体传递出云淡风轻之气韵。
新中式的卫浴精致考究,功能与美感兼具,既有古韵,又有温馨时尚之感。
项目名称|留香院
设计单位|上海敬舍国际设计
主笔设计|韩婷婷
效果表现|李心爱
细化设计|葛亚男
/
或拨打155 6391 6563
了解更多家装咨询
心怀敬意对待每一寸空间
店
铺
地
址
旗舰店
Add:李沧区九水东路37-30号
莱阳店
Add:莱阳市金山大街66号
居然店
Add:市北区黑龙江南路77号居然之家A馆负一楼
德国帝森生活馆
Add:李沧区九水东路37-28号
客服
消息
收藏
下载
最近





















