查看完整案例


收藏

下载
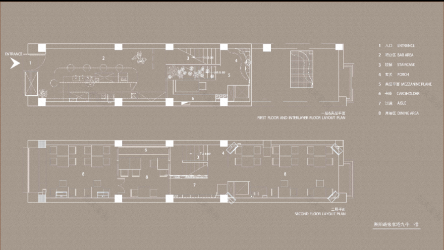
店铺居于一排沿街商铺的中间位置,原始建筑以东西窄,而南北长的方式呈现。
东西
3
米开间,南北
20
米长。独特的结构形成了细长比例的建筑外立面。
我们采用化零为整的方式将原来分散式的建筑外观,通过统一形式的框架装置,串联起一二层高度,并且将外立面拉升到原有建筑顶部露台。
形成了视觉上的扩张及统一,极大的改善了原有的店铺外观。凹凸阵列的结构造型也为内部空间制造了一些有趣的光影。
设计公司:尤格设计
项目业主:九牛一排西餐连锁餐饮
项目地址:江苏
.
张家港
设计总监:祝年微
软装设计:石晓曼
设计团队:顾慧敏,康文俊,王子月
项目面积:
130m
2
设计时间:
2021
完工时间:
2022
客服
消息
收藏
下载
最近















