查看完整案例


收藏

下载
在上海的法华镇路,MHPD创造了一间名为NEXTDOOR的美发店。身处生活气息浓郁的日常街区,NEXTDOOR因其强烈的设计风格分外抢眼。
和MHPD以往的作品一样,NEXTDOOR也是一次动态的实验。它会一直与社区、当地居民保持连接, 正如它得名的原因:“MHPD希望它是位亲切的好邻居,不闹腾,安安静静的。
从空间功能上看,NEXTDOOR既是理发店,也将会是POP-UP书店、咖啡店和小型展览互动空间。事实上,这也是“实验”的延展。
“我们在思考,当日常生活中的需求被满足,我们要如何通过设计介入,如何提供既外在又内在的美。
与MHPD以往的作品一脉相承,NEXTDOOR中也出现了大量基础材料,例如花岗岩、不锈钢、木,并且有很多部分保留了材料的原始质感。在改造店面的过程中,MHPD对原建筑墙面做了大面积保留。在他们看来,这种来自建筑基因的、天生的缺陷感是人为无法达到的,他们喜欢并且尊重这样的质感。
一些新的表达也在发生。由NEXTDOOR的外部看,街道似乎与店铺门口平行。但事实上,房子本身与街道路面构成的是一个不等边梯形,这个有趣的视错点是天然产生的。
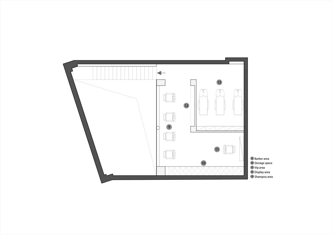
NEXTDOOR的店面有两个出入口, 除了希望客人可以在空间中自由穿梭, 双入口设计也是一种对开放态度和欢迎感的凸显。
而理发椅的颜色和置物柜的颜色也在中和材质线条带来的距离感,创造一种亲切的气质。
店铺使用了明亮的白色灯光,这是 MHPD亲身体验后的做出的决定。
在二层的半开放区域,通过特意留出陈列位,客人可以在洗发时明确看到并且选择洗发水。
理发镜前的不锈钢小台面可以移动,方便客人们互相靠近或远离。MHPD希望,能在疫情的当下给人们轻松、流动、透明的感受。
在NEXTDOOR的空间中随处可见艺术品,最显眼的是入口处的女孩雕塑。
在前台的玻璃展示柜中,陈列了店铺的设计衍生品。MHPD认为,玻璃柜中的产品代表了他们喜欢的生活。
△一层平面图
△二层平面图
项目名称|NEXTDOOR
项目地址|中国 上海
完成时间|2022
设计机构|MHPD
设计总监|Paul许玮轩
设计团队|陈晓乐
硬装团队|上海超田装饰工程有限公司
主要材料|不锈钢、镜子、花岗岩地砖、平板灯
项目摄影|榫卯建筑摄影
媒体制作|闫夏 丹迪 @AGENT PAY层平面图
·END·
合作投稿
Cooperative Contribution
可上下滑动查看更多
优秀案例 | 知识分享
亚太公装
Asia Pacific public dress
客服
消息
收藏
下载
最近


















































