查看完整案例


收藏

下载
玉环,位于浙江东南沿海,景上闲适继杭州两家店之后的第三家门店开业于此。
01
SPATIAL SCALE
空间尺度
以古人藏经阁为灵感
02
SPATIAL SEQUENCE
空间序列
-
身心静定于四时风雅的空间
品茶间体悟生活的洽淡自然
室内设计的元素及材料
-
03
MATERIAL
材质表达
-
拙
主要通过自然石材的原始肌理
表达一种自然而然的野趣
陈列的器物作为镌刻时光的长物
以无声之美滋养着空间
滋养着来人的内心
器物 字画 品香 现代的语境里
04
ANALYSIS DIAGRAM
分析图
-
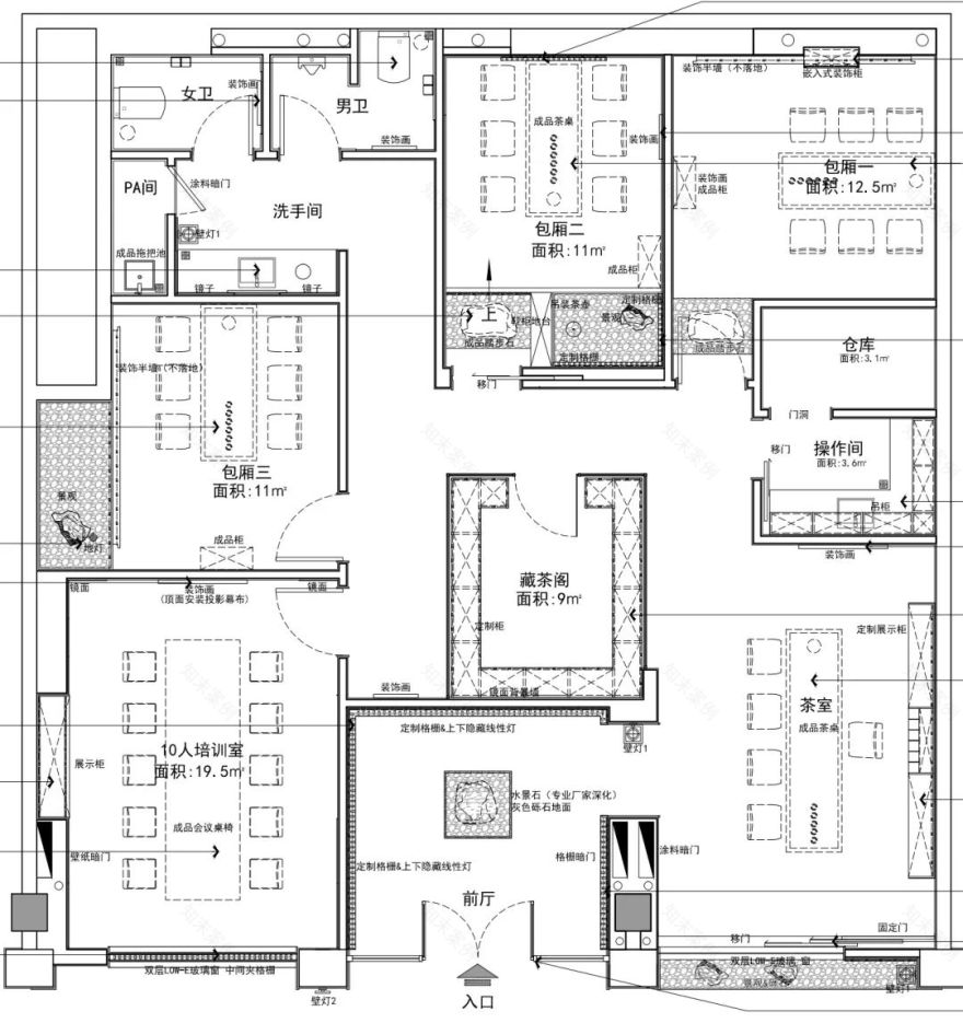
平面图
INFO
- 项目名称 -
景上闲适(玉环店)
- 设计公司 -
景上闲适(玉环店)软装设计
杭州南北边界空间设计有限公司
- 设计面积 -
180㎡
- 项目地址 -
浙江 玉环
- 主要材料-
胡桃木 黑色不锈钢
艺术涂料 壁纸
·END·
合作投稿
Cooperative Contribution
可上下滑动查看更多
优秀案例 | 知识分享
亚太公装
Asia Pacific public dress
客服
消息
收藏
下载
最近

































