查看完整案例


收藏

下载
△糖厂旧貌
在不断向前的工业化进程和农业产业结构调整中,糖厂逐渐成为乾糖湖畔伫立的回忆。承载着乾务文旅产业发展和城市更新的重任,糖留下的吉光片羽,渗透商业与文化的边界,重新塑造着这个城市的肌理与精神。
塔
Tower
△序厅
在糖的梦境里,每个主角都是孩子。以仰望之姿,找寻掌管味觉的神明。序厅,仿佛一座来自未来的神庙,又诚挚地朝向历史,与糖厂旧址的除尘塔形成某种对照,重塑现代人和历史建筑之间的关系。
林
Grove
△1F 中庭
以旧址为核心文脉,糖厂博物馆不只是商业与文化展示的容器,更是地域情感和记忆的载体。
在制糖峰时,珠海甘蔗林种植面积达 30 余万亩。面对着过往记忆,需要一些非理性的特质去保留空间的情感价值。
甘蔗林独特的比例和序列关系被转化为空间中的柱列,整个大厅的视觉感是开放的,人们行走其间,向上生长的力量和柱列的空间节奏感共同散发着生命力。
△休闲等候区
梯
Staircase
△艺术楼梯
将垂直交通作为漫游的路径, 大厅中的楼梯犹如一个具有象征意义的结构,向老糖厂的楼梯致敬。人的活动在这里构成一种戏剧性,诸多观看和被看的视角被呈现出来,增加了整个空间的趣味。
Filter
△2F
仿佛与繁盛的工业时代在空间叙事中迭合交织,过去的事物得以再次与未来产生关联。二三层连廊以桥的形式跨过主厅,串联起不同的功能空间。
△天窗
△2F 展厅
糖厂博物馆的落成是一种新生,也是一种传承。在许多城市的角落,工业化时代的废弃建筑亟待被重新利用,升级为新的价值空间。
△建筑外观
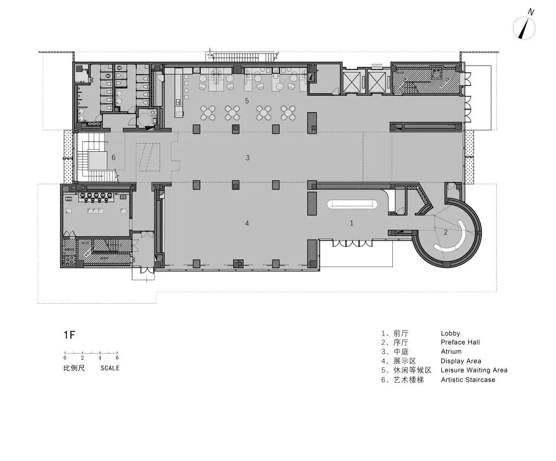
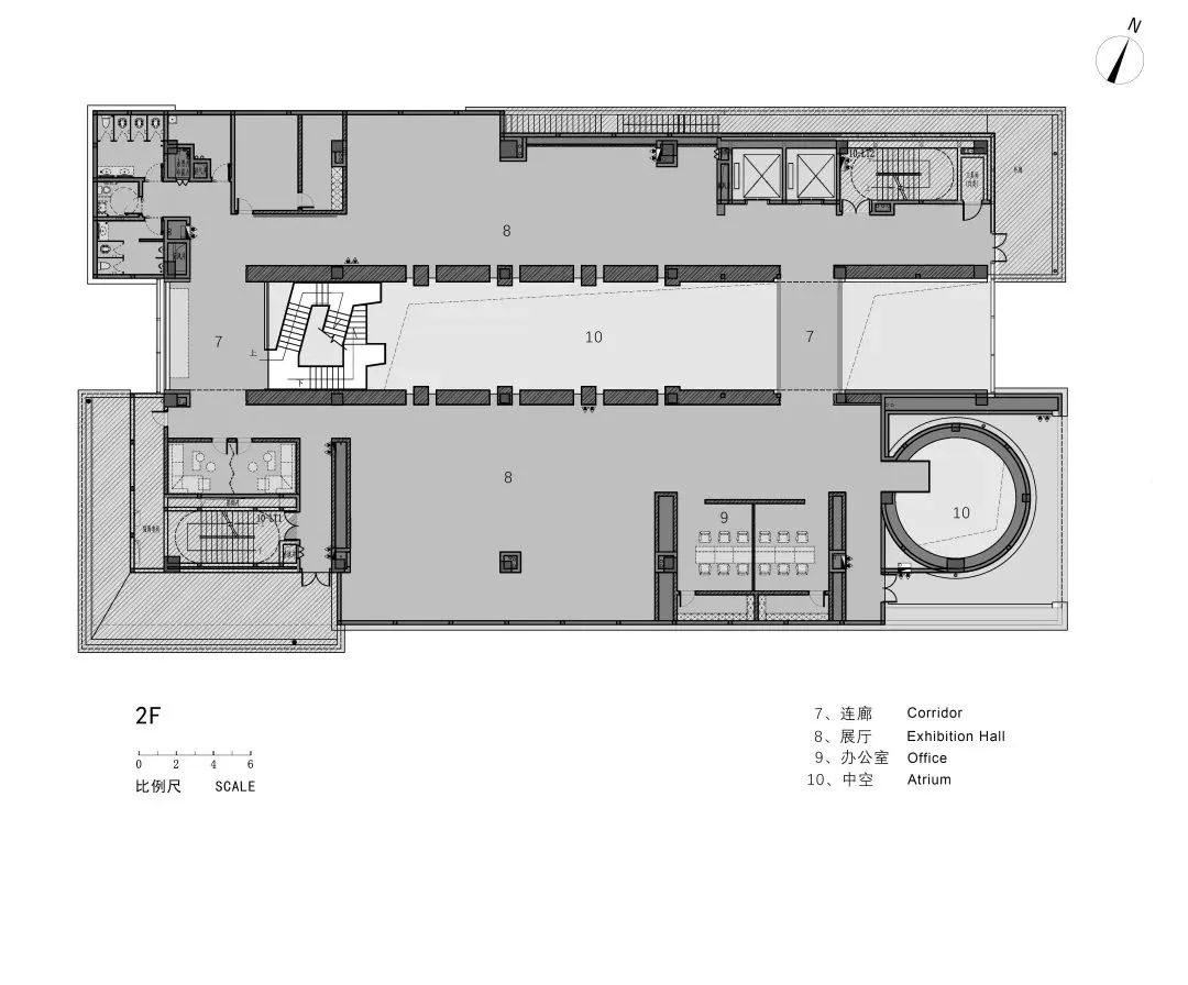
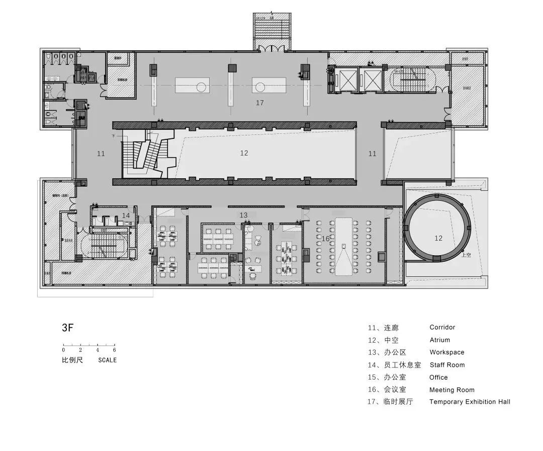
▽平面图
项目信息
项目名称 |珠海星河糖厂文化博物馆
室内设计 |广州共生形态工程设计有限公司
设计总监 |彭征
主案设计 |张博
项目业主 |星河地产
业主代表 |邓立 吴江涛 陈丽莹
项目地点 |广东 珠海
设计时间 |2021 年 05 月-11 月
竣工时间 |2022 年 04 月
设计面积 |2682.30 ㎡
建筑设计 |上海日清建筑设计有限公司
·END·
合作投稿 Cooperative Contribution
可上下滑动查看更多
优秀案例 | 知识分享
亚太公装
Asia Pacific public dress
客服
消息
收藏
下载
最近
























































