查看完整案例


收藏

下载
项目坐落于南苏拉威西著名的海滨旅游胜地Selayar岛,设计旨在为顾客提供国际化的休闲娱乐体验,利用社交媒体资源吸引热爱咖啡馆文化的潜在消费者。
▼项目概览
凭借着热带气候的优势,建筑师将咖啡馆立面向外部环境打开,将弯曲的线条与诱人的大地色调相结合。
▼向外部开放到极致的立面
▼弯曲的线条与诱人的大地色调
开放式的室内空间降低了建设成本,提高了后期维护的效率,同时也使得空间功能与家具布置更加灵活。
▼开放式的室内空间
▼底层空间
▼模糊的室内外界限
▼天井与吧台
建筑的背侧立面上设有一处极具视觉吸引力的曲线形开口,这个开口形成建筑后部树木的景观框架,营造出树木是建筑的一部分的印象,丰富了顾客们的视觉体验。
▼曲线形开口成为景观画框
▼绿色景观成为建筑的一部分
▼建筑的背侧立面上设有一处极具视觉吸引力的曲线形开口
▼二层休息区与整面的置物架背景墙
本项目完全使用了当地材料,并由当地工匠建造完成。
▼楼梯
▼材料细部
▼剖面图
▼南立面
▼总平面图
▼西立面
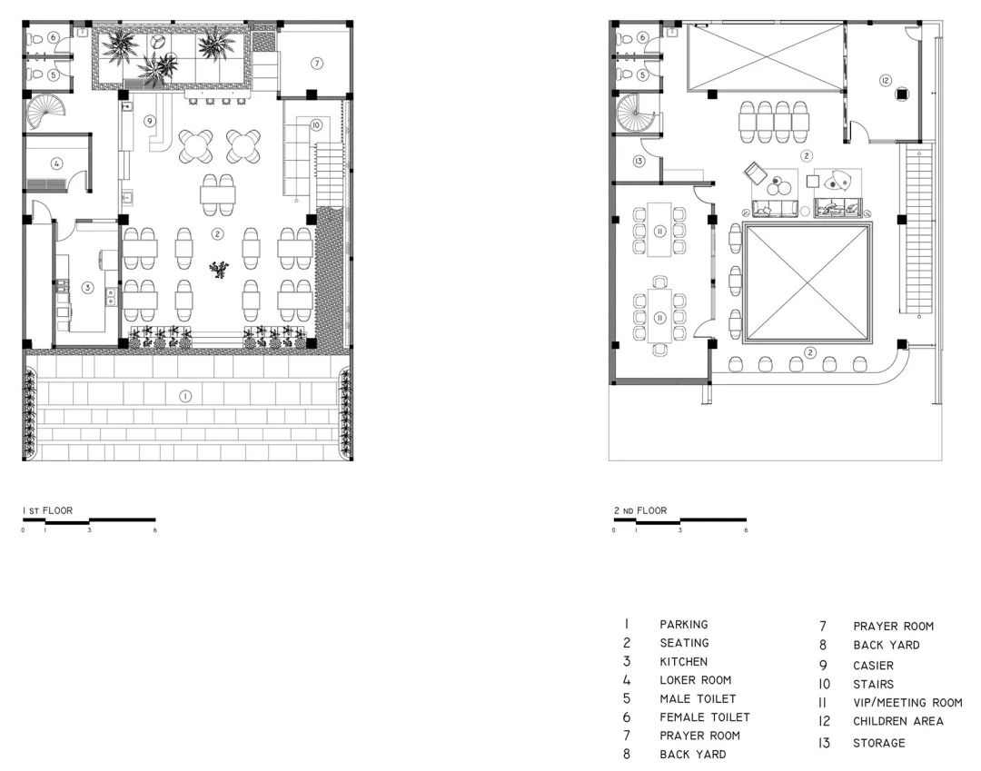
▼平面
项目名称:迪埃拉
公司名称:MIV建筑师事务所
完成年份:2020年
地点:印度尼西亚南苏拉威西省塞拉亚
首席建筑师:穆罕默德·伊克桑·哈米鲁
设计开发:Achmad Safar
室内设计:Andi Nindyah Ekananda
联合室内设计:詹妮弗·维桑
立面覆层:陶土砖
地板:地板硬化剂
门:铁和木
窗户:铁和木
屋面:CTI,沥青单重屋面
室内照明:飞利浦,ELCO
·END·
亚太公装
优秀案例、行业知识分享
客服
消息
收藏
下载
最近


























