查看完整案例


收藏

下载
Road.8 LIFE
VOVO EVEN COCO LONO
圣来酒店
设计师把触角伸向了——自然这一取之不竭的灵感源泉。设计以自然艺术为题,借助当代的手法,在喧嚣、快节奏的都市里,试图搭建一个全新的、富有变化的诗意空间。
步入空间矩阵
进入酒店大门,空间氛围已开始悄然变化。一改外部世界的喧闹繁华,简洁留白到只剩立面和屋顶线条的方形框架,前台和接待区隐匿其中。如同进入全新的空间矩阵,洋溢着宁静有序、富有趣味的空间精神。
【自然】
// 随心潜入 //
行进在果实灯下,脚下是如水般流动丝滑的地面,身旁是树枝状茶几,落座于木棕色皮质沙发上,眼前有如同雾霭般朦胧的玻璃隔断,灯光柔和,影影绰绰,宁静且诗意。
// 餐厅区域 //
通过艺术化的再现,带来空间与自然的双向互动。在森林山海中,人们的能量得到汲取补给,内心踊跃活力的火苗复苏,期待再一次出发。
【入户门】
// 客房区域 //
客房区域,我们提取独特的自然色彩,针对不同房型,对空间秩序进行了整理,描绘出一幅多彩的城市森林画卷。
【客房】
不同层次与质感的灰、白、黑相互交融,在灯具和家具的局部,克制地点缀了金色、蓝色、紫色,现代奢意与自然灵动在空间中游走,沉淀出游刃有余的惬意与从容气质。
【客房】
不同空间切换,都有不同景致的再现。细节、功能、材料通过整合,浸润在美好的自然艺术中,形成诗意的设计语言,孕育出城市差旅生活的新未来。
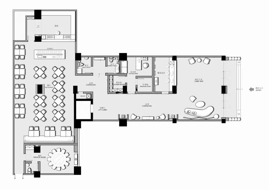
// 平面图 //
项目名称|ST TO HOTEL 深圳 · 圣来酒店
硬装设计|壹向营造
软装设计|千行国际
摄影公司|lephoto 乐在拍
项目类型|精品酒店
项目面积|5000㎡
主要材料|胡桃木、白色石材、不锈钢、纤维板
设计时间|2018.10
完工时间|2019.10
THE END·END·亚太公装优秀案例、行业知识分享
客服
消息
收藏
下载
最近


















