查看完整案例


收藏

下载
爱马仕橙
将人引入一处极具迷幻感的空间,色彩饱和、材质混搭,亮面及金属线条镶嵌其中,混合得极为完美,既有张力,又不失时尚,那一抹与众不同的风情,迷倒众人,耐人寻味。
风格:未来感 摩登
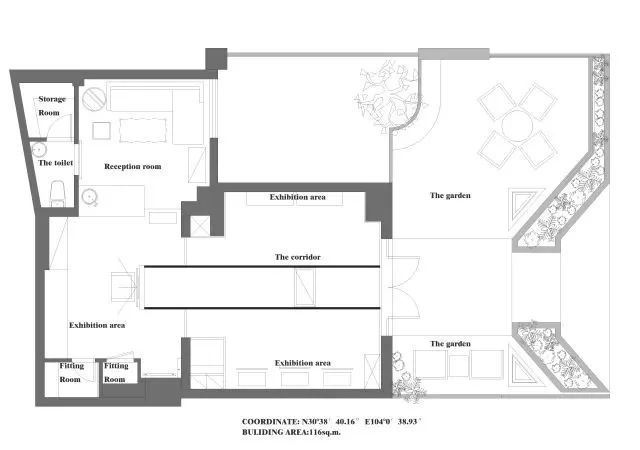
面积:116㎡
坐标:鹭岛国际
摄影:季光
设计师:Denny Ho
执行设计:李姝霖
品牌支持:Owen,多乐士乳胶漆
爱丽丝梦游仙境里,小女孩掉入兔子洞误闯奇幻世界,开启了一段妙趣横生的冒险。埃舍尔的画廊里,白色圆洞串起不同时空,让年轻人看见了看画的自己。兔子洞是个象征,意为另一个世界的入口。我们与JOY PLAN锦铺兰一起,邀请你玩一场时间与空间的游戏。
岳阳本土品牌JOY PLAN锦铺兰主营潮流女装,计划在新城区开设第三家分店,业主希望该店能成为当地引人瞩目的风景,为新商圈带去活力。我们用自上而下的白色肌理涂料、模糊边界的内退处理,使外立面规整统一,提高辨识度,让人们在很远处就能看到这个巨大的奶油方块;用敦实而整体的水磨石橱窗充当画框,无论室内或室外,橱窗前看风景的人亦会成为风景。
时空隧道的切片:
多个时空重合到一起会怎样?埃舍尔的画里有答案:上下颠倒、左右镜像、无限循环。我们把这些元素挪到了空间里。一大一小的连续拱廊将空间切割成片状,镜面元素以及递归的视觉形式让空间纵向延展,组成两条有导向性的时空隧道,吸引人们步入空间深处。而楼梯与收银台的几何化处理,则进一步将空间道具化,弱化场所真实感,丰富“游戏”体验。
被放大又被缩小:沿着台阶向上,视线转移的同时参照物的尺度也着发生变化,如果说一层是将空间切碎,放大人的尺度,那么二层就是将空间整合,放大物品的尺度。我们希望顾客登上二层时,像来到一个广场,觉得自己变小了。
拱廊元素在二层转变为弧形的片墙,藏住功能空间的同时增加展示面,强化商品存在感。而被放大的环形吊灯和花岗岩岛台,则影响着顾客对尺度的判断,从而将空间里的人“变小”。我们在奶油里挖出一个兔子洞,将空间缩小又放大,试图通过空间的游戏,创造有趣而印象深刻的购物场所,引导顾客发现更多可能性。
轴测图:
平面图:
项目空间信息:
空间名称:JOY PLAN锦铺兰潮流女装店
空间类型:商业空间、零售空间、专卖店、女装店
空间地址:湖南省岳阳市富兴康城一楼底商
设计公司:朴开十向
建筑面积:150平方米
空间主材:GRG、肌理涂料、水磨石、照明-SIKI
摄影版权:张筱锴
·END·
亚太公装
优秀案例、行业知识分享
客服
消息
收藏
下载
最近












































