查看完整案例


收藏

下载
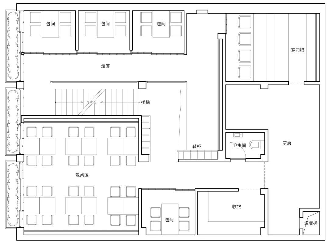
此项目是位于西湖岸边邻街的三层老建筑改造为日式料理店。料亭位于老建筑的二层三层,虽然地处邻街处,但独立的空间是其本身的优势。为了与周围环境区分开以及符合料亭本身的特色,我们专门为料亭设计了独立的入口。
料亭的玄关位于天花板较低的二楼,因此玄关入口墙面的处理很重要为吸引客人的视线。我们将日本传统的麻叶图案解构为菱形和等边三角形,重组得到我们的双层格栅墙。我们从不同的角度能够得到不同的视觉效果,但从正面看的话麻叶图案依然是视觉中心。在鞋柜面板上我们加工了日本传统雕刻技术「名栗」。
二层的一半区域由包间和寿司吧构成,我们采用了日本传统的太鼓张作为隔断,在保障私密性的同时又具有通透性。二层的另一半区域大厅,我们将木格栅墙元素运用在大厅的俩面墙上。为了确保日光的同时阻挡外面邻街杂乱的景色,我们将整个阳台种满了植物并用脚下开放的雪见障子作为隔断。
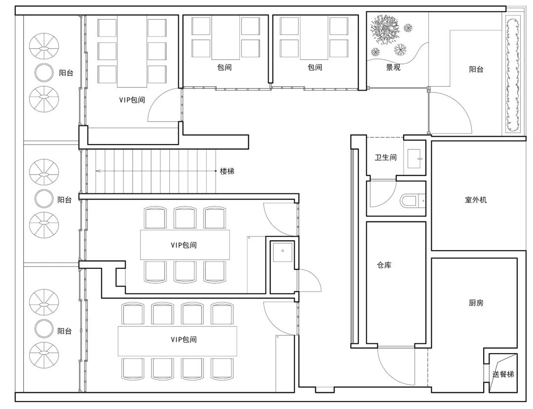
三层是料亭空间的VIP房间,整个空间非常安静、私密。为了利用三层天花比较高的特点,我们在每一个VIP房间的地板和天花之间都设计了贯通上下的装饰柜,并且安装了间接照明。这是参考了京都「修学院离宫霞棚」而得到的想法。
▽空间细节:
轴测图:
平、剖面图:
项目空间信息:
空间名称:“料亭松子”日料餐厅
空间类型:餐饮空间、日料餐厅、餐厅改造
空间地址:杭州市上城区湖滨学士路92号二层
人均消费:95元/人
设计公司:堤由匡建筑设计工作室
照明设计:Ljus Design (石冈真己子)
机电设计:北京东洲际技术咨询有限公司(石川星明、竹林克宣、山崎隆司)
施工单位:杭州丰元装饰设计工程有限公司
空间面积:260.2平方米
空间主材:双层木格栅、藤编、麻石板、太鼓张、肌理涂料
摄影版权:Sensor见闻影像
童话王国 情调的小店典雅复古而富有浪漫气息,成为都市里的标志性网红空间,诠释都市生活美学,引朋友圈的小公举纷纷沦陷。
试问谁又不想在这样富有情调的空间里偷得半点浮生闲情?
整个空间设计采用尼罗河蓝为主调色,高纯度高明度的色彩让空间梦幻感强烈,大块面使用镜子反射,营造空间开放通透观感,放大空间的吸引力。
带有童真感的蓝色完全激发少女心,让人仿佛身处某个迪士尼公主的城堡中。和蓝色搭配的原木、大地色系中和了跳跃感,让空间更为平和有质感。用金色加以点缀增加设计质感,不落俗套地展现空间的清新雅致。
双面采光的条件,让光线在设计中起到了重要作用。
花纹精细的装饰板被充沛的阳光加成,更添华美感,大面积的原木色及白色系,能最好地呈现光线。阳光房的优越位置给用餐带来了高级感,更增食客进餐的愉悦感。
另一面采光面则采用浪漫的穹顶,曲面的天花引食客沉浸于欧式风情,空间可以从开放到私密灵活变动,蓝色幕帘拉起即为食客营造专属空间。
空间充盈着精彩的细节,花纹精细的锈镜、复古风情浓郁的灯饰、清新淡雅的绘画墙纸……细腻的艺术感与惊心打造的空间浑然一体,每处细节都符合城市生活的审美情趣与追求,熨烫着都市人的情思,每个角度都能成为自拍的最佳场景。
在这样的空间里人们得以忘掉烦忧,享受生活,体验一次精神的瑜伽。
·END·
亚太公装
优秀案例、行业知识分享
客服
消息
收藏
下载
最近
































