查看完整案例


收藏

下载
地点:深圳市南山区侨城坊,侨城坊是深圳市政府批复的大沙河创新走廊新兴产业基地(一期)重点园区之一,
以对建筑、自然、人文三者和谐相融的深刻理解,将“生态、共享、复合、人性化”的办公理念引入中国。
点绿成金,创造效益,绿色空间营造成为设计的主导,设计要激发一次绿色的升级,创造一个城市生态立体社区。
而a+设计联合有限公司就坐落于这里……
▼建筑外观
▼办公室入口
在这个时代的材料与工艺结构语境中以单纯赤裸毫无修辞的面貌呈现其其实从未动摇的美感。
在抽象与实物之间存在的混沌地带找到那种实体刚要飞散却不致化为虚空的描述尺度方法和分寸。
“遵循空间的建构关系在保留原有结构的基础上,赋予它新的体块和功能,重新塑造秩序及和美观性。
“而能同时满足这一系列需求的,自然是艺术。
▼具有无限张力的留白
虚与实,白与黑,光线是一种生物,在一个为光线设计的建筑里,它充满可能性与自由。
无论是在材料上勾勒阴影,还是与装置发生交迭,光线将以丰富的形式在建筑内部留下痕迹。
▼入口等待区
《戴花环的非洲少年》 摄影师:飞飞
▼入口处即可看见内部的公共区域
▼开放办公区概览
在材质的规划上,利用细腻且带沉静的特殊水泥做基底,让办公空间带有沉静、优雅的气质,在单纯的空间中发挥出精炼的质地,使整体空间融合在一起。大面积的玻璃窗将外景引进,深圳的日与夜变成室内一幕,俯览这座城,将城市之景尽收眼底。
▼不同视角下的室内办公区域,开敞通透的办公空间带来舒适自由的氛围
材质对立:通过材质的关联,天花与地面的分割,打破空间的一致性,看似孤立的元素却无心成了最躁动的存在。
通过原始的粗犷与细腻的形态构成,整个空间看上去都是自由的表达。
▼天花保留了原建筑的钢筋结构
粗放与精细,柔软或硬朗,原始与文化气息,由节奏性冲撞形成差异化体验而非形式本身带来差异化体验。
▼连接公共空间的走廊,富有层次
《奔跑的象》 摄影师:张晓萌
摄影师张晓萌的摄影作品是这里的艺术点睛:他所谓的摄影,其实就是一门“看”的艺术,从图像上我们接触的是直观的光影、色彩,是点线面。是黑白灰,但真正能打动我们的,确实图像背后的故事、情感,是天地人,是风雅颂。透露隐喻的、非极端的理性思考,提出我们应当以某种平常人的心态,以及回归自然的文化命题, “看”到别人“看”不到的细节之魂。
▼独立办公室
白在某种意义上可以解释为空,纯白空间运用蓝铁色布艺沙发与艺术感很强的装饰柜强化了空间的关系和氛围,
同时让室内的植物葱郁而又安宁。连续的平面布局在通透的空间中,光在哪里停留,哪里就是最好的位置。
▼会议空间
《耕种》 摄影师:郑德雄
农耕是人与自然的融合,是城与乡的融合,是东方哲学中的天人合一,这就是我们说的“农耕文明”之本质。
影射现代人应当回归于自然,始于双手,得于双手。
▼室内局部
黑白调的纯粹办公场所开放与封闭相互交织,阵列与有序,
a+设计联合的logo采用铁灰色的金属制成的把手,装点纯粹干净的玻璃门。
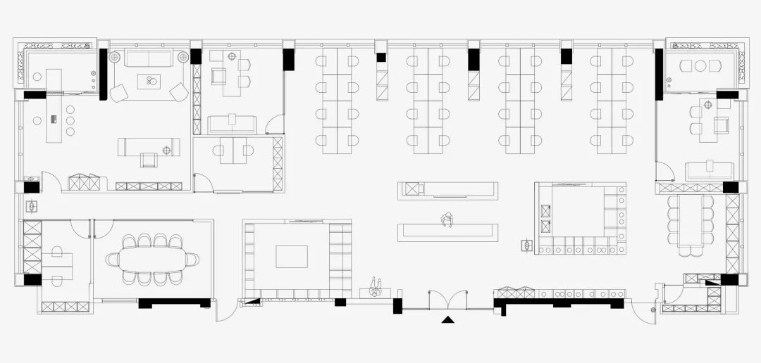
▼平面图
项目名称│ a+设计联合新办公室
项目地址│ 深圳南山
项目性质│ 办公
软装单位│ a+设计联合(香港)有限公司
全球创新产业地标办公样板,绿色与科技全新演绎未来办公
绿地创新产业中心
绿地创新产业中心是世界500强绿地集团打造的全球创新产业地标,位于上海宝山大场北中环商务商业集聚区核心,建设规模达6万平方米,规划有500—1000㎡总部商务独栋和4000㎡国际综合商业街区。是大场产业升级发展的先导项目,复合了科技创新、互联网、创客等多元化产业,打造上海乃至全国具有代表性的科创产业示范区,成为北中环新崛起的产业发展主引擎之一。总部商务独栋办公样板房由知名室内设计公司集艾担纲。
绿地创新产业中心打造以
“
互联网
+
科技创新
”
产业为主的国际水平园区。因此本案以科技公司作为目标客户,考虑到科技类企业富有极强的创新精神,且企业寻求多元化的办公模式以满足不同工作类型的要求,希望增加更多的沟通互动空间,尽可能避免上下级隔绝。
设计师于概念阶段就摒弃了传统办公思维方式,打破楼板对于楼层的约束,针对不同办公形式的需求,无论是从办公形态上还是从空间塑造上,都创造了一种全新的模式,打造了一个真正意义上的
“
绿色科技办公空间
”
。
空间延展建筑的设计理念,提取有机的设计语言使之延续于各空间,以自然的节奏张弛有度,以生长的姿态生生不息,使得设计理念、客户的需求、功能的可执行性等得以和谐融合,打造关怀当下、未来的新型办公设计。
公司前台接待前厅的背景墙挑高
7.3
米,自上而下的绿景极具视觉冲击力,传达着空间喷薄的动感与不竭的能量转换,也强烈释放着与科技企业如一的奔放、自信和明朗的性格特质,在有限空间内充分表达企业的性格和品质。
延续绿色的张力,前台的以木色隔栅阵列式地纵向排列、横向延展,与此形成对比的,是条纹内设置了照明,灯光营造出戏剧化和雕塑化的空间,空间内的光与影、虚与实,与建筑实现了绝妙的无缝融合。
当然,这片绿墙被集艾设计团队以完美的现代设计手法流畅传递到其他办公空间内,激活着空间内的每一角落。前台的动线亦很自然地引导来访者抵达接待、商谈和吧台区,而在需要举办
party
的时候,这里又摇身一变,与休息区一起,成为一个容纳近
50
人的
party
区。休息区以下沉式的方式进行处理,空间布局简洁而清晰,透过玻璃,可以看见那片
“
长出来的绿墙
”
,让休憩空间变得生动起来。
办公区域位于二楼,三楼,透过各个透明的玻璃空间和不透明的格栅空间,甚至是悬挑于空间中的透明的会议室,绿色、科技、智能、高效等新兴理念和主题全然展现在空间中
,
为办公空间的室内设计创造便捷、高效、轻快的新生态,使之不仅能让人们在活跃创新的环境中工作、思考、会客、讨论、研究和交流,同时,又成为人们工作之余休憩放松、养精蓄锐以待厚积薄发,有效获取信息、激发灵感的地方。
考虑到严肃的商谈与会议的可能,总裁办公室位于顶层,大面的落地窗引入了室外的绿色景观,同时设计延续整体风格,木色整体书柜、灰色的休闲沙发和啡桌,散发着现代主义气息,除了办公区,作为休闲区的露台,简约的户外家具安置在此,让这片妙曼的风景更添生动色彩。
集艾通过一系列的尝试,打造了一个共享多样的办公室环境,既能激发员工的创造思维、提高协作和沟通效率,又能营造积极向上的工作环境和企业文化,这正是对未来办公的最好诠释。
项目名称:绿地创新产业中心独栋办公样板房室内设计
项目地点:上海市上大路沪太路口
建筑面积:
2000
平米
完成时间:
2016
年
开发商:绿地集团
设计机构:集艾室内设计(上海)有限公司
设计师:黄全
袁俊龙
王娟
张利霞
摄影:黄善忠
·END·
亚太公装
优秀案例、行业知识分享
客服
消息
收藏
下载
最近































