查看完整案例

收藏

下载
点击上方蓝色字关注我们~优秀的设计师就是一名魔法师,他们不仅拥有无限创意,还擅长于将业主的独特想法及喜好落地为真实的设计成果。
案例背景
今天要讲的案例,特别之处在于设计师遇到的是一位审美别具一格的业主,他对自己家的要求是“告别平庸,与众不同”。通过深入沟通了解及精心设计,设计师打造出了在市面上很难找到、大众客户很少接触到的黑金系列风格,并将这套案例命名为“西装暴徒”。
因整体采用的是深色系,对空间营造的视觉效果要求更高,如设计不当,会给人造成压抑沉闷的感觉。显然,设计师也考虑到这一点,在与业主前期沟通的过程中,设计师就建议将所有能打通的墙体都打通,让整体视觉看起来更加开阔明朗。
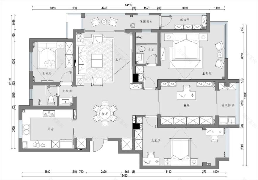
这套 160㎡的三居室,户型周正,进深与面宽比合理,采光通风条件优良。在空间布局上,动静分离,动线合理,三个卧室与书房分别居于房子两侧,更有休闲阳台、储物间满足日常放松、收纳需求,极大地提升了业主一家的居住品质。
部/分/实/景
客厅
客厅的电视背景墙与地板均采用具有肌理感的大理石,沙发背景墙采用实木格栅板,赋予空间层次感,天花板使用凹凸式吊顶,配合筒灯等无主灯设计,平衡整个空间的亮度。在材料上,选用液化雾化器代替传统酒精壁炉,更加安全经济实惠,在冬天更能增加空气中的湿度。
在软装上,浅灰棉麻质地的沙发及橙棕色单人椅,丰富了空间的色彩。整体空间时尚大方、和暖温馨。
餐厅与厨房使用玻璃推拉门作为隔断,让两个空间在动线上有了一定联系。石纹餐桌与玻璃面柜体,充分体现了餐厅的格调与业主的品位。
餐厅
书房的设计充分考虑到了书籍收纳的问题,所以在橙色墙面两侧都安装了书柜,面对书桌的也是一整面收纳墙柜。玻璃推拉门若隐若现的效果,使得办公的业主既不会受干扰,也能及时接收到书房外家人的呼应。书房
卧室
卧室与客厅不同的地方在于,采用了木质地板与背景墙,配合意境十足的山水装饰画,整体氛围更加轻松温暖。
儿童房
儿童房的设计更加趋向于浅色系,意在营造放松自在的氛围。充满童趣的文化砖墙面,小小的书桌,到顶的衣柜,随时可以根据孩子成长阶段改变风格的软装,提升了这个空间的利用率。
验/收/阶/段
“很激动,本来黑金系要设计的好看不容易,他(设计师)不仅达到了我的预期,还十分体贴跟周到地用了一些智能化的设备,更加方便了我们的生活”——业主在最后验收时对前来参观的邻居说出了这番话。这番对设计师的肯定也充分说明了,优秀的设计师,从来不拘泥于任何一种风格。
项目名称丨西装暴徒
项目地点|扬州市
项目面积|160 平方米
项目风格丨现代简约风格
设计师|王飞
施工公司|华浔品味装饰集团扬州公司
2021 感动饰界
华浔品味装饰作为饰界的标杆企业,坚持服务于行,感动在心,努力为万千客户装修幸福家,让客户不只满意更感动!
精彩推荐
- End -
本期编辑 |H.Y
了解:华浔是一家什么样的公司?
客服
消息
收藏
下载
最近























