查看完整案例

收藏

下载
点击上方蓝色字关注华浔品味装饰~
案例赏析
DESIGN
装修案例看了千千万,钟爱的风格却始终没能定下来。如果你不确定自己更爱哪种风格,不妨试试极简风。社会的发展和客观规律都告诉我们,大道至简。在装修中,也是如此,越简单,越高级。接下来分享的一套案例,120㎡的三居室,女屋主希望这个家是能够让人感到舒适和宁静的。
基础信息
户型:三居两厅
套内面积:120平方米
造价范围:52万
主要材料:诺贝尔瓷砖,书香门第地板,西顿照明,芬琳进口漆
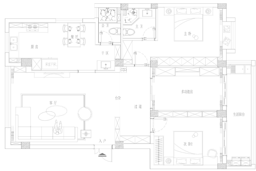
01 户型图
户型方正,各个区域的动线设计也比较合理,有生活阳台,U型半开放式厨房,两个卫生间,其中公卫的设计很合理,将干区独立出来。业主是个追求时尚气息的三口之家,有个儿子,已经上初中了。
所以规划的三居室中,有一间多功能房留作了备用间。
空间规划上并未做大的改动,主要做了以下的细节调整:1.颜色选用上以黑白灰为主色调,搭配蓝色作为撞色;
2.客厅和卧室增加台阶,以增强卧室生活区的私密感;
3.材料选用上以业主喜欢的大理石作为背景的点缀。
02 客厅
客厅的软装搭配上以主色调黑白灰为主,搭配了一个暗蓝色的矮椅子,提高空间的色彩感。在客厅和过道中间规划了一个台阶,巧妙地将功能区划分开来。
电视背景墙是极简原则,采用了白色。而沙发背景墙是采用了相对软一些的材质,灰棕色的背景和白色的展示柜,不仅可以增加对比,丰富空间效果,也能辅助收纳,一举两得。
03 餐厅
餐厅在客厅的对面,是半开放式餐厅,橱柜的设计上采用白色,但在中间用了黑色线性,使整体得更有设计感。
在餐厅的软装上,选用几何形状的纯黑灯饰,和白色大理石桌面形成鲜明对比,一黑一白交相呼应,再辅以灰黑的餐椅,简而不凡奢而不华。
再点缀一株花或者一点绿植,让人不禁想要留恋在这里,感受一番“偷得浮生半日闲”的闲适感。
04 主卧
主卧背景墙和沙发背景墙采用了同样的灰棕色,床的另一头一整面的柜体嵌入墙体,弱化了柜体的沉重感。
如此好的采光和若隐若现的白色纱窗是绝配,低饱和度的浅色系窗帘让整体的视觉感受都轻盈不少。将一切巧妙地融合在一起,打造一个舒适宁静的家,颇有一些禅意。
达到了业主想要的家的感觉——舒服又宁静。
05 次卧
由于次卧的空间没有主卧大,所以颜色选用上更加的明亮,床品也搭配着这种明亮选用了白色。
并且在床头设计了充足的储物空间,将床头嵌入整个柜体,独具匠心,美观又实用。
灯饰的选用上,是几何图案的杏白色,高级感呼之欲出。
个人很喜爱的是那把玻璃质感的透明椅子,在白色为主的卧室里,它的存在像是一抹特别的光,让整个房间更加闪亮了。
06 卫生间
卫生间大部分材质采用大理石,美观又耐用,这部分是卫生间独立出来的干区部分,在左侧设立了储物柜和展示区,储物柜采用无把手设计,避免了洗手时擦碰的可能性,也让整体更协调。
和整屋设计一体化,展示区同样使用了白色,无论和什么样的装饰搭配起来,都是满满的高级感。
最后,再总结一下这套房极简风的设计诀窍:1.黑白灰是经典配色,对于家具软装的选用也是颇为考究,另外,对材质的选用也是需要仔细考量;
2.极简并不是一味的简约单调,必然需要有亮色作为点缀,绿植是最好的点缀,比如这些地方的点缀,效果都是很赞的。
其中的亮色选用,选好了,低调优雅,选差了,就是失之毫厘差之千里了。
3.时尚,高级,最忌讳的就是把所有好的元素都加上去,做得好了,被称为混搭。做得不好了,就是四不像。而极简风恰恰就是摒弃诸多元素,做减法。将家打造成一个可以舒心静心的地方。现在的生活压力大,生活节奏快,一个舒适宁静的家,会让你感受到前所未有的放松和解压。你喜欢这样的装修和配色吗?欢迎在评论区说说你的看法。
2021 感动饰界
华浔作为饰界的标杆企业
坚持服务于行 感动在心
努力用“感动”书写华浔发展新篇章!
精彩推荐
- End -
本期编辑 | H.Y
客服
消息
收藏
下载
最近



















