查看完整案例


收藏

下载
设计师:黄佳庆
设计职称:高级设计师
从业年限:8 年
设计理念:纳自然之形,建空间之意。
服务的客户:苏建名都城、景瑞望府、万科翡翠心湖、万科白鹭湾、白鹭郡、远创樽樾、绿城沁园
擅长的风格:现代轻奢、北欧风格、新中式、法式风格、现代极简
个人作品鉴赏:
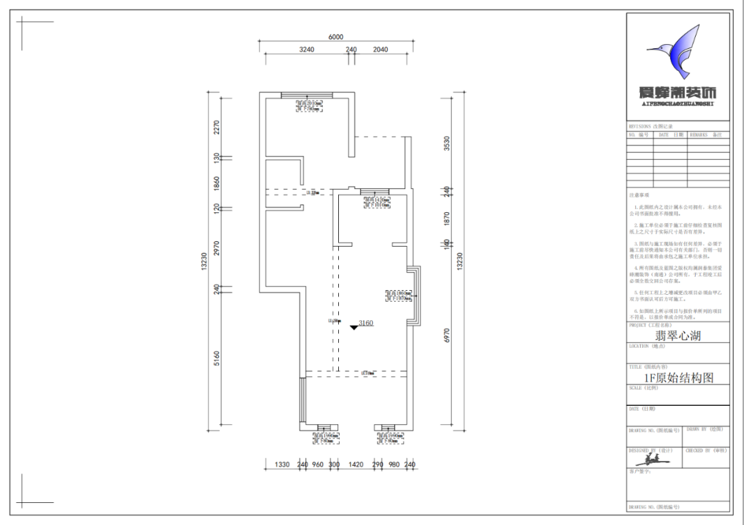
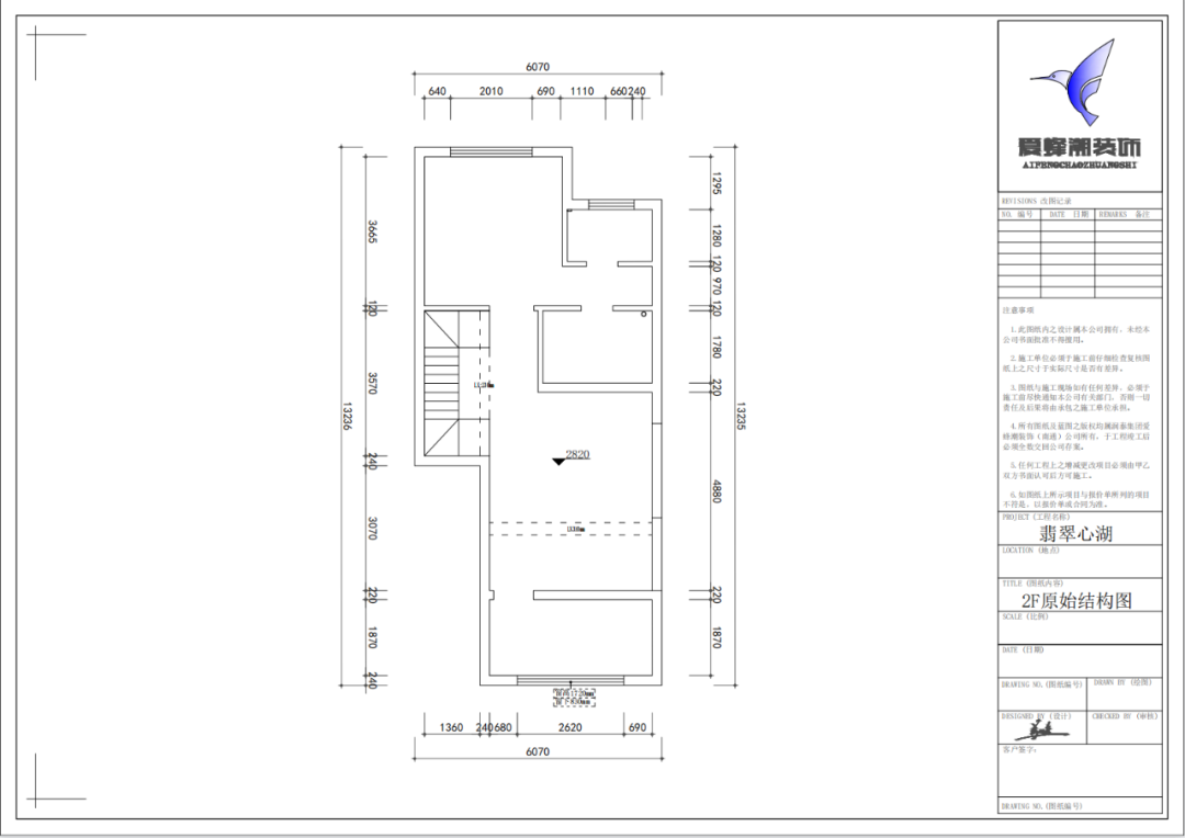
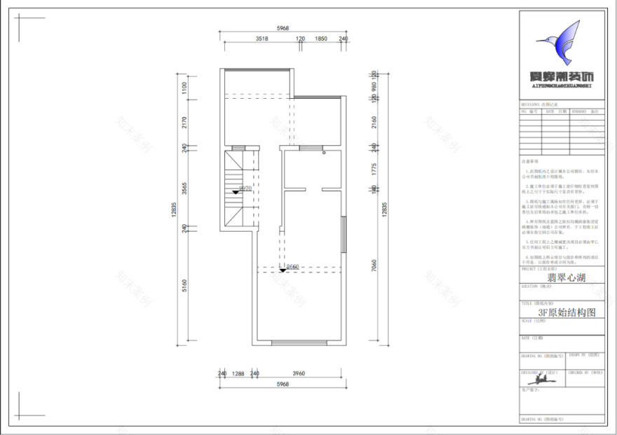
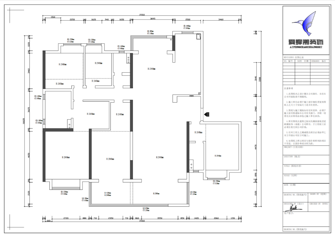
▷原始结构图
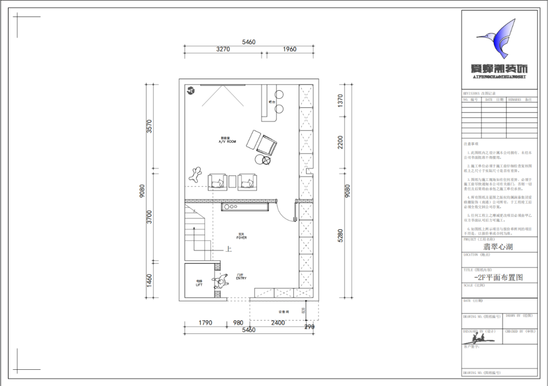
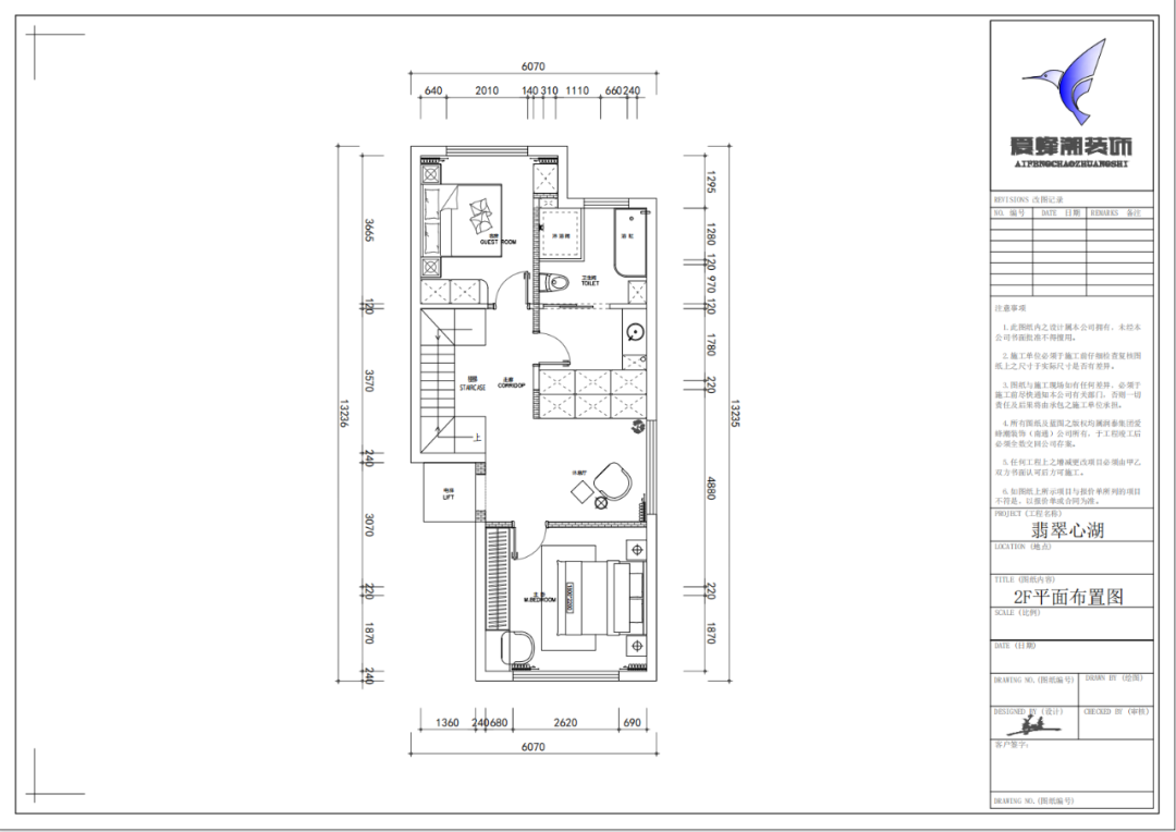
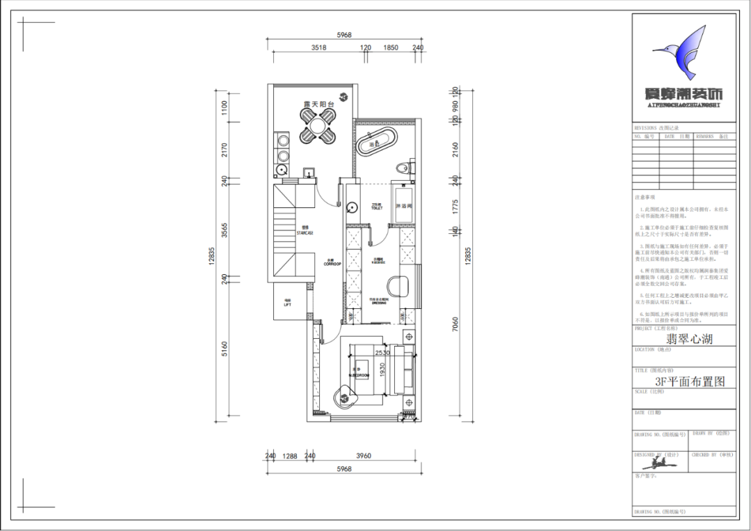
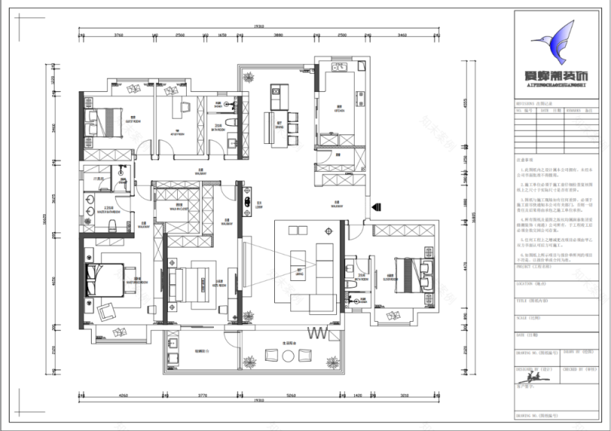
▷平面布置图
设计说明
本案例通过极简作为空间的主旋律,结合简洁的设计手法去创造简约、舒适、轻松的居家气氛。
▷客餐厅
一楼客厅纤细的轨道灯线条将空间质感再度强化,并融入一丝低调的张扬。楼梯灯光沿着线条游走,勾勒空间的棱角,玻璃在光的折射下制造出丰富场景的体验。
▷厨房
▷卧室
休憩的空间延续整体的简约,灯光柔和松弛,释放轻松的信息;同时因人和功能而异,呈现出多元化。
▷卫生间
▷负一楼客餐厅
▷负二楼影音室
项目名称:万科翡翠心湖
所在区域:开发区
装修风格:现代极简
建筑面积:360m²
施工单位:爱蜂潮装饰工程南通有限公司
其他代表作 1:
▷原始结构与平面布置图
效果图
项目名称:时代悦城
所在区域:崇川区
装修风格:现代轻奢
建筑面积:190m²
施工单位:爱蜂潮装饰工程南通有限公司
其他代表作 2:
设计说明
本案例通过开放的设计,结合简洁的设计手法去创造简约、舒适、轻松的居家气氛。沙发搭配同色系但又不同质感的抱枕,在深色的空间氛围里,渐变灰色的地毯脱颖而出,平衡了色彩之间的明暗关系质感。
在客厅与餐厅之间有一个开放式的书房,同时也将阳台、客厅、餐厅融为一体。从餐厅的位置一眼望去,空间有了更多的延伸。
项目名称:碧桂园翡翠华府
所在区域:崇川区
装修风格:现代轻奢
建筑面积:180m²
施工单位:爱蜂潮装饰工程南通有限公司
爱蜂潮装饰,11 年品牌铸造,省心省力的品质家装,南通市崇川区锦安花园附 8 幢
客服
消息
收藏
下载
最近




























