查看完整案例


收藏

下载
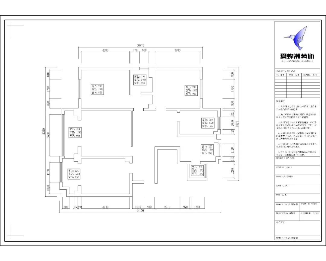
户型改动前
VS
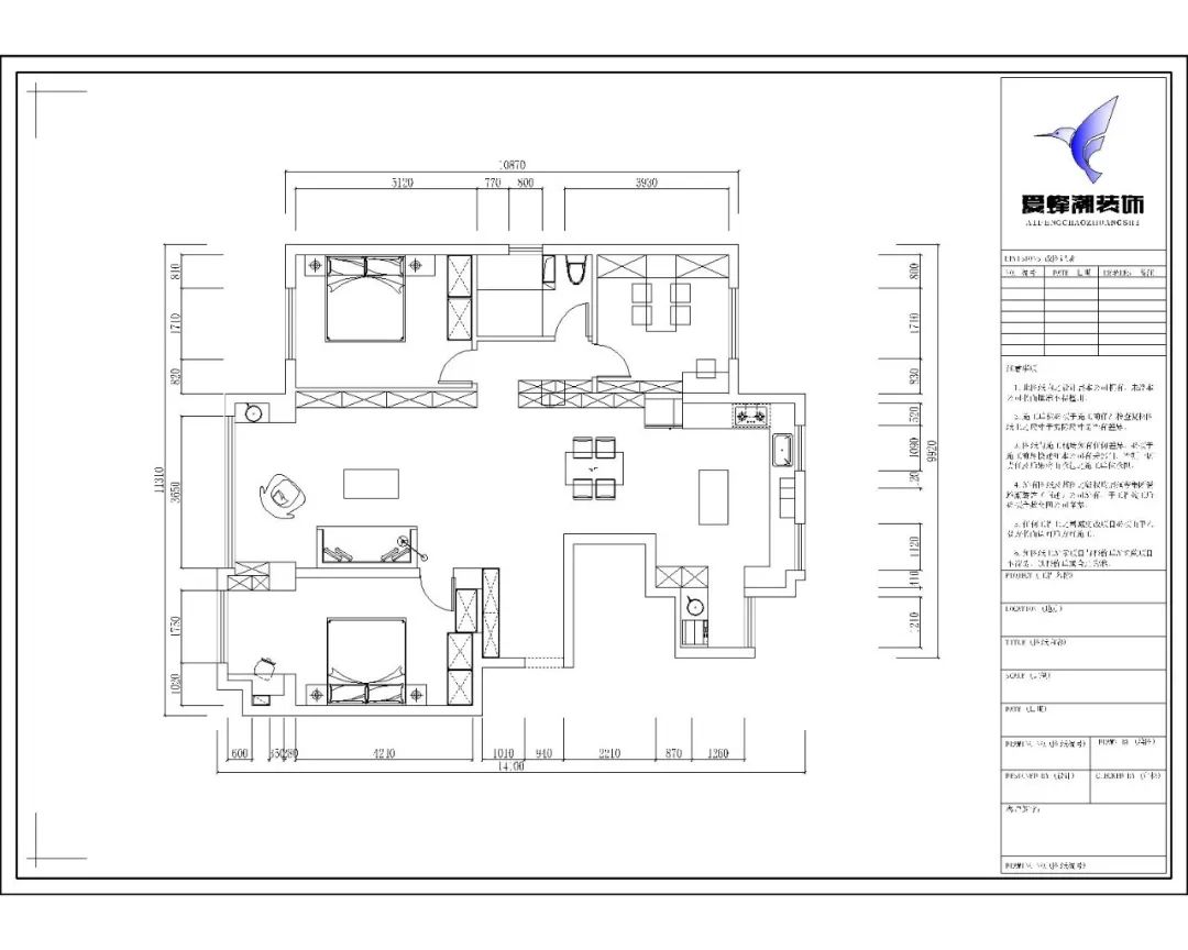
改动后
本案户型为130㎡,业主对家的诉求是宽敞明亮、大气通透。设计师将整体风格定位为现代轻奢,着重考虑空间的功能性与实用性,重新梳理生活动线,寻求开放空间与独属空间的平衡,促进家人之间的互动与感情交流。
客餐厅
进门过道巧妙布局,改动主卧门的位置,使空间整体通透且美观,增加进门鞋柜实用性。客厅与餐厅处于同一空间,南北通透,采光极佳。
客厅色调明朗清浅,电视背景取消了传统的背景设计,结合定制组合柜及悬浮式电视柜,增加储物空间。沙发背景巧妙的融入主卧隐形门,简单大气,营造出自然惬意的居家生活。
此房为顶楼,将厨房空间扩大,做开放式厨房,宽敞的空间满足多人聚餐的需求。餐边柜采用饰面板组合成有藏有露的柜体,黑色半透明玻璃增添空间的时尚性。橙色的餐椅,展示跳色点缀,搭配精致的花瓶装饰,营造出简约柔和的用餐氛围。
扫码关注
客服
消息
收藏
下载
最近









