查看完整案例


收藏

下载
FLY¢DESIGN⊙#摇曳#为生命的感受所复写,让空间归于纯粹的形体,动容于家居机能与美感的透彻。鳞次栉比的功能区域秩序感,一步一曲自是多趣,不见萧规曹随的空间表达践行生活新理念,具象化思考探索空间的冲突与张力。
Reproduced for the feeling of life, allowing space to return to a pure form, moving the home’s functions and aesthetic depth. The sense of order in the functional areas arranged in rows, step by step, is inherently interesting, without the spatial expression and practice of new life concepts by follow established rules, and the exploration of conflicts and tensions in space through concrete thinking.
光与建筑体态的共生,功能区之间的和谐共处,参照着客观的规则立下新面。还之于纯粹的体块、利落的空间、开放的区域,各功能区的黏性得以增加,相互映衬却也怡然自得。
The symbiosis of light and architectural form, the harmonious coexistence between functional areas, and the establishment of new aspects based on objective rules. Thanks to pure blocks, clean spaces, and open areas, the stickiness of each functional area is increased, while complementing each other with ease.
功能区与结构的再造形式,以空间盒子的概念重新解读进行秩序性排列,感受场域的连接与互动,以精简的姿态构建区域结构进而绘制空间次序。
The reconstruction form of functional areas and structures, reinterpreting the concept of spatial boxes for orderly arrangement, experiencing the connection and interaction of fields, and constructing regional structures in a simplified manner to draw spatial order.
家居空间的融合共生,见于空间的敞合共处与功能区域感的把控,无界而自有其形;留意立面的贯穿衔接、空间的和谐与细部的绘写,干脆精简的结构为区域故事的氛围铺垫。
The fusion and symbiosis of home space can be seen in the open coexistence of space and the control of functional area sense, which is boundless and has its own form. Pay attention to the continuity of the fa ç ade, the harmony of the space, and the detailed depiction, and simply simplify the structure to pave the way for the atmosphere of the regional story.
以开放式空间呈现的物质形态,与相邻空间的互动组合形成新的功能元素,对空间进行叠加赋能。与厨房相邻的书房做开放式,有需之时亦可辅助餐厨区所用。
The material form presented in an open space is combined with the interaction of adjacent spaces to form new function elements, superimposing and empowering the space. The study adjacent to the kitchen is designed as an open space, which can also be used as an auxiliary kitchen area when necessary.
碎片化空间重组再分割,套间形式组建符合居者的生活方式;衣帽间运用材质与方位绘制感官的丰腴,以色彩串联各区域诉诸空间的同频。
The fragmentation space is reorganized and subdivided, and the apartment form is constructed in line with the lifestyle of residents. The cloakroom uses materials and orientation to depict the richness of the senses, connecting various areas with colors to appeal to the same frequency of space.
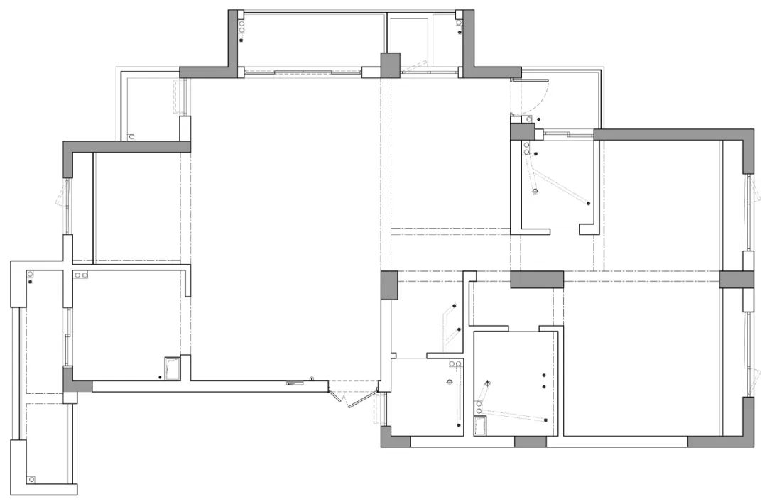
原始图
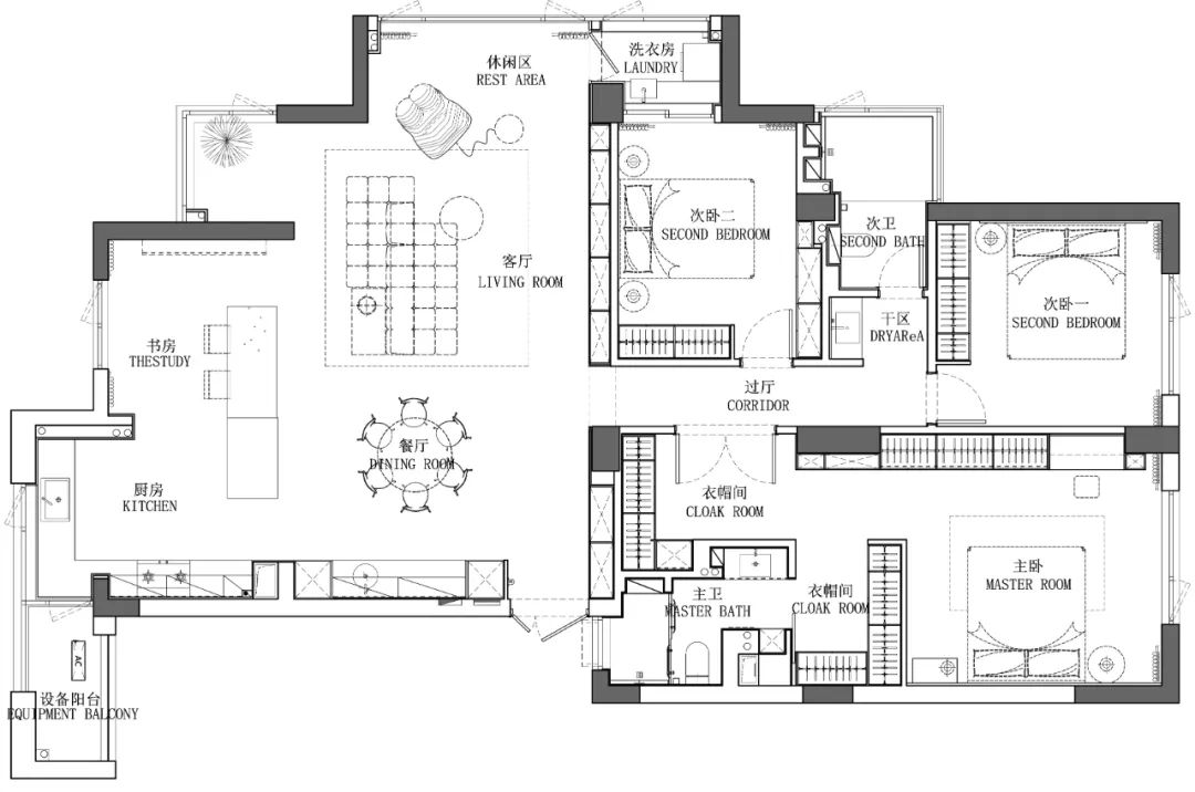
平面图
左右滑动浏览更多
设计机构/菲拉设计
Designer Department /FLY DESIGN
项目地址 /浙江杭州·梧桐蓝山
Project address /Zhe Jiang · Hang Zhou
户型 / 三室三厅
Door Model / Three rooms and Three halls
面积 / 172㎡
Square Meters / 172㎡
项目类型 / 硬装设计,软装宅配
Project type / Hard decoration design, soft decoration house configuration
摄影师 / 川河映像
Photographer / CHUANHE VISITION
不要忘记设为置顶哦
地址 / 杭州市江干区高德置地中心 2 号楼 2 单元 1101 室
#往期推荐#
所属版权及最终解释权归菲拉设计所有
客服
消息
收藏
下载
最近



































