查看完整案例


收藏

下载
菲拉設計 Hang Zhou/ZheJiang 2023
泥沙浮海,弱水潺潺,该如何面对这山河流淌、更迭变幻?或随风而起,随心所至,爱意不止,热泪长流。FLY¢DESIGN⊙#浮尘#
参悟着生命中种种表达,讯息的传递承载我们的感知、意象。解构空间重新叙写,功能的表现形式与空间的互动途径,迸发出不同的观感乐趣。在比例、平衡性上体现结构、线条、比例的理性,以不被定性的故事自我领悟多个答案的可能。
Enlightening various expressions in life, the transmission of information carries our perception and imagery. Deconstructing the space and re-describing it, the manifestation of functions and the interactive ways of space burst out from different perspectives of fun. Reflect the rationality of structure, lines, and proportions in proportion and balance, and self-comprehend the possibility of multiple answers in an unquantified story.
将图像如同语言一样,作为人的基本生活方式,表达其精神思维。空间功能的形态表达,彼此独立各具其色,却在互相对比中传达整体的协调性,诠释协调对比的设计魅力。适度的比例与分寸,将色彩的和谐与张力如细雨般自然呈现。
Using images as a basic way of life, like language, to express one’s spiritual thinking. The form expression of spatial functions is independent of each other and has its own color, but in contrast, it conveys the overall coordination and interprets the design charm of coordination and contrast. Moderate proportion and proportion naturally present the harmony and tension of colors like a drizzle.
把握各个功能区的展现姿态,区域的自然衔接,和谐的空间语言,细腻的情感表达,凭借那不同视角下的感官捕获,与家居生活来一场不休止的漫漫对话。
Grasp the display posture of each functional area, the natural connection of the area, harmonious spatial language, and delicate emotional expression. With the sensory capture from different perspectives, engage in an endless dialogue with home life.
改变既定的理解模式,冲破常规的表现印象,家居面貌没有定性与标准可言,让物件得以通过不同的状态表达自身功能价值之上的更多可能。减少常见空间的分割封闭,代之以大气精巧的利落表达,既得空间的通透灵动,兼有区域的价值输出。
Changing the established understanding mode and breaking through the conventional impression of performance, there is no qualitative or standardized appearance of the home, allowing objects to express their functional value through different states and more possibilities. Reduce the segmentation and closure of common spaces and replace them with elegant and agile expression, resulting in a transparent and dynamic space while also outputting regional value.
家居空间的展现形象来源于居者生活方式且随之而变,以人为本依需而行,完善当下空间的家居使命。餐厨区根据需求调配放置二楼,与建筑结构结合呈现有其特色的功能区,感受不同形态下的空间魅力。
The display image of home space originates from the lifestyle of residents and changes accordingly. It is people-oriented and needs oriented, and the home mission of improving the current space is to be fulfilled.
The dining and kitchen area is allocated and placed on the second floor according to needs, and combined with the building structure to present a unique functional area, experiencing the charm of different forms of space.
》》》
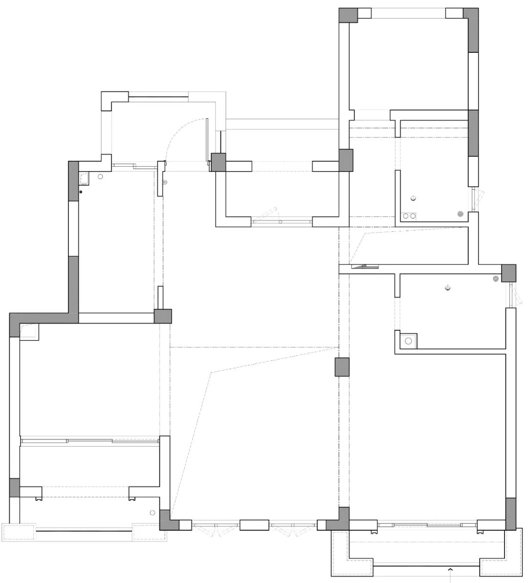
一楼原始图
一楼平面图
二楼原始图
二楼平面图
左右滑动浏览更多
设计机构/菲拉设计
Designer Department /FLY DESIGN
项目地址 /浙江杭州·西湖国际城
Project address / Zhe Jiang · Hang Zhou
户型 / 跃层
Door Model / Duplex apartment
面积 / 180㎡
Square Meters / 180㎡
项目类型 / 硬装设计,软装宅配
Project type / Hard decoration design, soft decoration house configuration
摄影师 / 川河映像
Photographer / CHUANHE VISITION
不要忘记设为置顶哦
地址/杭州市江干区高德置地中心 2 号楼 2 单元 1101 室
#往期推荐#
所属版权及最终解释权归菲拉设计所有
客服
消息
收藏
下载
最近




































