查看完整案例


收藏

下载
F L Y
¢D E S I G N
⊙#balance
#
宁静与忧伤之间,沉默与孤独之间
彳亍追逐,和解与对抗
Between peace and sorrow, silence and loneliness
Slowly pursued, reconciliation and confrontation
❧
美·因 苛 求
Livingroom / 客厅
黑白灰经典配色,加之于自然界的木色、绿色,丛林与文明之间、理性与感性之间,陶染着如此的气息。
The classic colors of black, white and grey, combined with the wood color and green in nature, flow with such breath between jungle and civilization, rationality and sensibility.
L 型沙发围合态势回应不同空间角度的对话与互动,沙发的重新组合排列,可变量引导家居生活的多种可能。
The enclosed situation of L-shaped sofa responds to the dialogue and interaction of different spatial angles. The recombination and arrangement of sofa can guide a variety of possibilities of home life.
收纳与感官之间,深度剖析家居美学,借助材质、结构的再生组合,多形式化的艺术表达来与收纳的实用主义之间做平衡。
Between storage and sense, home aesthetics is deeply analyzed with the help of material and structure regeneration combination. Multi-formalized artistic expression to balance with restrained pragmatism.
顶面赤裸、粗犷的横梁,野性的外壳表象与井然有序的空间形成反差,挣脱当下形态的束缚,表达自我个性中的那份原始与纯粹。
The bare and rough beam on the top, the wild shell appearance and the orderly space form a contrast, breaking free from the bondage of the current form, expressing the original and pure in my own personality.
Restaurant / 餐厅
见色、见物、见呼吸,自然写意,形体排列的机灵乖巧,肴浆间的情绪韵律。
See color, see things, see breath, Natural freehand brushwork, clever and clever body arrangement, mood rhythm between the dishes.
Corridor / 走廊
楼梯转角曲面处理、一隅侧墙自有态度;顶面弧形构造,上下呼应引出空间面与面的对话,角与角的议题。
Stair corner surface processing, corner side wall own attitude; The top surface arc structure, the upper and lower echo leads to the dialogue between space surface and surface, Angle and Angle issues.
Master bedroom/ 主卧
顶部波浪式延伸过渡,靠窗一侧纳入充盈光感,原始形态上的精巧应变,予室内色系的清爽温润平添几分灵气。The top wave type extends the transition, the window side introduces filling light feeling, the exquisite strain on the original form, and the cool warmth of the indoor color department add a few minutes of clever spirit.
Guest room/ 客卧
Toilet/卫生间
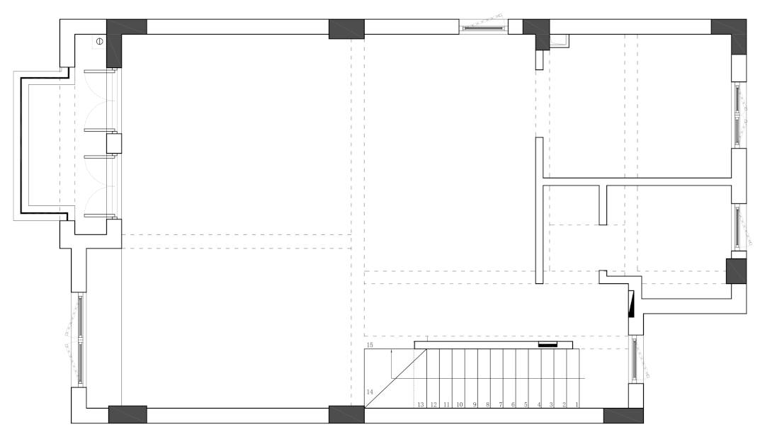
一层 /First floor
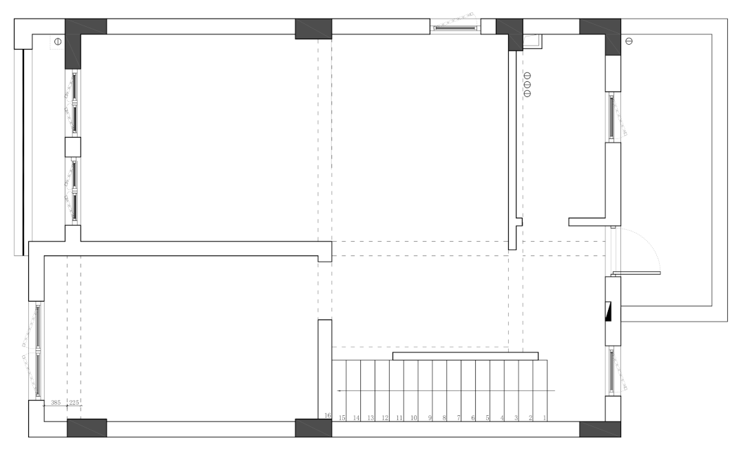
二层 /Second floor
设计机构 I Designer Department:菲拉设计
项目地址 I Project address:浙江杭州·九龙仓雍景山
项目类型 I Project type:硬装设计,软装宅配
面积 I Square Meters:190㎡
户型 I Door Model:跃层
摄影师 I Photography:林峰
不要忘记设为置顶哦
地址/杭州市江干区高德置地中心 2 号楼 2 单元 1101 室
#往期推荐#
所属版权及最终解释权归菲拉设计所有
客服
消息
收藏
下载
最近




































