查看完整案例


收藏

下载
美 · 因 苛 求
F L Y
¢
D E S I G N
⊙
# 独白 #
“物质贫乏,精神富足,摒弃分别心,看清无常,注重本心。”
“Material poverty, spiritual abundance, abandon the separate heart, see the fickle, pay attention to the heart.”
Living room \ 客厅
朴实、纯粹的材质与简约、自然,不带一丝造作的中性配色,赋予宁静的侘寂氛围,在这座繁闹的城市觅得一处安逸。
Simple, pure material and simple, natural, without a trace of neutral color matching, giving a quiet 侘-quiet atmosphere, in this bustling city to find a place of comfort.
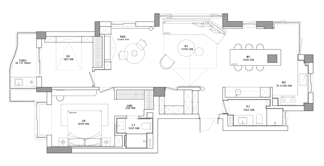
设计师将原本狭小的卧室,打通纳入客厅区域,作为休闲区以及业主手办的展示区,让整体空间更加的开阔通透。
当室外光线透过玻璃窗进入室内,光与影在纹理之间的凹凸缝隙彼此交织,讲述一个有温度的居住空间。
Designers will be the original small bedroom, through into the living room area, as a leisure area and the owner's hand-held exhibition area, so that the overall space more open and permeable. When outdoor light enters the room through a glass window, the bump gap between light and shadow in the texture interweaves with each other, telling the story of a temperature-filled living space.
简约的家具之间保持着彬彬有礼的距离,极致舒适的画面贯穿每一个空间,让每一件物品彰显艺术陈列的视觉。
Simple furniture between the maintain a polite distance, the ultimate comfortable picture throughout each space, so that each item shows the visual display of art.
Kitchen area
\ 餐厨区
北阳台与餐厅、厨房巧妙合并,让原本局促的三个空间成为一个整体,空间互通互用,让空间更加的宽敞。同时将原本老旧零碎的门窗全部更换成落地窗,更好的将户外的风景和光引入的室内。
North balcony and dining room, kitchen cleverly merged, so that the original three spaces into a whole, space interoperability, so that the space is more spacious. At the same time, the old and fragmented doors and windows will be replaced with floor-to-ceiling windows, better outdoor scenery and light into the interior.
Master bedroom
\ 主卧
木饰面、棉质床品、艺术涂料等贴近自然的材质与色彩,在空间中营造温润素净的面貌。
Wood finishes, cotton bed products, art coatings and other materials and colors close to nature, in the space to create a warm and clean appearance.
粗犷的微水泥墙面,硬朗的材料与色彩,纱帘在风中徐徐飘动,朴实雅致的氛围下尤显宁静安然,仿佛静止了时光。
Rough micro-cement walls, hard materials and color embellishment, curtains in the wind slowly fluttering, simple and elegant atmosphere is particularly quiet and peaceful, as if still time.
设计机构 I Designer Department:菲拉设计
项目地址 I Project address:浙江杭州
· 蓝色霞湾
项目类型 I Project type:硬装设计,软装宅配
面积 I Square Meters:
125㎡
户型 I Door Model:三
室两厅一厨两卫
摄影师 I Photography:瀚默视觉-小四
不要忘记设为置顶哦
地址/杭州市江干区高德置地中心2号楼2单元1101室
#往期推荐#
所属版权及最终解释权归菲拉设计所有
客服
消息
收藏
下载
最近






























