查看完整案例


收藏

下载
FLY¢DESIGN⊙#元气#
一花
两犬
一片田园
A bunch of flowers
Two dogs
A pastoral
❧
美·因 苛求
业主找我们设计时也正是疫情期间,所以沟通更多的是在线上,视觉化表达与实用性功能的完成度诠释着——距离不是问题的潜台词。
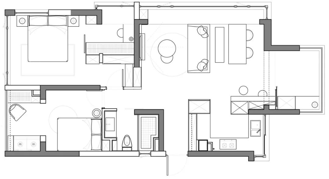
客餐厨
—
Sitting room/Restaurant/Kitchen
不限制,却又克制。明确的区域,不限定的空间。
白色基底,各式木色烘焙暖意。
线性圆形代入解构材质拼接与穿插的艺术题
主卧—Master bedroom
平面的三维勾勒,或深或浅,藏光匿影。
次卧—Bedroom
不声张的底色平铺,领域,是云朵包裹的万花筒。
多功能区—Multifunctional area
地表的高低差表达手法,空间开放且独立。
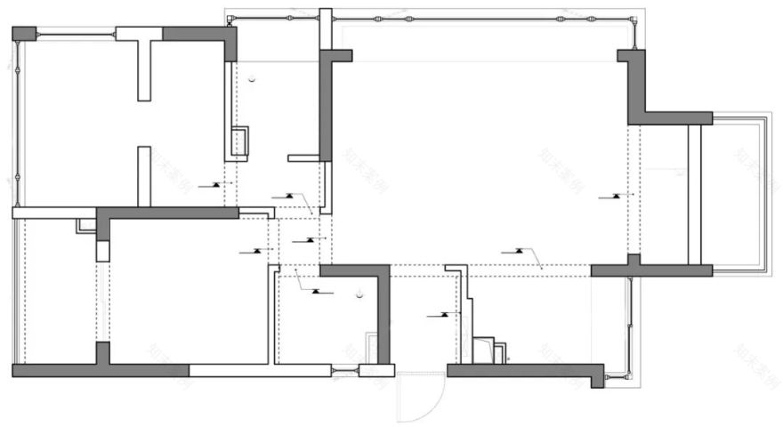
原始结构图&平面设计图—House type&Plane design
设计机构 I Designer Department:菲拉设计
项目地址 I Project address:龙湖春江悦茗
项目类型 I Project type:硬装设计,软装宅配
面积 I Square Meters:89㎡
户型 I Door Model:两室两厅
摄影师 I Photography:瀚默视觉-小四
不要忘记设为置顶哦
地址/杭州市江干区高德置地中心 2 号楼 2 单元 1101 室
#往期推荐#
所属版权及最终解释权归菲拉设计所有
客服
消息
收藏
下载
最近




























