查看完整案例


收藏

下载
F L Y
¢
D E S I G N
⊙
# 悟 宇 #
无边之宇
用眼去看
用心来感受
Boundless universe
see with your eyes
feel with your heart
❧
美 · 因 苛 求
杭州—台州,相隔200多公里,我们凭借着各部门间高度的粘合度以及业主的支持与配合,由设计到施工一体化的800㎡全案项目经过两年的精心打造完美落地。距离上的阻碍并没有让我们退却,反倒是我们迎激流而上的动力; 两年,施工组驻于台州,设计师一次次地奔波于两地之间,空间的考验和时间的淬炼让作品犹如珍藏的佳酿,醇厚绵长。
我们自信、自勉但从未自负,这份答卷我们严苛以待,尽心尽力,而作品的呈现让一切努力不言自喻,也请君过目。
一个好的空间是能够感动人的,让居住者受到触动,如小泽征尔于二泉映月,达到情感的共鸣。以灰 褐为主色调,沉稳的气质浸染到居住者的日常,深邃、放松,踏入这个家开始就已经拭去压力,只得安心与慵懒。
一层
| First floor
别墅为地上三层,地下一层。一层是家庭的社交场所,业主对木材质感有着特别的情怀,喜欢沉稳时尚的基调。空间中大量运用深色天然木纹饰面,木材的温润结合冷峻的大理石,凛冽不失温柔。
客厅
—
Sitting room
沙发呈围合之势限定范围,处于同一空间的客餐厅之间保有一定的区域感;设计师将沙发区重心面向花园景观,闲暇之余可观窗外景,与户外形成良好的互通关系。暖色系沙发特有的视觉柔和与材质触感的温柔是和空间气质的互补,酷炫的空间不乏温度。
定义的是规则
思变的是灵魂
永恒的是感受
餐厅
—
Restaurant
餐厅水晶吊灯点亮空间,云朵状兼携奶绿色餐椅的平和、包容,打造浪漫自在的就餐舒适感。
餐厅与吧台之间的结构柱和墙顶低矮的梁是此区域的难点,设计师通过半分隔的形式穿插设计,与结构柱对应的墙体有意识地做墙垛,以几何线条形态连接吧台延伸至厨房墙面,形成倒U形结构,立柱与墙面、顶面、岛台进行完美的融合。几何架构的魅力来自它的线条感 空间感和观赏者的抽象感受,由此走过进入厨房和餐厅,从感官上营造出登台入室之感,平面空间上给每个部分应有的区域体验。
吧台
—
Bar counter
灯光与金属碰撞的浪漫光感,不同材质的同声表达流露出的氤氲观感。
玄关
—
Vestibule
设计师打破原先玄关的保守进行重新组合,将直对内部空间的入口迂回设计,立柱控制视野,打造入户的私密性,不规律间隔的温润几何,让客餐厅若隐若现,空间隔而有联。
四根不规则的立柱,代表着春生、夏长、秋收、冬藏四季交替不同的美好气象,与餐厅岛台区材质交相呼应形成自然过渡。
父母房
—
Parents' room
考虑到逐渐年长的父母生活便捷性,一楼保留父母房间,与客餐厨一系列生活区域集中。
地下室
| Basement
层高高达5.5米的地下空间,设计隔层得两层提升空间利用率;地下室以娱乐休闲为功用,简洁淡雅的笔触叙写,格局以通透宽敞为基准,起居室、吧台、台球室 、影音室、手工区、洗衣房和可延伸的留白空间,兼顾未来的可变性。
起居室
—
Living room
自然光凭借挑高设计得以填充两层空间,与自然 与外界的连接,即便是地下空间也保有最大平衡的舒适度。
两层空间气息相通,休闲娱乐区互动紧密,就算不在同一层空间的家人或者朋友,仍可交流方便,给予居家玩乐时的最佳体验感。
周全的设计定是要兼具地区特点的,设计师考虑到台州的沿海环境,空气中水分含盐量高,在材质的运用上也是十分考究,户外的材料用于室内,花岗岩墙面以疏密的排列及深浅的变化配以特殊肌理的意大利艺术涂料,空间繁简对比,节奏清晰分明。
天井之下的休闲沙发,使用频率最高的休息区也得到了阳光最大的沐浴,亲朋好友聚于此享受阳光的惬意,分享幸福,回味点滴。
悬浮式视感阶梯
第一踏步延伸到其他区域
把握空间的相互联系
门厅
—
Foyer
业主大多是从地下室回家,地下室的门厅也尤为重要,端景两处结构柱设计师以半通透的大小体块手法,行云流水之势将其纳入整个端景之内,并与内部空间留有暧昧气息——若隐若现。
水吧台
—
Water bar
地下室采光受限,楼梯部位、吧台酒柜、台球区等大量采用漫反射的光源设计,渲染自然舒适而温馨的氛围。
台球室
—
Billiards room
影音室
—
Audio and video room
三层
| Third floor
三楼基调与客餐厅保持一致,深色木格栅与烟熏色的鱼骨拼地板奠定整个空间的基调,深邃稳重而又不失时尚感。色彩上做减法,以不同程度的深灰色系呈现空间细微的层次变化。
主卧
—
Master bedroom
三楼的整个空间是为夫妻两人所做的规划——卧室、书房、衣帽间。卧室主要由睡眠空间,四区分离的卫生间、更衣室构成,另外带有一个小冰箱和水吧。私人化需求和空间分配比不相融时,用减法以求开发基本需求的最大便利和舒适度 ,当家有充分的空间来允许多样化的可能性时,需求与空间达到一个高的适配度,我们则更为挖掘、体现生活的精细化、高便捷化、多样化。
卧室大量使用只见光不见灯的手法,减少装饰的繁复;10米宽的落地窗设计,极好的采光与最佳观景视角应和整个空间应秉有的气势;圆本身带有的视觉聚焦感装饰之余突出整个空间睡眠区的主体地位。
卫生间内独立的更衣化妆室,男女双衣帽间的配置,释放男女主人的思想以及行为自由。
衣帽间
—
Cloakroom
女主人的专属衣帽间。
书房
—
Study
游戏对于男人的治愈力无庸赘述!男业主喜欢网游,书房兼具游戏室,空间里少见的姜黄色墙面刺激着视觉感观,让游戏随时处于最佳备战状态;书房与卧室之间保持着一定距离,互不干扰。
二
层
| Second floor
二楼以睡眠空间为主,女孩房、男孩房、父母房,每个房间都有各自独特观感和私人化的特色。
女孩房
—
Girls room
用温暖的色彩陪伴最爱的人,温润的木色 米色和不可或缺的粉,为两个女孩打造一个快乐活泼的成长环境。
男孩房
—
Boy room
男孩房加入深棕、浅灰,多了份小小男子汉的担当。
父母房
—
Parents' room
其他空间
—
Other space
原始结构图&平面设计图
—
House type&Plane design
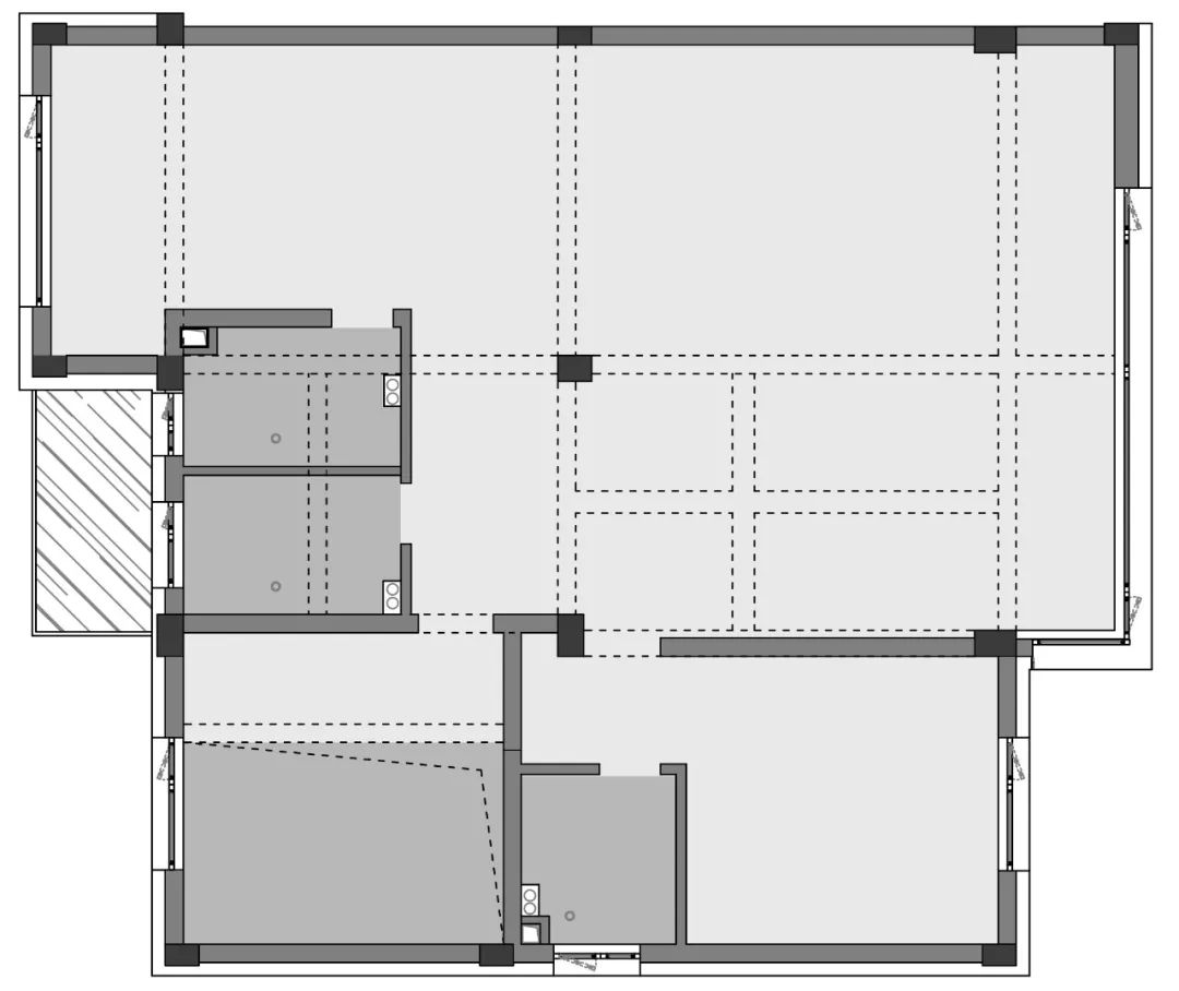
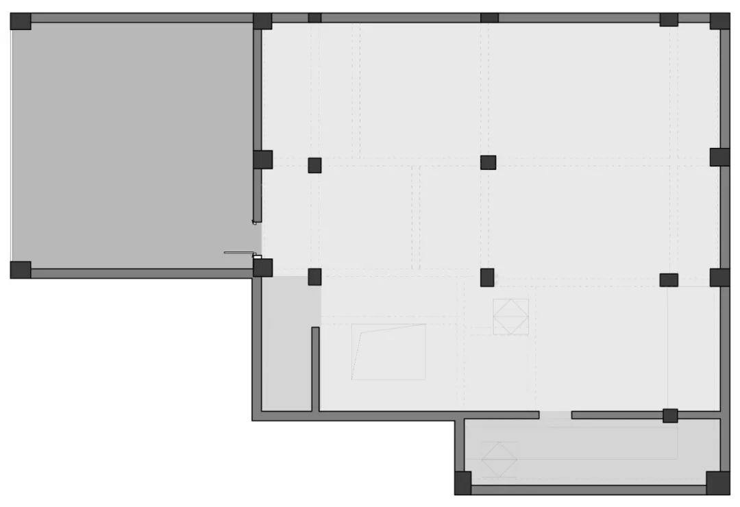
一层原始户型图
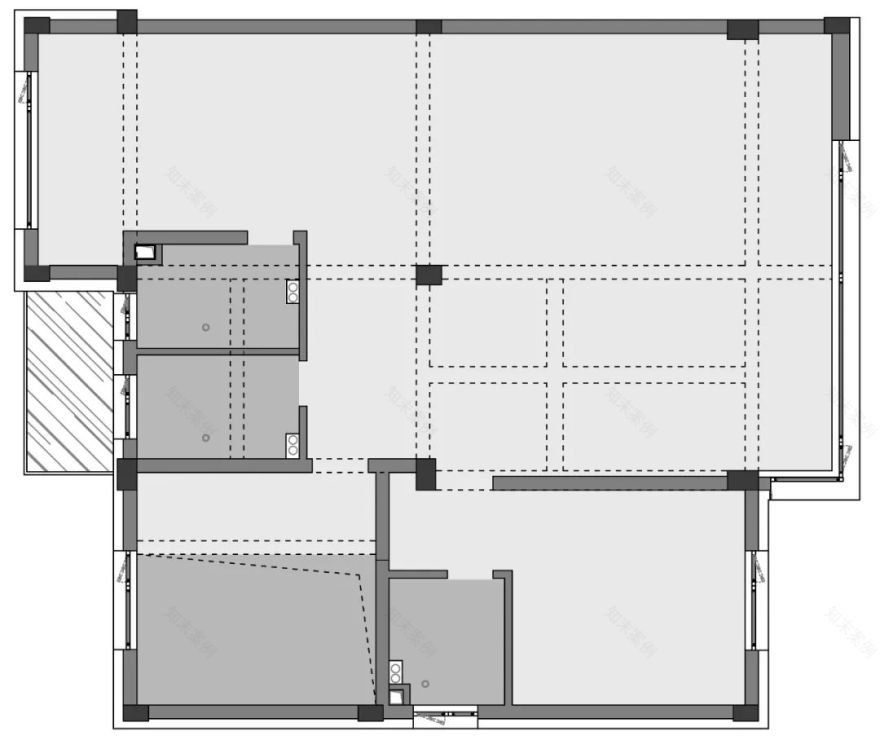
一层平面设计图
二层原始户型图
二层平面设计图
三层原始户型图
三层平面设计图
负一层原始户型图
负一层平面设计图
负二层原始户型图
负二层平面设计图
设计机构 I Designer Department:菲拉设计
创始人 & 主案设计师 I Founder & Designer: 宋雄飞
项目地址 I Project address:浙江台州 耀达天玺
项目类型 I Project type:全案
面积 I Square Meters:800㎡
户型 I Door Model:别墅
摄影师 I Photography:瀚默视觉-叶松
主材 I Main Material:书香门第地板、燊科瓷砖、沐泽木作、汉斯格雅卫浴、杜拉维特卫浴、博世电器、齐家墙纸、昂宇大理石、DANILO艺术涂料、迅达电梯、麦克维尔设备
主案设计师
创始人/设计总监:
宋雄飞
专业:环境艺术设计
抛弃固有思维 寻求一切可能 让设计回归生活
宋雄飞,专注于室内空间设计,创立了自己的品牌公司“菲拉设计”。带领着一批具有崇高设计梦想的青年团队,一直在设计的矛盾中寻求突破。善于结合生活将空间重组,把空间特色发挥到极致,强调功能与美感平衡,尊重使用者的真实需求。生活方式决定空间形态,为众多业主量身打造属于他们自己别具一格的家。
主要业绩及获奖情况:
设博会华鼎奖十佳杰出设计青年;
中国空间设计艺术大赛-创新中国-最佳设计作品金奖;
创新中国空间设计艺术大赛十佳杰出设计青年;
亚太空间设计百强设计师 ;
好好住营造家奖;
《第八届大金内装设计大赛》综合设计 公寓组 铜奖;
《第七届大金内装设计大赛》全国综合设计 公寓组 铜奖;
国际空间设计大奖《艾特奖》 入围奖;
中央财经频道CCTV2《交换空间》栏目受邀设计师;
杭州电视台3频道《生活大参考》栏目受邀设计师;
杭州电视台4频道《家居我来帮》栏目受邀设计师;
作品发表《装修情报》《家居视界》《杭州城报》等平面媒体
设计案例:
绿城-中交悦西溪样板房、绿城-兰庭伍重院、绿城-桃花源、绿城-富春和园、绿城-翡翠城、新湖-武林国际、滨江-城市之星、雅戈尔-御西湖、碧桂园杭州样板房、云龙十一景、彩虹城、风雅钱塘、金基晓庐、钱江时代等
软装团队
地址/杭州市江干区高德置地中心2号楼2单元1101室
有什么问题都可以添加客服菲菲咨询!
#往期推荐#
所属版权及最终解释权归菲拉设计所有
客服
消息
收藏
下载
最近







































































































