查看完整案例


收藏

下载
美·因苛求
法式的优雅感一直都影响着我们的生活。
无论是女孩子的礼服裙、还是那些宫廷感的装饰,都象征着现代人们对法式风格的喜爱。
网络图
法国像是小资和情调的代名词,是时尚的朝圣地和艺术的起源地之一。慵懒的优雅感永远是法式风情的代名词。
奥黛丽·塔图、苏菲玛索,她们像是摇曳在影坛的精灵,举手投足优雅端庄,让人魂牵梦萦。她们是法式风情再好不过的代言人了。
网络图
法式风情不惧年龄的变更,反而越久越有意蕴。来自文化底蕴的优雅和高贵,慵懒而柔软,给人以宁静的平和感。
在室内设计中也一样,法式风格仍然被广泛使用着:能够很有效地填充空间,将大空间打造出一种慵懒高贵感和自在的优雅度。
这次菲拉为您带来的正是法式现代风格案例,极具格调感和轻奢感。既带着法式的优雅,又伴随着现代的简洁,独特而充实。
本案的户型是独栋别墅,分为两层住宅以及一层地下室。户型方正,采光良好,房子优越的自身优势更需要用心的设计,才能将地利人和发挥到极致。
780㎡的大空间给了设计师更多灵感迸发的机会,也相当考验设计师对于空间结构的把控能力。
整体设计风格为法式现代风,将法式家居中多采用的洗白处理、华丽配色与现代风的简约、时尚完美融合,打造出不同凡响的格调感。
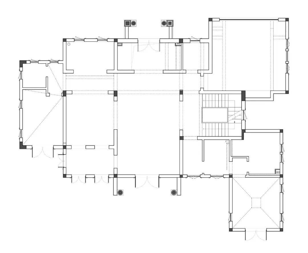
一楼 | On the first floor
原始结构图
平面设计图
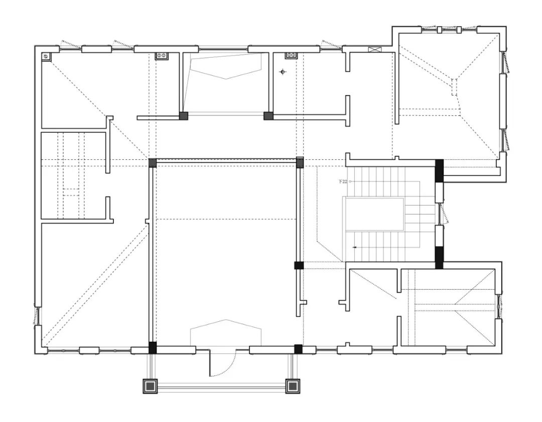
二楼 | On the second floor
原始结构图
平面设计图
负一楼 | Negative on the first floor
原始结构图
平面设计图
一楼 | On the first floor
一楼以会客厅和中岛为中心,是一家人活动的主要空间。设计的时候曾对家里空间进行排名,中岛台首屈一指。
客餐厅 | Sitting&Dining restaurant
客厅采用了弧形门洞的分割,空间隔而不断。蓝色的布艺沙发、红色的单椅、暗红色的屏风,增添了整个空间的现代感,却将整体气质衬托得更加典雅。
餐厅采用的圆形餐桌,椅子也选择了具有弧线感的设计,在整个四方的空间里显得圆滑流畅,给人一种舒适的包容感。良好的采光使得经典的留白不会显得冰冷,辅之以顶部的装饰,打造出一种轻奢感,在现代与复古之间达到和谐的交融。这样的设计不仅不会显得杂乱拥挤,更致力于表达出空间的延伸感。
中岛台 | Middle island
中岛台的设计规整却经典,黑白对比色将空间划分为两块。鱼肚白的吧台简洁大气,金色的吧椅和门框交相呼应,打造出别致的高级感。
玄关 | Porch
玄关的设计极为典雅,墙面运用的是法式风格中最经典的留白,而通过家居的摆设营造氛围。暗红色的屏风将空间隔断,营造出一种浪漫的神秘感。磨砂质感的鞋凳沉淀质感,将玄关的优雅气质放大到极限。
长辈房 | Elder house
为了保证长辈活动便捷性与睡眠质量,我们把两个长辈房都布置在一楼,相对比较私密的空间,与客厅保持一定的距离。而且都拥有非常良好的通风采光,将户外的风景引入到室内空间,与自然合二为一。风格上我们尊重长辈的意见,采用了比较传统的新美式和美式风格,略显古朴高贵。
二楼 | On the second floor
二楼为主要居住空间,凸显出不同空间的独特性格。
主卧 | The master bedroom
在主卧空间白色与西藏红交织在一起,素雅之中彰显一份古典韵味,造型上采用设计师惯用的方式,对复古元素进行简化升华,结合公共艺术的概念,多元化的设计理念,语言“丰富又简洁”,结构“复杂又纯粹”。
起居室 | The living room
起居室是家人们的公共区域,所以色彩也会丰富些。白色的墙面,线面组合的地板,颜色温柔的沙发,造型感的装饰,整个空间充满着现代的温柔。
男孩房 | The boy room
男孩房采用蓝紫色为主色调,都是温柔沉静的颜色;卫生间则以蓝色、橙色为主色调,规整却不失活泼。条纹墙纸、动物雕塑、气球吊灯以及桌子板凳等扩充了房间的细节,带着孩子童真的灵气。
女孩房 | Girls room
女孩房采用了橘粉色为主要色彩,和一般的粉色相比,这个颜色更舒适,也更加温暖。云朵吊灯的设计给女孩子处在云端的梦幻感。卫生间采用了白色、浅粉色的搭配,显得干净整洁。水槽、浴缸的弧线设计使得空间更加温柔饱满。
楼梯间 | Staircase
负一楼 | Negative on the first floor
地下一楼的空间是娱乐及收纳区,供家人们嬉笑玩乐,增进感情。
地下一楼大致分为两块,一侧可以用来聚会,拥有八个座位的长桌;另一侧供孩子玩乐,空间旷阔,摆放着玩具,充满童趣。两侧的墙面都有柜子,可以用来存放各种玩具、杂物,也可以作为展示柜,摆放手办(譬如高达)。
影音室 | Audio and video room
地下一楼另有影音房,设计具有先进的科技感和前卫感,线条的灯光设计将整个空间放大,深色背景,给人无限的沉浸感。沙发的包围感在阴暗的空间里给人以安全感,环绕音提供视听盛宴。
项目地址 I
Project address
:
浙江杭州 · 桃花源
设计机构 I Designer Department:菲拉设计
创始人&设计总监 I Founder & Designer: 宋雄飞
项目类型 I Project type:
硬装设计,软装宅配
面积
I
Square Meters:
780
㎡
户型 I Door Model:独栋别墅
视觉表现 I Photography:王鑫宇、李彬彬
主案设计师
创始人/设计总监:宋雄飞
专业:环境艺术设计
抛弃固有思维 寻求一切可能 让设计回归生活
宋雄飞,专注于室内空间设计,创立了自己的品牌公司“菲拉设计”。带领着一批具有崇高设计梦想的青年团队,一直在设计的矛盾中寻求突破。善于结合生活将空间重组,把空间特色发挥到极致,强调功能与美感平衡,尊重使用者的真实需求。生活方式决定空间形态,为很多业主量身打造了属于他们自己别具一格的家。
主要业绩及获奖情况:
设博会华鼎奖十佳杰出设计青年;
中国空间设计艺术大赛-创新中国-最佳设计作品金奖;
创新中国空间设计艺术大赛十佳杰出设计青年;
亚太空间设计百强设计师 ;
好好住营造家奖;
《第八届大金内装设计大赛》综合设计 公寓组 铜奖;
《第七届大金内装设计大赛》全国综合设计 公寓组 铜奖;
国际空间设计大奖《艾特奖》 入围奖;
中央财经频道CCTV2《交换空间》栏目受邀设计师;
杭州电视台3频道《生活大参考》栏目受邀设计师;
杭州电视台4频道《家居我来帮》栏目受邀设计师;
作品发表《装修情报》《家居视界》《杭州城报》等平面媒体
设计案例:
绿城-中交悦西溪样板房、绿城-兰庭伍重院、绿城-桃花源、绿城-富春和园、绿城-翡翠城、新湖-武林国际、滨江-城市之星、雅戈尔-御西湖、碧桂园杭州样板房、云龙十一景、彩虹城、风雅钱塘、金基晓庐、钱江时代等
有什么问题都可以添加客服菲菲咨询!
地址/杭州市江干区高德置地中心2号楼2单元1101室
#往期推荐#
欢迎各位评论,转发,点好看~~
所属版权及最终解释权归菲拉设计所有
客服
消息
收藏
下载
最近


















































