查看完整案例


收藏

下载
设计之美,只因苛求
HangZhou / 2019 / FLYDESIGN
何止是轻奢
轻奢是指一种倡导“轻奢华 新时尚”的生活理念,是一种更尊重生活质量的生活方式,与财富、地位无关,它代表着对高品质生活细节的追求。
#
伍 重 院
#
本案例名字沿用建筑名称“
伍重院
”。
房屋建筑面积近800
m
2
,原建筑风格为法式合院。法式合院传承法国古典主义与新古典主义的建筑立面风格并自成一体,使法兰西名族的浪漫主义审美观和恒久居住理念与中式生活习惯有机结合。
本套作品地下一层地面两层,房屋的前后都有花园,中间有一个大的庭院和狭长的回廊,拥有6个卧室,5个卫生间,地下室独立车库有3个车位。
#
设 计 方 案
#
这套案例原始户型的第一层,空间被墙壁分割的零零碎碎,动线也非常混乱,
丝毫感觉不到大House的气度,本案中的格局改造很好的解决了类似问题。设计第一步就是把所有不必要的墙全部拆除,对空间进行重组,空间的布局讲究主次节奏感,最好的环境给最重要的空间,其次再考虑各个空间之间的互动关系,这样能让居住者之间更加和谐。
△地下室原始结构图
△地下室平面设计方案
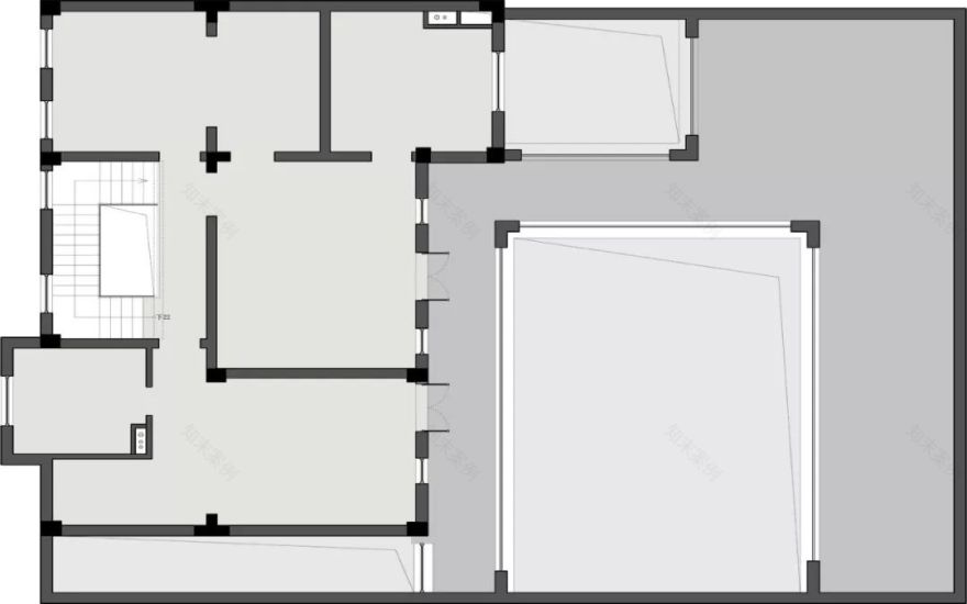
△一楼原始结构图
△一楼平面设计方案
△二楼原始结构图
△二楼平面设计方案(阁楼组合)
客户需求
成长,学习环境对小孩子来说非常重要,不然哪来的“孟母三迁”。所以业主非常注重这一点,需要功能齐全,活动区域宽阔,有一家人活动的地方,在这里将会给小孩子留下美好的回忆。
居住人员:夫妻、两小孩、父母、保姆。
业主的父母非常注重风水,所以有很多地方的改动设计师都会考虑到。大致喜欢现代时尚风格,简约不做作,还有,女主人不喜欢木饰面。
需要很多会客区域,而且空间的体量要把握的很好,因为周末大多数时间会有朋友在家中做客,还有女儿非常喜欢粉色。
# 全 案 设 计
#
# 一 层 #
本案定义为现代轻奢风,现代轻奢是将材料、色彩、灯光及元素进行简化,以实用的功能性家具为主,用简洁的视觉效果营造出时尚前卫的家居氛围,用优雅低调最受青睐的高级灰把持全局,使得整体空间显得高雅、深邃、宁静、性感。中性而又低奢的黄铜拉丝材质一直伴随着主旋律而存在,大面积的高级灰会稍显缺乏生活气息,所以在不同的空间中设计师加入了不同的亮色来点缀,在拉开空间层次感的同时赋予了每个空间不同的灵魂。
将原本复杂的法式采光窗改成了通透落地玻璃和折叠门,让阳光肆无忌惮的进入到室内,客厅与中庭自然的融为一体,使得客厅多了一份惬意。
∧客厅
∧文化区
原有的客厅与卧室还有回廊打通,形成宽敞透亮的会客厅跟文化区、还有小孩活动区。
电视背景墙一定是目光所过之处必须停留的地方,整面深色大理石饰面,无论是体量、材质还是色调都是焦点中的焦点。客厅使用了一款非常简洁3D雾化壁炉,有非常好的仿真效果而且不用考虑小朋友的安全问题,空间的品质提升了不少,而且为了让空间更加通透过度更自然,所有的隔墙都采用岛式环形设计。
∧手工活动区
∧厨房
厨房采用中西厨的形式,让两种不同的烹饪方式分离,黑白金的色调搭配让厨房现代感十足的同时又带点小奢华。墨绿色的椅子让空间更加时尚,早餐与简餐在中岛就能解决。
∧餐厅
餐厅这种地位和客厅不相上下的地方肯定要美观与实用具备。
圆形餐桌的设计是有考虑到中国博大精深的饮食文化。
在增进食欲和趣味方面设计师也用了一些功力。在秉承整体灰调的基础上订制橘色的半透明琉璃装饰挂件,它能够随着气流而摇晃,让空间变得灵动有生机,桌面采用了黄色的细木纹材质。
为了提升空间的时尚感,餐椅则选用了墨绿色的面料,考虑到平时打理方便餐厅大面积的酒柜进行隐藏式设计,仅一小部分敞开用来展示主人的珍藏点缀空间。
∧玄关
入户后通过可旋转的橄榄形立柱使玄关与客厅浑然一体,利用旋转的立柱可以任意调节玄关与客厅的视角,这既强调了玄关的独立性又能让玄关与内部产生更多的互动,而且增加了虚实相生的趣味性。
∧楼梯
∧阳光房
看到阳光首先感受到的是自然的美好,
阳光房用天然文化石和温润的木地板来表达空间的自然与休闲。白天可以在这里看书写字陶冶情操,晚上亦可仰望星空思考人生。
∧中庭
# 二 层 #
作为睡眠空间,主旋律应该是宁静和谐。原来需要穿过卧室才能到达二楼露台,干扰到了卧室的生活,主卧室的门直对楼梯口,一开门便是卧室的睡眠区,破坏了卧室的私密性,主卧衣帽间过小,而且没有通风和采光。在与业主沟通之后,主卧室采用的是同色系的色彩对比,用宁静平和的藏青和蓝色作为点缀,床背景利用抽象水波纹壁纸和圆形挂件让人
联想到印象派画家莫奈
的《日出·印象》一副平静祥和的景象!
∧主卧
主卧有贴心的水吧台设计非常实用便捷。
∧主卧衣帽间
衣帽间左右两排布置,男女主人衣物分开存储,拥有大面积的采光窗,有独立的梳妆台,衣帽间内部利用了仅0.7
m
2
的空间设计了一部微型楼梯通往阁楼,增加了大量的存储空间。
∧次卧
∧次卧
∧女儿房
女孩房整体使用了马卡龙色,不同层次的低饱和度淡粉、淡黄、薄荷绿进行叠加组合,粉色波点壁纸铺满整屋十足的公主范,阁楼围栏设计灵感源自城堡,这个是属于个人不可侵犯的空间。
∧男孩房
男孩房做了一个海盗船的主题,对孩子来说,有了这样的卧室,让他们“回房间去”再也不是一种惩罚了。给我攻下托尔图加岛·····咦?等一下,里面有个小朋友正在睡觉呢!哇……但愿孩子们睡觉的时候不会晕船。
∧卫生间
卫生间淋浴、坐便独立分离,双台盆设计加大面积的化妆镜,让原本宽敞的卫生间更加通透明亮。
# 地下室 #
地下室昏暗阴冷,通风采光较差,层高3.7米。地下室入口的重要性不亚于一楼入口,业主大部分时间是从地下室回家,所以地下室玄关的储藏功能就尤为重要了。需要独立的鞋柜,换鞋凳,仪容镜,在入口处不远的地方设计了一个10
m
2
的衣帽间供业主更换家居服和存放包包饰品。
进入内部是空旷的娱乐空间,在房屋的中间设计了一条30m长的环形跑道,通过模仿运动场地来刺激人体运动细胞到达条件反射的效果。
整个地下室用了强烈的色彩进行激烈碰撞,能激发人的荷尔蒙让人保持持久活力,而且具有非常强的娱乐感。
台球室和健身区靠近天井位置,能保证一定的通风采光效果,两个功能划分明确但区域过度自然没有明显的分界,使得空间整体统一。黑白几何图案的地面设计让空间非常摩登时尚
。
采光最好,窗户最大的空间布置了一个接待性的书房,在书桌位置能一眼看到30m的跑道和健身活动空间,空间之间能起到互动的效果。
我们只是通过简单的材质来营造空间氛围,墙面是美国进口乳胶漆本杰明,特性是比较防潮耐脏,色彩丰富,能做到低饱和度高明度色彩,地面则用健身房专业地胶板材质铺贴。
45m
2
的影音室空间,
150
寸高清宽幕,能容纳
11
人观看大片,周末可以约上小朋友来加中看动漫了,影音室有根下挂
85
公分的横梁和立柱,通过两个
U
字造型巧妙的将梁柱隐藏在内部,保证楼层高度的同时增加了空间的层次感,影音室运用低饱和度的藏青,可以静静的享受影视的快感。
# 菲 拉 软 装 #
市场上的精装房陆续上线,小编知道大家对千篇一律的精装房不满意,现在软装设计就能很好解决这一问题。不用大动干戈,但又不失精美。菲拉软装正式上线,让你的家焕然一新,来看看我们的软装吧。
∧客厅软装
∧客厅实景
∧卧室软装
∧卧室实景
∧地下室软装
∧地下室实景
# 效果图
or 实景
#
∧效果图客厅
∧实景客厅
∧效果图餐厅
∧实景餐厅
∧效果图地下室
∧实景地下室
∧效果图玄关
∧实景玄关
∧效果图小孩房
∧实景小孩房
∧效果图女儿房
∧实景女儿房
#Before
or After
#
楼梯
∧before
∧after
地下室
∧before
∧after
客厅
∧before
∧after
主案设计师
创始人/设计总监:宋雄飞
专业:环境艺术设计
抛弃固有思维 寻求一切可能 让设计回归生活
宋雄飞,杭州颇有名气的室内设计师,设计的很多作品深受大家喜欢,对高级灰的情有独衷,让他的作品独具特色。2016年创立了自己的品牌公司“菲拉装饰”,专注于室内空间设计,软装设计。带领着一批具有崇高设计梦想的90后团队,一直在设计的矛盾中寻求突破。善于结合生活将空间重组,把空间特色发挥到极致,强调功能与美感平衡,尊重使用者的真实需求。生活方式决定空间形态,为很多业主量身打造了属于他们自己别具一格的家。
项目 I
Project
:
绿城蓝庭伍重院
名称 I Name :
伍重院
项目类型
I Project type:
全案
面积 I
Square Meters:
800
㎡
户型 I Door Model:
排屋
设计师 I Designer :
宋雄飞
摄影师 I Photography:
叶松
主材
I Main Material:
菲拉软装、西门子电器,百合凡蒂尼橱柜、杜拉维特洁具、汉斯格雅
洁具
、
燊科瓷砖、名砖汇
瓷砖
、必美地板
、书香门第
地板
、富得利
地板
、齐家墙纸窗帘
、昂宇大理石、中
意曼克顿木作、
迈德高木作、德居设备
地址
/
杭州市江干区高德置地中心2号楼2单元1101室
有什么问题都可以添加客服小姐姐咨询哦!
# 往 期 推 荐 #
欢迎各位评论,转发,点好看~~
所属版权归菲拉设计所有
最终解释权归菲拉设计所有
客服
消息
收藏
下载
最近























































































