查看完整案例


收藏

下载
Jacky
·
W Design
·
王韦航室内设计有限公司
·
“在认真考量预算成本的同时,又能让效果稍稍有点超预期,我想这就是设计应该要做的”
“When you carefully consider the budget cost, you can make the effect slightly more than expected. I think this is what the design should do.”
·
各色各样的布料,在哪种环境中可以呈现最好的色泽和质感。王韦航室内设计为杭州华芝纺织有限公司设计的布料展厅,给了这个问题笃定的答案。
设计以木材的朴实自然界定了空间。由于展厅常来的都是外国客户的特殊原因,需要向各国来的客户展示中国传统文化,体会不一样的中式风格,所以在设计上选择了富有现代感的新中式风格。木材的原始肌理和颜色隐含了最自然的表达,这样的空间能够带给人没有隔阂的感觉。在布料展示品陈列后,木材会自然的隐退到后面,做不起眼的衬托。空间中同时存在能够迎合布料的各种元素:白墙,圆形孔洞,格栅,互相交错的拼合地板,条状的展示柜,他们将空间进行功能分割,然后再选择性的组合在一起,形成新的关系。
·
The best color and texture can be found in any environment. Wang Weihang's interior design is a fabric exhibition hall designed by Hangzhou Huazhi Textile Co., Ltd., which gives the answer to this question.
The design defines the space with the earthy nature of wood. Since the exhibition halls are often the special reason for foreign customers, they need to showcase the traditional Chinese culture to the customers from all over the world and experience the different Chinese styles. Therefore, the design has chosen a modern Chinese style with modernity. The original texture and color of wood imply the most natural expression, and such a space can give people a feeling of no barrier. After the display of the fabric display, the wood will naturally retreat to the back, making it unremarkable. There are also various elements in the space that can cater to the fabric: white walls, circular holes, grilles, intertwined flat panels, strip-shaped display cabinets, which divide the space into functions and then selectively combine them. Form a new relationship.
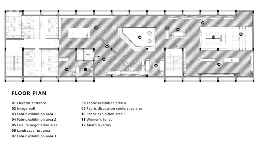
▲设计平面
·
空间平面中的各种元素通过不同大块面的切割组合,无声之间让展厅中的布料与来访者相互吸引相互,同时又界定了空间中各个区域的功能位置。进门处简单的造型忽而打开展览空间的奇妙吸引力,这让来访者放下身心,更亲近的挑选参观展陈着的布料。
·
The various elements in the space plane are combined by the cutting of different large faces, and the fabrics in the exhibition hall and the visitors attract each other silently, and at the same time define the functional positions of the various regions in the space. The simple shape of the entrance door suddenly opens up the wonderful attraction of the exhibition space, which allows the visitors to let go of their mind and body, and to get closer to the fabrics of the exhibition.
▲展厅长廊
▲楼梯入口
▲展厅入口
▲展厅入口细节
▲展厅局部
·
空间最动人之处便是进门时直接映入眼帘的圆形孔洞和一下子就让人视野开阔的展览空间。人犹如置身于开阔的盒中盒,却又被简单的木质格栅所吸引而慢慢走进那些展览中的布料前。透明玻璃窗户和宽大的落地窗,让整个展厅开阔又明亮。看似有些新中式的设计,实则加入了很多当代新的设计元素,断断续续的廊道地板搭配自然的落石,看起来平静又充满深意。
·
The most touching part of the space is the circular hollow that directly enters the door and the open exhibition space. People are like being in an open box, but they are attracted by the simple wooden grille and slowly walk into the fabrics in the exhibition. Transparent glass windows and large floor-to-ceiling windows make the entire exhibition hall open and bright. It seems that some new Chinese designs have added a lot of contemporary new design elements. The intermittent corridor floor is matched with the natural rockfall, which looks calm and full of depth.
▲展厅局部
▲展厅局部
▲会谈空间
项目视频
项目图纸
项目名称:杭州华芝纺织有限公司
设计公司名称:杭州王韦航室内设计有限公司
设计团队:王韦航,李阳,林郁,洪江溟
文案编辑:陈寒若
项目地址:浙江杭州
项目面积:700㎡
主要材料:水磨石,欧松板,成品木纹饰面板,硅藻泥
Project name: Hangzhou Huazhi Textile Co., Ltd.
Design company: JACKY.W DESIGN
Design team: Jacky Wang,Yang Li ,Lemon Lin,Fre Hong
Copywriter:Mino Chen
Project location:Hangzhou, Zhejiang Province, China
Area: 700㎡
Main Materials: Terrazzo, Ozon board, finished wood veneer, diatom mud
座机:0571-8607 8189
客服
消息
收藏
下载
最近














