查看完整案例


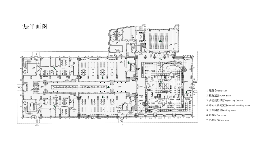
收藏

下载
位于沈阳东站南侧的共和国第一代仓储园区“东贸库”,是沈阳市现存建设年代最早、规模最大、保存最完整的民用仓储建筑群,在东北地区乃至全国仓储物流业发展史上具有重要地位,在仓储建筑及园区类型学研究上具有重要价值。
改造前的仓库外观©华润置地
原址旧貌
内部旧貌
01新旧动能转换
社区共生共长的精神家园
时代更迭,扎根于城市的文化,工业与新生态的转化。
摄影 ©麒文摄影
华润置地时代之城通过对沈阳东贸库老旧厂房的改造升级,让工业遗产焕发新的生命力。成为沈阳城市更新,大东区新赋能,让时代之城规划约 6 万平城市绿化公园,约 2 万平社区配套规划和 1 座初中、一座小学、2 处幼儿园。商业、居住、教育、文化、生态一应俱全,尤其商业会与历史建筑群落相融合,华润置地将与政府联合将其运营为集网红都市商业、高端社区配套于一体的全功能活力型社区商圈,这将是对大东历史传承的致敬,也将会创造大东独有的区域特色。
摄影 ©麒文摄影
时代文仓图书馆作为推进精神文化的公共文化机构,更是代表着沈阳的城市精神,而城市新浪潮来临之际,又再次推动沈阳精神文明的新旧动能转换。成为与社区共生共长的精神家园。
02 城市新记忆
打造网红打卡坐标
这不仅是一个集图书、时尚咖啡、艺术展览为元素的体验空间,更成为周边街区的全新城市打卡文艺地标—城市新记忆。
迷宫阅读公园轴测示意图 ©都市实践
在设计理念中,引入自然科技元素,让自然植物&动物融入其中。用新生代生活革新,打造绿色生活,网红打卡,品味阅读,城市历史,城市灵感无界“潘多拉森林”未来公园图书馆。
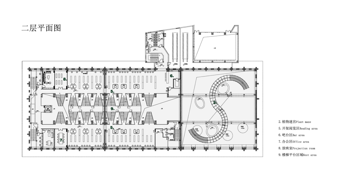
植物迷宫
PLANT MAZE
光学设计
三棱镜原理设计再现彩虹装置
原创 IP 设计
©UND 北京喻远旨丰
→
迷宫的种植划分出一块块彼此可视却不互相干扰的私人阅读空间,书虫兔的 IP 形像和读者坐在公园长凳上沉浸阅读,盘旋在上空的步道可以俯瞰迷宫,动物在其中穿梭,绿意围合树屋式的儿童阅览室又为这公园阅览区增添了烂漫的色彩,为孩子打造一个情境美好的休憩空间。你将错觉感受扎根泥土深处的参天古树,是一种脱离喧嚣、步入雨林深处般的阅读洗礼。
03历史工业的印记
镌刻新的知识精神
在城市更新的背景下,新与旧,光与影,跨越百年的光阴故事。
“阅读殿堂”巨构轴测示意图 ©都市实践
中心长桌区,是图书展览艺术展示中心区域,旁边书架亦是儿童读物区。中间是可以更换主题的展览台,摆放艺术装置或产品,衍生出流动多变的展览。
桌面上艺术品森林微缩景观,机械质感的昆虫。将工业和自然融合在眼前。书虫兔的 IP 形象和环境融合,植入产品展示和流动策展的设计,结合休闲功能,为空间增添了趣味性亦是拍照打卡点,人流聚集中心。
浓情咖啡
SHANNON COFFEE
与时间,空间对话:咖啡吧保留红砖元素,水泥、铁锈金属、原木材质元素的结合,独特肌理呼应整体空间主题。温润的灯光氛围下,独有的城市文化印记,交融于美妙的艺术体验空间中。
《知识的印记》定制空间装置
©UND 北京喻远旨丰
篆刻着读书精神的工业质感的铁锈半封闭屏风,打造出复古工业质感外壳的休憩空间,让读者时空切割,隔绝外部影响,让阅读行为葆有纯粹的享受。
定制家具设计 ©UND 北京喻远旨丰
书桌结合台灯设计,台灯使用复古开关,随手开关,方便节能。
VIP 洽谈室
书不仅是生活,而且是现在,过去和未来文化生活的源泉。
——库法耶夫
平面图→
项目名称 | 沈阳华润置地时代文仓
项目地址 | 辽宁沈阳
业主单位 | 沈阳华润置地
甲方团队 | 张静茹,崔海龙,方虹博
软装设计|北京喻远旨丰产品设计有限公司
设计总监 | 云菲
软装团队 | 马莹 黄锦博
项目面积 | 约 5000㎡
项目摄影 | 麒文摄影
云菲/ UND 创始人
UND(北京喻远旨丰产品设计有限公司)以设计师云菲为首的先锋设计师团队。
主要业务聚焦地产行业的室内空间的整体解决方案,2015 年开始业务延展至商业空间,酒店设计,高定私宅。
十一年来,以不断的努力,超前的视野,不断推出设计精品,屡次获得国际设计大奖:
意大利 IIDA AWARD,法国 FRANCH GPDP,美国 AIIDA 等。
持续以软装设计视角,带动室内设计的独特审美理念,成为全新室内设计新锐设计公司。
UNDDESIGNPROJECT
华润沈阳九悦营销中心
融创济南未来壹号 132 样板间
融创济南未来壹号体验中心
请关注 DINZ 视频号
DINZ
德网近期热文
深圳 31 设计 |南京招商局中心 · 臻境
其然设计 |西投银泰城生活美学馆
AOD 设计
|
邛崃金科辰光售楼处
元禾大千 | 哈尔滨御湖壹号销售中心
客服
消息
收藏
下载
最近




























































