查看完整案例


收藏

下载
旷然见大境,自远来清风
荷戈月窗外,太湖畔飞鸿
本案坐落于苏州西南,南临太湖,北靠穹窿山,兼纳国际前景与千年底蕴。为了将文化、建筑、室内空间三者更好的融合,设计师汲取传统文化的吉光片羽,将山湖美景纳入空间设计,古朴与洗练,自然与人工,厚重与轻巧,繁复与极简,种种这些汇于一堂,达到并置的动态均衡,力求浑然天成。
整个门厅采用水景的形式,用汀步规划出一条参观动线,使人仿佛置身太湖之上。
细节处以太湖石峰立于水池中,其峰脚有散点布石延于水中,伸展开去,这一虚,顿时使山意有了延伸,山水得以交融,更产生了化虚为实,虚实相间的意境。
迎宾接待区
汀步水景造型
沙盘区上方为开放式天井,将天光引入室内,也将室内置于自然之中,抬梁式的装饰与密布的格栅灵感来源于中国传统建筑构造,整个空间自下而上,造型由密到疏,到达顶端豁然开朗,繁复与舒朗形成对比,使得围合对称的空间又有一种轻盈的感觉,对立而又统一。
沙盘区
抬梁与格栅造型
水吧区通过阵列的设计手法,设计出具有仪式感的墙面造型。
光对于材料的反射也极为考究,在柔和的晕光下,让空间充满了氛围感。
空间以艺术品的妙趣横生来表达传统文化中的文人趣味性,这种微妙的排列使人驻足停留,呈现出历史与现代之间融会贯通的感官体验。
水吧区
艺术陈列品
洽谈区延续并简化水吧区的设计手法,整体选用浅色系营造温馨的氛围,墙面以米色壁纸为主,家具采用雅致的色调,形成一个舒适而又放松的空间。
沙发的布局独立而又开放,与周围相互连接又互不打扰,保证了空间的互动性与独立性。
洽谈区
艺术陈列品
项目名称 |
苏州龙湖大境天成销售中心
完成时间 |
2019年8月
设计面积 |
680㎡
完成地点 |
苏州
设计机构 |
上海平仄室内设计事务所
设计范围 |
室内设计
设计总监 |
朱友庭
设计团队 |
主案设计师 / 郑洲 助理设计师 / 吴静
摄 影 师 |
张大齐
平仄设计
苏州龙湖大境天成销售中心
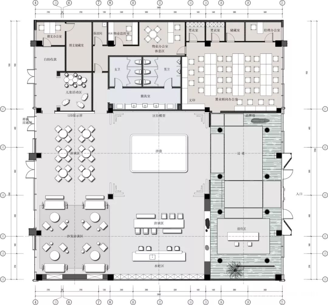
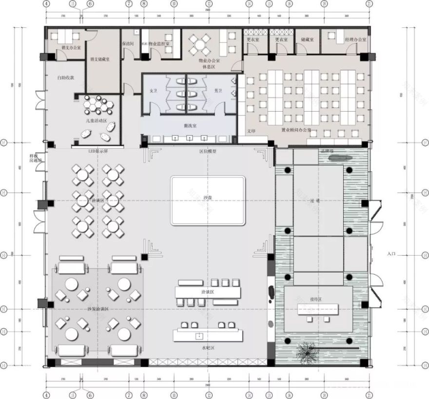
图纸呈现
平面图
平仄设计
苏州龙湖大境天成销售中心
公司介绍
朱友庭 Justin Zhu
上海平仄室内设计事务所创始人兼设计总监,专业为拥有国际视野的地产商及具有先锋性私人空间提供集室内设计、软装设计于一体的专业化设计与咨询服务。
上海平仄室内设计事务所主创团队
上海平仄室内设计事务所创立于2014年,是集室内设计、软装设计于一体的专业化设计公司,主要致力于为地产商客户提供设计技术支持与服务。
公司以住宅、办公空间、精品酒店与商业空间设计为业务核心,为拥有国际视野的地产商提供设计服务。
目前主要服务以龙湖地产、阳光城地产、绿都地产、祥生地产、弘阳地产、银城地产、中冶置业、石榴集团等为代表的国内一线知名房地产开发商企业。
平仄设计以设计的原创性与专业性为立足之本,重视设计方案的同时对设计意图的实施严格把握,获得众多业主客户的一致好评。
点滴细节传达设计精神、方寸之间彰显工匠之心,上海平仄室内设计将为成为中国设计行业的专业品牌不懈努力、全力向前。
供稿 / 上海平仄室内设计事务所
DINZ 品 牌 设 计 案 例
DINZ德网传媒旗下的品牌设计机构
Gooobrand
DINZ德国室内设计网
品牌设计
客服
消息
收藏
下载
最近






















