查看完整案例


收藏

下载
“
不知何时起,自然只是自然,城市只是城市;自然与生活被无形的结界划分了内与外,如同非黑即白的共存状态。
—— Le Corbusier
⁎
灵感释意
设计最美的模样 源于纯粹的无限想象
于建筑、于艺术、于科技、于文化、于色彩...
⚪
项目情况 & 分析
/ Condition & Analyze
⁎
地理位置
⁎
现场照片
该项目位于湖南省长沙市天心区人民西路
有着3000多年的历史
天心区聚集了长沙市60%的历史文化景点
地理位置得天独厚且历史悠久
为设计师以 “时间” 为主题 提供创作灵感
▲ 向右滑动观看更多 ▲
印象中的山水美景与大地万物共生共息的生活
如沙漠中的水源一样稀缺苛刻
我们通过设计努力去拉近自然与人或城市之间的距离
尝试将大地融合于生活本身
形成共吐納的
“城市绿洲“
⚪
外立面
/ facade
建筑具有视觉渗透性 融化性 非物质性
将生命和人置于体验中心
▲ 向右滑动观看更多 ▲
空间内部因结构限制
无法使用新风系统
需在原始建筑形体下
更改窗户形式
使室内采光及通风得到改善
由此外立面窗户面积增大
既外立面实际面积变小
故我们使用了线条造型勾勒出形体感和艺术感
弧形元素也与室内元素互通
在原建筑上以“穿衣”的形式更具性价比
弧形元素与室内元素互通
在原建筑上以“穿衣”的形式更具性价比
并将室内设计形式转变到建筑形态
让建筑本身与室内产生关联
⚪
酒店大堂 & 咖啡厅
/ Hotel Lobby & Cafe
⁎
主入口通道区
⁎
前厅置景
大堂入口区域
通过增柱使之产生稳定感
人们方能驻步其中 静心体验
适度的进行身心享受
一切都在控制之中
不会产生奢靡感和虚无感
⁎
前厅置景
⁎
酒店大堂
⁎
酒店大堂
“城市绿洲”
在整个大堂空间中
设计师希望通过设计
努力拉近自然与人或城市之间的距离
室内大堂体块语言与建筑立面相互关联 产生对话
⁎
大堂吧台区
⁎
电梯间
入住房间的客人
经由「展厅」体验的电梯空间
给予住客不同情绪
把心灵感知融入酒店
⁎
大堂区块过道
⁎
客房通道
豪华套房|坠明·ZHUIMING
客房的理念沿用整体设计思路
倡导住宿的舒适性 艺术性 自然性
舍弃昂贵且没有意义的建筑材料
用最简单的材质和形体
使熟悉的事物再度新鲜
与新生的事物渐生熟悉
A套房|须弥山·XUMISHAN
灰色为主调的艺术涂料为空间带来深度体验
玻璃砖为空间带来通透和轻盈的感受
沙发窗帘等柔软织物未空间氛围起到补充作用
为住客带来宾至如归的极致体验
标准客房|破岩·POYAN
B户型|凝月·NINGYUE
设计兼顾了清晰而高效的客房布局
通过平衡旧空间的朴素感和新空间的优雅气质
为客人们带来量身定制的难忘体验
C户型|绿荧·LVYING
双人间|亦珏·YIJUE
我们增加了不同多种户型选择
弧形的墙壁 和 错落变化的天花板造型
为空间增添了柔软和舒适的感受
延续了外立面的质感
将建筑的外观特征融进内部空间
四人间|对影·DUIYING
天台空间独立与酒店空间的存在
高级 浪漫 品味
任何形容词都适合它
它与周围环境的关系更加可控
灯光营造出的效果和包括可控的视野
我们希望客人踏进酒店时
通过酒店的理念和服务
联结人与酒店
联结人与这座城市
联结所提倡的卓越的生活方式
能为住客提供一切美好的事物
⁎
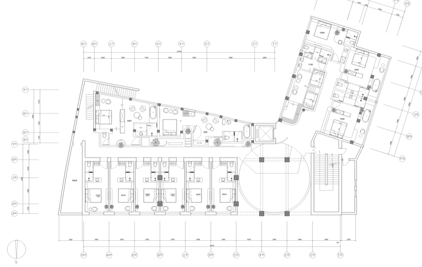
1F平面图
⁎
2F平面图
⁎
3F平面图
⁎
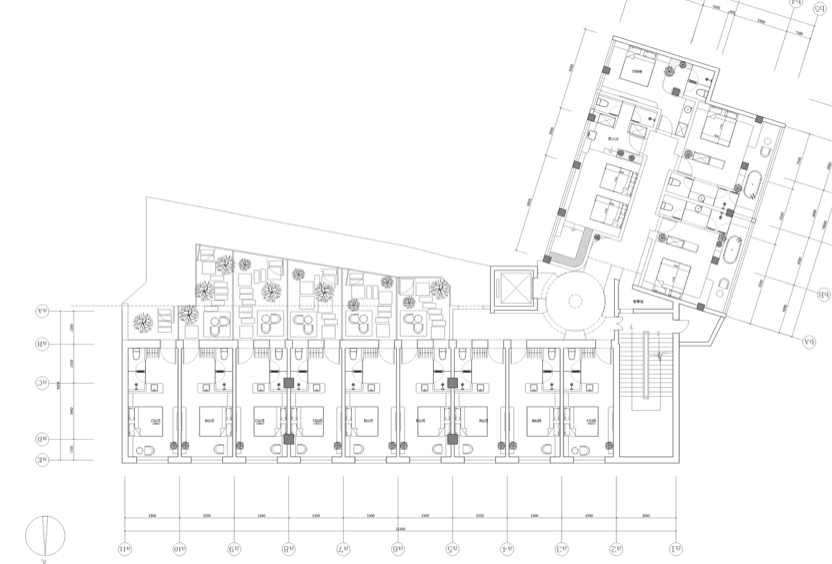
4-5F平面图
⁎
5F平面图
项目名称|天时酒店
设计公司|Artdeep 艺痴设计
主持设计|倪軍軍
总设计师|卢凡及
空间设计|杨成龙 叶绍正 王成 陈素仪
品牌
策略
|
孙坚
视觉设计|
陈武凤
艺术道具|段琳
项目时间|2021年5月
项目地址|湖南省长沙市天心区人民西路40号
主要材料|艺术涂料 玻璃砖 老木头 水波纹不锈钢板
首发|微店Park 主题商业新物种 饭圈文化线下零售空间
首发|小慢居茶空间 开元森泊里的一方茶饮天地
首发|Y咖啡 永不设限的社交感元宇宙新品牌
-
客服
消息
收藏
下载
最近
































































































